Notre équipe est composée d''experts du marché immobilier d''entreprise, et renforce ainsi notre position de leader des transactions immobilières à Toulouse. Notre mission est de vous guider afin d ...
En savoir plus

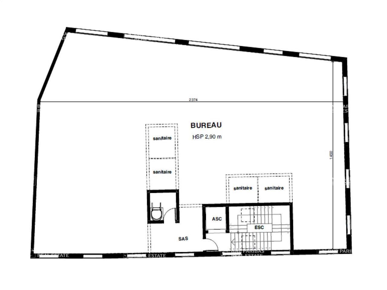
Bureau à vendre - 338 m²
*** TOULOUSE SUD-EST / BUREAUX A VENDRE ***
A l'entrée du Parc Technologique du Canal, BNP Paribas Real Estate vous propose une surface à usage de bureaux neuve, disponible à la vente.
En plus des bureaux, l'ensemble immobilier regroupera des logements, des commerces ainsi que des services.
Disponibilité : T1 2026
Desserte & transports en commun :
- Proche métro ligne B via Bus
- Bus lignes à 350m
- Accès rocade Sud-Est immédiat
- Future 3ème ligne de métro
PRESTATIONS :
- Accès PMR
- Locaux livrés bruts
- Ascenseur
- Parking gratuit à proximité
- Sanitaires privatifs
Zoom sur le Parc Technologique du Canal :
Le Parc du Canal est situé sur les communes de Toulouse et de Ramonville Saint-Agne. Situé à proximité de Labège Innopole, il s'agit d'un vaste parc dynamique de 34 hectares et faisant l'objet d'un projet d'extension de 28 hectares.
L'opération dispose d'une très bonne desserte. L'accès à la rocade est direct, le métro est accessible par bus en 5 min et la gare et l'aéroport en 15 min.
De nombreuses entreprises réputées dans les secteurs du spatial, de l'informatique, de la santé, des biotechnologies notamment y sont installées au même titre que le Centre Européen d'Entreprises et d'Innovation (CEEI), structure d'accompagnement pour les entreprises.
Le Parc du Canal est labellisé "Zone d'Activité Très Haut Débit".
Le Parc Technologique du Canal, situé au sud-est de Toulouse, est un secteur majeur dédié aux entreprises technologiques, scientifiques et tertiaires.
Le parc forme un tissu économique dynamique accueillant de nombreuses entreprises spécialisées dans les nouvelles technologies, l'aéronautique et les biotechnologies.
La zone est également très bien desservie (périphérique sortie n°19 " Labège ", terminus métro ligne B, bus ligne 111). Le site bénéficie d'une bonne connexion via la rocade, plusieurs lignes de bus, le terminus de métro de la Ligne B et une future desserte par la ligne C (2 stations).
Situé le long du Canal du Midi, il offre un environnement verdoyant et agréable, favorisant le bien-être des salariés et l'attractivité pour les entreprises.
Avec un juste équilibre entre accessibilité et cadre de travail privilégié, ce secteur est un choix pertinent pour les entreprises cherchant à attirer les talents dans un environnement agréable et verdoyant.
Disponibilité: 12 mois après accordHonoraires: 5% HT du prix HT/HD. à la signature de l'acte
| Fiche technique du bien | |
|---|---|
| Métro | 1 km |
| Bus | 350 m |
| Desserte routière | 550 m |
| Aéroport | 16 km |
| Accès Pers. Mobilité Réduite | Oui |
| Sécurité | Contrôle d'accès |
| Ascenseur(s) | Oui |
| Aménagement des bureaux | Espaces Ouverts |
| Sanitaire(s) | Privatif(s) |










