L’agence CBRE Toulouse conseille et accompagne les chefs d’entreprise dans leurs projets immobiliers quels que soient leur taille et leur secteur d’activité. Spécialistes de la transaction de burea ...
En savoir plus

1 258 m² divisible dès 512 m²
Bureau à vendre - 1258 m²
Ramonville-Saint-Agne (31520)
Dernière mise à jour : Il y a 7 mois
Bureaux à vendre ou à louer à RAMONVILLE, au coeur du Parc Technologique du Canal. Deux bâtiments indépendants à commercialiser ensemble ou séparément
Accès immédiat par les rocades Est et Ouest desservant les Autoroutes de Bordeaux et Montpellier.
Bus-Navette de liaison desservant le site.
Proximité Terminus ligne B du métro.
Impôt Foncier : 35803 €/an, en sus
Régime Fiscal : Droits d'enregistrement
Honoraires : 5% + TVA du Prix de Vente à la charge de l'acquéreur
Information sur le Bail :
Provision pour charges annuelle : 5 036.00 euros TTC
Prestations :
Accessibilité:
Autoroute Accès immédiat par les rocades Est et Ouest desservant les autoroutes de Bordeaux et Montpellier.
Bus Navette de liaison desservant le site. Correspondance lignes de bus 37 et 111.
Metro Proximité Terminus ligne B du métro.
Les informations sur les risques auxquels ce bien est exposé sont disponibles sur le site Géorisques : www.georisques.gouv.fr
Accès immédiat par les rocades Est et Ouest desservant les Autoroutes de Bordeaux et Montpellier.
Bus-Navette de liaison desservant le site.
Proximité Terminus ligne B du métro.
| Étage | Type | Surfaces | Dispo | Prix(m²) | Charges | Honoraires | Fiscal |
|---|---|---|---|---|---|---|---|
| Bureaux | 746 | Immédiate | 1510,33 m² HD | n.c. | 5% + TVA du Prix de Vente à la charge de l'acquéreur | Droits d'enregistrement | |
| Bureaux | 512 | Immédiate | 1510,33 m² HD | n.c. | 5% + TVA du Prix de Vente à la charge de l'acquéreur | Droits d'enregistrement |
Impôt Foncier : 35803 €/an, en sus
Régime Fiscal : Droits d'enregistrement
Honoraires : 5% + TVA du Prix de Vente à la charge de l'acquéreur
Information sur le Bail :
Provision pour charges annuelle : 5 036.00 euros TTC
Prestations :
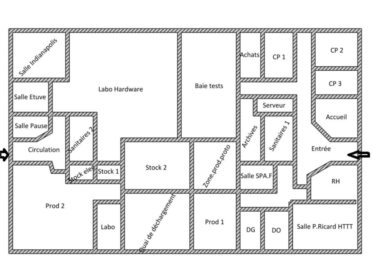
- Nous vous proposons à la vente 2 bâtiments :
- Bât 1 : 746 m² avec 24 places de parking extérieur
- Bât 2 : 512 m² avec 16 places de parking extérieur
- Surfaces de plain pied , aménagées .
- Cloisonnées et climatisées.
- Bât 1 : la surface aménagée en bureaux comprend un espace de stockage avec 1 porte sectionnelle en façade.
- Coin repas.
- Sanitaires privatifs.
- Bât 2 : aménagement en bureaux .
- Cuisine aménagée.
- Sanitaires privatifs avec Douche.
- Abris vélos .
- Menuiseries changées en 2022.
- Possibilité de vendre ou de louer séparément les 2 bâtiments : nous consulter
- Surface RDC : 0 m²
Accessibilité:
Autoroute Accès immédiat par les rocades Est et Ouest desservant les autoroutes de Bordeaux et Montpellier.
Bus Navette de liaison desservant le site. Correspondance lignes de bus 37 et 111.
Metro Proximité Terminus ligne B du métro.
Les informations sur les risques auxquels ce bien est exposé sont disponibles sur le site Géorisques : www.georisques.gouv.fr
Voir plus
Afficher les consommations énergétiques
Favoris
Exporter
Appeler
Contacter
Signaler cette annonce
