Société de conseil immobilier implantée sur Lyon et Paris, Sorovim accompagne particuliers et professionnels dans leurs projets de vente, d’acquisition, d’investissement et d’estimation de bien.Sor ...
En savoir plus

479 m² divisible dès 230 m²
Bureau à vendre - 479 m²
Lyon 4 (69004)
Dernière mise à jour : Il y a 2 mois
EXCLUSIVITE : Rare, face au Parc de la Tête d'Or, un immeuble de bureaux atypiques - A vendre
EXCLUSIVITE : Rare, face au Parc de la Tête d'Or, un immeuble de bureaux atypiques, entièrement réhabilité, composé de 2 volumes et situé à 5 min de la place de l'Hôtel de Ville sont disponibles à l'acquisition - IDEAL SIEGE
Régime Fiscal : TVA et frais de notaire réduits
Honoraires : 3% HT du prix de vente HT HD, en sus, à la charge de l'acquéreur
Prestations :
Accessibilité:
SNCF Gare Lyon Part Dieu à 15 min via le bus 38
Métro Lignes A et C station Hôtel de Ville à 4 min via le bus 9
Bus Lignes C5, 9, 38 direction Part Dieu et 171
Les informations sur les risques auxquels ce bien est exposé sont disponibles sur le site Géorisques : www.georisques.gouv.fr
EXCLUSIVITE : Rare, face au Parc de la Tête d'Or, un immeuble de bureaux atypiques, entièrement réhabilité, composé de 2 volumes et situé à 5 min de la place de l'Hôtel de Ville sont disponibles à l'acquisition - IDEAL SIEGE
| Étage | Type | Surfaces | Dispo | Prix(m²) | Charges | Honoraires | Fiscal |
|---|---|---|---|---|---|---|---|
| Bureaux | 249 | 5160 HT HD/m² | 21 HT/m²/an | 3% HT du prix de vente HT HD, en sus, à la charge de l'acquéreur | TVA et frais de notaire réduits | ||
| Bureaux | 230 | 5160 HT HD/m² | 21 HT/m²/an | 3% HT du prix de vente HT HD, en sus, à la charge de l'acquéreur | TVA et frais de notaire réduits |
Régime Fiscal : TVA et frais de notaire réduits
Honoraires : 3% HT du prix de vente HT HD, en sus, à la charge de l'acquéreur
Prestations :
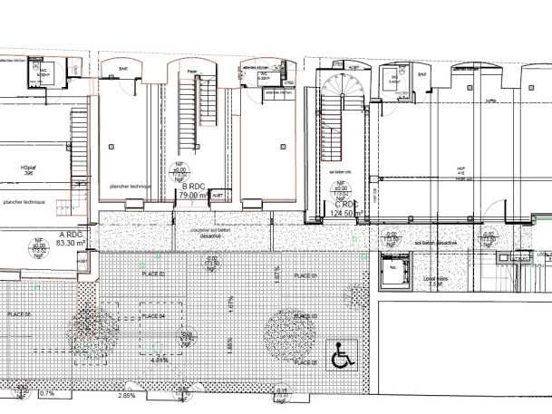
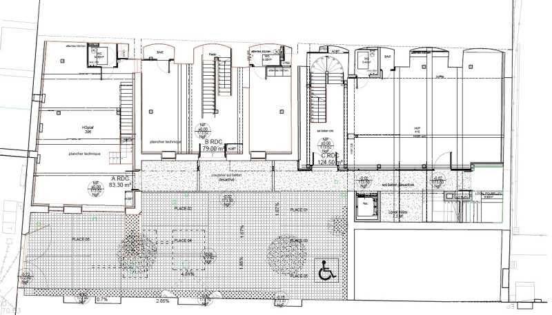
- Bâtiment entièrement réhabilité avec des prestations haut de gamme
- Etablissement Recevant du Public ERP 5 type W (code du travail)
- Capacitaire : 100 personnes (rajout de sanitaires)
- Cour intérieure privative de 211 m²
- Ascenseur
- Coursive extérieure et couverte de 35.9 m²
- Immeuble composé de 2 macro-lots non divisibles et communicants entre les niveaux
- Belle luminosité, nombreuses verrières ouvrantes
- Belle hauteur sous plafond, murs de pierres apparentes
- Bureaux livrés décloisonnés et câblés
- Faux-plancher technique (sauf en mezzanines)
- Sol dalles moquette, béton ciré et plancher bois
- Pompes à chaleur indépendantes et réversibles, VMC double flux
- Kitchenettes en attente dans chaque volume
- 4 places de parking dont 2 équipées avec une borne électrique, 1 PMR et un local vélos de 7.3 m² avec prise électrique
- Le capacitaire peut être augmenté à 399 personnes sous réserve de la validation d'un PC mod.
Accessibilité:
SNCF Gare Lyon Part Dieu à 15 min via le bus 38
Métro Lignes A et C station Hôtel de Ville à 4 min via le bus 9
Bus Lignes C5, 9, 38 direction Part Dieu et 171
Les informations sur les risques auxquels ce bien est exposé sont disponibles sur le site Géorisques : www.georisques.gouv.fr
Voir plus
Afficher les consommations énergétiques
Localisation et transport aux alentours
Favoris
Exporter
Appeler
Contacter
Signaler cette annonce










