Située dans le 3ème arrondissement de Lyon au 15 rue des Cuirassiers, notre agence compte environ 35 collaborateurs expérimentés pour vous accompagner tout au long de la mise en œuvre de votre proj ...
En savoir plus

3 761 m² divisible dès 196 m²
Activité/Entrepôt à vendre - 3761 m²
Villette-d'Anthon (38280)
Dernière mise à jour : Il y a 6 mois
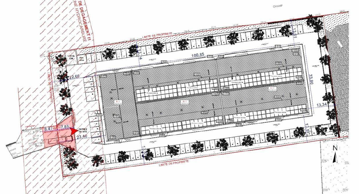
VILLETTE-D'ANTHON - Green Park Dans la zone industrielle de Villette-d'Anthon, nouveau parc d'activité proposant 17 lots à partir de 197 m² livré à partir de septembre 2024. Les lots sont composés de bureaux, et mezzanines. Le parc est clos et sécurisé et offre 80 places de stationnement privatif.
Villette d'Anthon est une ville située dans le département de l'Isère et en région d'Auvergne-Rhône Alpes.
Cette commune située à l'Est de Lyon affiche depuis plusieurs années un dynamisme économique certain.
Le développement de la zone industrielle et commerciales témoigne d'une volonté d'un développement maitrisé.
Située à l'est de la commune, la zone industrielle bénéficie d'une très bonne situation géographique permettant un accès facile.
La proximité de l'aéroport de Lyon Saint Exupéry (14 minutes) et de la ligne TGV sont également des atouts majeurs du nouveau parc d'activités GREEN PARK.
Honoraires: 3% HT du prix HT/HD. à la signature de l'acte
| Fiche technique du bien | |
|---|---|
| Desserte routière | A432 |
| Aéroport | Lyon Saint Exupery 13 km |
| Gare | TGV Lyon St.Exupery 13 km |
| Climatisation | Réversible |
| Fenêtres | Vitrage anti effraction en RDC |
| Aménagement des bureaux | Espaces Ouverts |
| Faux plafond | Oui |
| Eclairage Bureaux | Dalle LED 350 lux |
| Sol bureaux | Carrelage |
| Plinthes techniq.périphériques | Oui |
| Autre élément bureau | Climatisation réversible |
| Charpente | Métallique |
| Murs | Bardage double peau |
| Charge au sol RDC | 2,00 tonne(s)/m² bureau/mezzanine : 350kg |
| Hauteur sous poutre | 6,00 mètre(s) |
| Porte(s) d'accès plain-pied | porte sectionnelle motorisée 3,5 x 4 m par lot |
| Eclairage intérieur | LED 150 lux |
| Puissance électrique | Électricité 36kw par lot, 2 prises de 380V, 2 prises de 220V |
| Mezzanine | options : escalier métallique et garde-corps |
Afficher les consommations énergétiques
Surfaces divisibles : 46
| Surface | PrixHD/HH/m² | Étage / Batiment | Infos complémentaires |
| 40 m² | N.C | RDC | A1 |
| 4 m² | N.C | RDC | A1 |
| 110 m² | N.C | RDC | A1 |
| 171 m² | N.C | RDC | A2 |
| 4 m² | N.C | RDC | A2 |
| 110 m² | N.C | RDC | A3 |
| 41 m² | N.C | RDC | A3 |
| 4 m² | N.C | RDC | A3 |
| 167 m² | N.C | RDC | A4 |
| 163 m² | N.C | RDC | A6 |
| 167 m² | N.C | RDC | A7 |
| 163 m² | N.C | RDC | A10 |
| 108 m² | N.C | RDC | A11 |
| 41 m² | N.C | RDC | A11 |
| 4 m² | N.C | RDC | A11 |
| 167 m² | N.C | RDC | A8 |
| 163 m² | N.C | RDC | A9 |
| 167 m² | N.C | RDC | A12 |
| 163 m² | N.C | RDC | A13 |
| 163 m² | N.C | RDC | A14 |
| 167 m² | N.C | RDC | A15 |
| 167 m² | N.C | RDC | A16 |
| 163 m² | N.C | RDC | A17 |
| 163 m² | N.C | RDC | A18 |
| 55 m² | N.C | R+1 | A17 |
| 55 m² | N.C | R+1 | A18 |
| 55 m² | N.C | R+1 | A15 |
| 55 m² | N.C | R+1 | A16 |
| 55 m² | N.C | R+1 | A13 |
| 55 m² | N.C | R+1 | A14 |
| 55 m² | N.C | R+1 | A9 |
| 55 m² | N.C | R+1 | A10 |
| 40 m² | N.C | R+1 | A11 |
| 4 m² | N.C | R+1 | A11 |
| 28 m² | N.C | R+1 | A11 |
| 83 m² | N.C | R+1 | A12 |
| 55 m² | N.C | R+1 | A7 |
| 55 m² | N.C | R+1 | A8 |
| 83 m² | N.C | R+1 | A4 |
| 55 m² | N.C | R+1 | A6 |
| 46 m² | N.C | R+1 | A2 |
| 4 m² | N.C | R+1 | A2 |
| 40 m² | N.C | R+1 | A3 |
| 4 m² | N.C | R+1 | A3 |
| 39 m² | N.C | R+1 | A1 |
| 4 m² | N.C | R+1 | A1 |
Localisation et transport aux alentours
Favoris
Exporter
Appeler
Contacter
Signaler cette annonce








