MALSH Realty accompagne les entreprises dans leurs projets immobiliers, qu’il s’agisse de locaux d’activités, de bureaux, de commerces, d’entrepôts ou de terrains. L’agence intervient aussi bien au ...
En savoir plus

298 m² divisible dès 89 m²
HT HC
Location activité/entrepôt - 298 m²
Vaulx-en-Velin (69120)
Dernière mise à jour : Il y a 3 mois
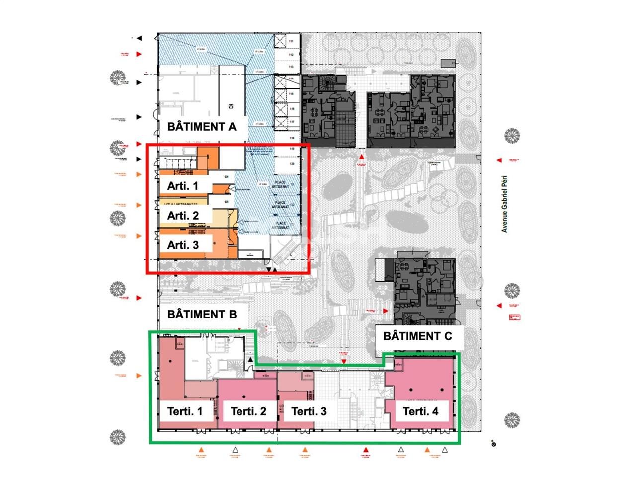
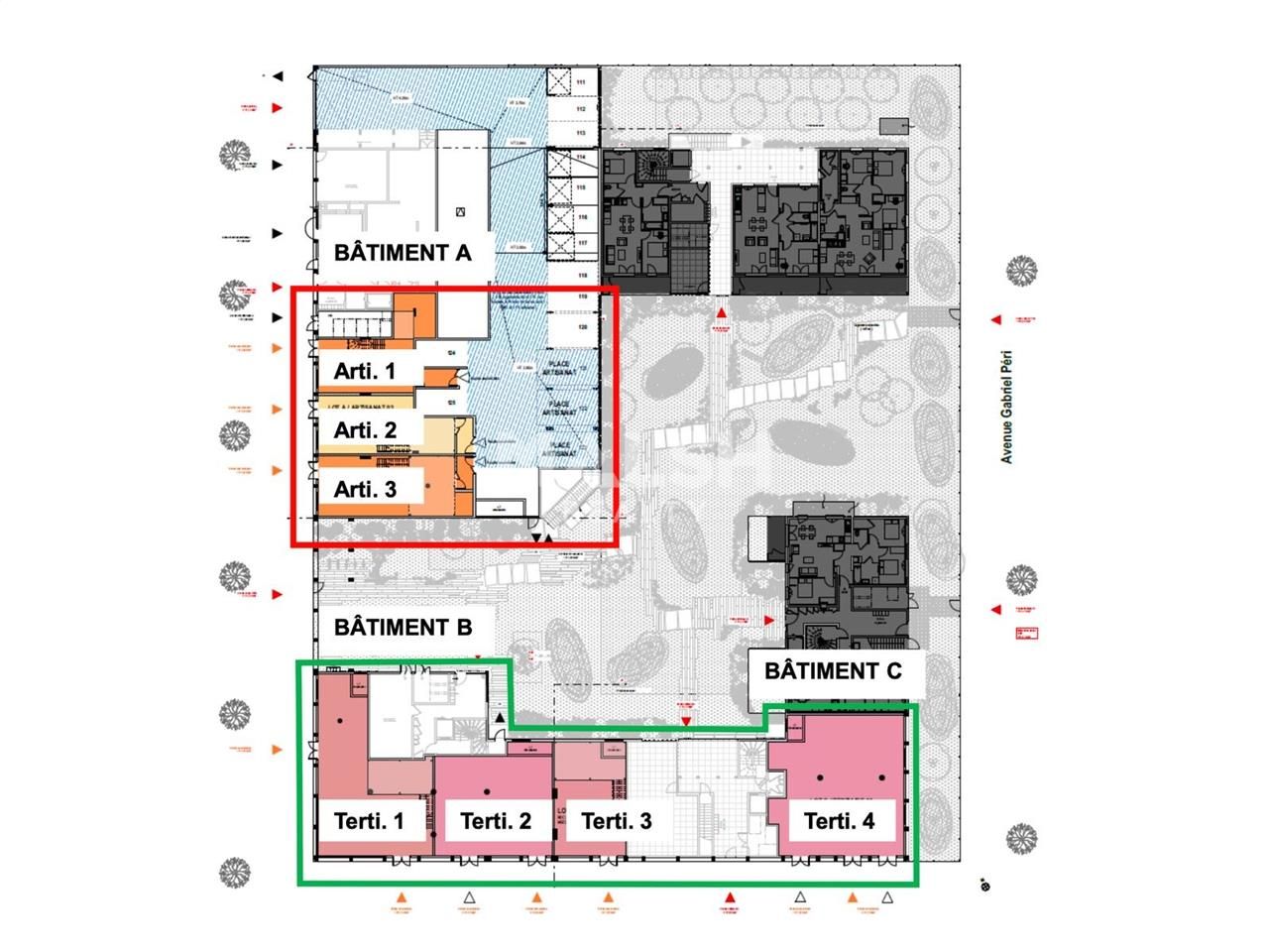
Locaux d'Activités neufs à VAULX-EN-VELIN - Centre-Ville - A VENDRE OU A LOUER - 297 m² divisibles à partir de 88 m²
En plein centre-ville de Vaulx-en-Velin, au sein d'un nouveau programme en cours de construction, nous vous proposons à la vente ou à la location, des locaux d'activités neufs d'une surface totale d'environ 297 m² divisibles en 3 lots à partir de 88 m². Ces locaux sont livrés bruts, fluides en attente.
Vente ou Location Locaux d'Activités neufs - Vaulx-en-Velin (69120) - Centre-ville - 297 m² divisibles à partir de 88 m²
MALSH Realty vous propose à la vente ou à la location en plein centre-ville de Vaulx-en-Velin et au sein d'un nouveau programme en cours de construction, des locaux d'activités neufs d'une surface totale d'environ 297 m² divisibles en 3 lots à partir de 88 m². Ces locaux sont livrés bruts, fluides en attente.
Livraison le 1er trimestre 2027 !
Régime Fiscal : T.V.A. (20%)
Dépôt de garantie : 3 mois de loyer HT/HC
Honoraires : 15 % HT du loyer annuel HT/HC à la charge du preneur, payables à la signature du bail
Prestations :
Accessibilité:
Autoroute A proximité immédiate du Boulevard Périphérique Laurent Bonnevay (à 5 min en voiture) et à 10 min en voiture des grands axes autoroutiers
Aéroport A 20 min de l'Aéroport international Lyon-Saint-Exupéry
Bus Bus TCL lignes C3 et C8 à proximité immédiate
Tram Tramway ligne T9 à 5 min à pied
Les informations sur les risques auxquels ce bien est exposé sont disponibles sur le site Géorisques : www.georisques.gouv.fr
En plein centre-ville de Vaulx-en-Velin, au sein d'un nouveau programme en cours de construction, nous vous proposons à la vente ou à la location, des locaux d'activités neufs d'une surface totale d'environ 297 m² divisibles en 3 lots à partir de 88 m². Ces locaux sont livrés bruts, fluides en attente.
Vente ou Location Locaux d'Activités neufs - Vaulx-en-Velin (69120) - Centre-ville - 297 m² divisibles à partir de 88 m²
MALSH Realty vous propose à la vente ou à la location en plein centre-ville de Vaulx-en-Velin et au sein d'un nouveau programme en cours de construction, des locaux d'activités neufs d'une surface totale d'environ 297 m² divisibles en 3 lots à partir de 88 m². Ces locaux sont livrés bruts, fluides en attente.
Livraison le 1er trimestre 2027 !
| Étage | Type | Surfaces | Dispo | Loyer | Charges | Type de bailRév. annuelle |
|---|---|---|---|---|---|---|
| Mezzanine | 22,8 | ILAT Indice des Loyers des Activités Tertiaires | ||||
| RDC | Activités | 73,8 | ILAT Indice des Loyers des Activités Tertiaires | |||
| Parkings | ILAT Indice des Loyers des Activités Tertiaires | |||||
| Total Cellule Artisanat 01 | Activités | 96,6 | Livraison 1er trimestre 2027 | 149,91 HT/HC/m²/an | commercial 3-6-9 ansILAT Indice des Loyers des Activités Tertiaires | |
| Mezzanine | 15,8 | ILAT Indice des Loyers des Activités Tertiaires | ||||
| RDC | Activités | 73,1 | ILAT Indice des Loyers des Activités Tertiaires | |||
| Parkings | ILAT Indice des Loyers des Activités Tertiaires | |||||
| Total Cellule Artisanat 02 | Activités | 88,9 | Livraison 1er trimestre 2027 | 151,2 HT/HC/m²/an | commercial 3-6-9 ansILAT Indice des Loyers des Activités Tertiaires | |
| Mezzanine | 26 | ILAT Indice des Loyers des Activités Tertiaires | ||||
| RDC | Activités | 86,1 | ILAT Indice des Loyers des Activités Tertiaires | |||
| Parkings | ILAT Indice des Loyers des Activités Tertiaires | |||||
| Total Cellule Artisanat 03 | Activités | 112,1 | Livraison 1er trimestre 2027 | 147,85 HT/HC/m²/an | commercial 3-6-9 ansILAT Indice des Loyers des Activités Tertiaires |
Régime Fiscal : T.V.A. (20%)
Dépôt de garantie : 3 mois de loyer HT/HC
Honoraires : 15 % HT du loyer annuel HT/HC à la charge du preneur, payables à la signature du bail
Prestations :
- Locaux livrés bruts avec fluides en attente
- Locaux double hauteur (4,90 m en moyenne)
- Résistance dallage 1T/m²
- Portes et menuiseries extérieures thermolaquées
- Vitrages anti-effraction pour plus de sécurité
- Aménagement mezzanine adaptable
- Locaux à vélos
- 3 places de stationnement couvertes pour camionnettes L2H2 dédiées avec aire de retournement (1 pour chaque lot)
Accessibilité:
Autoroute A proximité immédiate du Boulevard Périphérique Laurent Bonnevay (à 5 min en voiture) et à 10 min en voiture des grands axes autoroutiers
Aéroport A 20 min de l'Aéroport international Lyon-Saint-Exupéry
Bus Bus TCL lignes C3 et C8 à proximité immédiate
Tram Tramway ligne T9 à 5 min à pied
Les informations sur les risques auxquels ce bien est exposé sont disponibles sur le site Géorisques : www.georisques.gouv.fr
Voir plus
Afficher les consommations énergétiques
Localisation et transport aux alentours
Favoris
Exporter
Appeler
Contacter
Signaler cette annonce










