L’agence CBRE Toulouse conseille et accompagne les chefs d’entreprise dans leurs projets immobiliers quels que soient leur taille et leur secteur d’activité. Spécialistes de la transaction de burea ...
En savoir plus

1 335 m² divisible dès 267 m²
HT HC
Location activité/entrepôt - 1335 m²
Launaguet (31140)
Dernière mise à jour : Il y a 2 mois
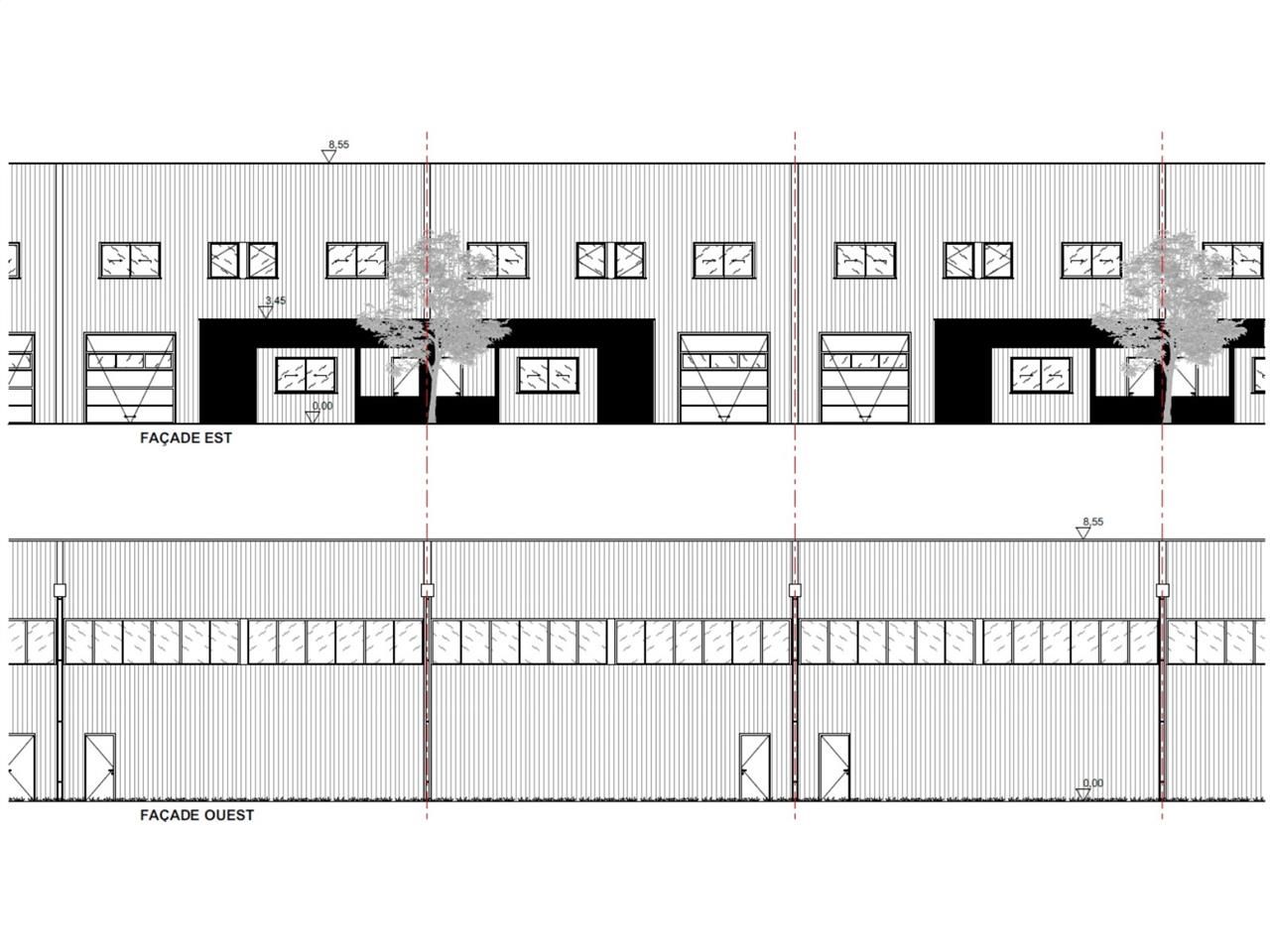
Locaux d'activité à louer dans un " Pôle multi activité " en cours de construction, situé à LAUNAGUET, au Nord de TOULOUSE.
Dans un programme neuf qui sera composé à terme de 4 bâtiments à usage de locaux d'activité et de bureaux .
Le Bâtiment 1 propose 9 lots de 267 m² chacun. Chaque lot comprends des bureaux : 1 bureau en Rdc et 1 open-space en étage.
Locaux livrés entièrement terminés .
Site accessible par le périphérique (à 1,5km) . Rocade Nord-Est.
Lignes de Bus 26 et 60 .
Piste cyclable .
Régime Fiscal : T.V.A.
Dépôt de garantie : 3 mois de loyer HT/HC
Honoraires : 15% (+TVA) du loyer annuel HT HC à la charge du preneur
Information sur le Bail :
Soit un loyer par lot de : 30 705,00 euros /an HT HC Loyer et charges payables par trimestre et d'avance
Prestations :
Accessibilité:
Route Accessibilité périphérique à 1,5km .Rocade Nord-Est;
Bus Lignes de Bus 26 et 60 .
Piste cyclable .
Les informations sur les risques auxquels ce bien est exposé sont disponibles sur le site Géorisques : www.georisques.gouv.fr
Dans un programme neuf qui sera composé à terme de 4 bâtiments à usage de locaux d'activité et de bureaux .
Le Bâtiment 1 propose 9 lots de 267 m² chacun. Chaque lot comprends des bureaux : 1 bureau en Rdc et 1 open-space en étage.
Locaux livrés entièrement terminés .
Site accessible par le périphérique (à 1,5km) . Rocade Nord-Est.
Lignes de Bus 26 et 60 .
Piste cyclable .
| Étage | Type | Surfaces | Dispo | Loyer | Charges | Type de bailRév. annuelle |
|---|---|---|---|---|---|---|
| Activités | 267 | Immédiate | 115 m²/an HT HC | 3-6-9 ansIndice ILAT | ||
| Activités | 267 | Immédiate | 115 m²/an HT HC | 3-6-9 ansIndice ILAT | ||
| Activités | 267 | Immédiate | 115 m²/an HT HC | 3-6-9 ansIndice ILAT | ||
| Activités | 267 | Immédiate | 115 m²/an HT HC | 3-6-9 ansIndice ILAT | ||
| Activités | 267 | Immédiate | 115 m²/an HT HC | 3-6-9 ansIndice ILAT |
Régime Fiscal : T.V.A.
Dépôt de garantie : 3 mois de loyer HT/HC
Honoraires : 15% (+TVA) du loyer annuel HT HC à la charge du preneur
Information sur le Bail :
Soit un loyer par lot de : 30 705,00 euros /an HT HC Loyer et charges payables par trimestre et d'avance
Prestations :
- Dans un parc d'activité clôturé et fermé.
- Portails automatiques.
- Accès PL avec sens de circulation.
- Un bâtiment en bardage métallique double peau, toiture bac acier isolé, trappes de désenfumage.
- 9 cellules d'activités, cloisons intermédiaires maçonnées de 267 m² SDP.
- Répartition de surfaces :
- 192 m² de dépôt en RdC
- 25 m² de bureaux en RdC
- 50 m² de bureaux en étage
- Système d'alarme + éclairage extérieur.
- Partie DEPOT :
- Une porte sectionnelle motorisée H 3m
- Un accès piéton
- Dalle béton lissé, finition quartz, charge d'exploitation 1 T./ m².
- Hauteur SP : 5,85 à 6,5 mètres.
- Eclairage gamelles LED.
- Electricité tarif bleu, triphasé.
- Raccordements électriques courants forts
- Partie BUREAUX :
- Au RdC : un bureau cloisonné, un bloc sanitaire avec WC PMR, douche et lave-mains, un local technique.
- A l'étage : un grand open-space
- Bureaux aménagés, dalles LED intégrées, climatisation réversible.
- Raccordements électriques courants faibles.
- 2 emplacements de voitures extérieurs par lot dont 1 PMR.
- Electricité en attente pour borne de recharge électrique.
Accessibilité:
Route Accessibilité périphérique à 1,5km .Rocade Nord-Est;
Bus Lignes de Bus 26 et 60 .
Piste cyclable .
Les informations sur les risques auxquels ce bien est exposé sont disponibles sur le site Géorisques : www.georisques.gouv.fr
Voir plus
Afficher les consommations énergétiques
Favoris
Exporter
Appeler
Contacter
Signaler cette annonce










