Nous sommes Immprove, une grande équipe de plus de 200 experts en immobilier d’entreprise, implantés localement avec plus de 20 agences sur tout le territoire.Depuis 2009, notre proximité, notre ét ...
En savoir plus

1 799 m² divisible dès 779 m²
HT HC
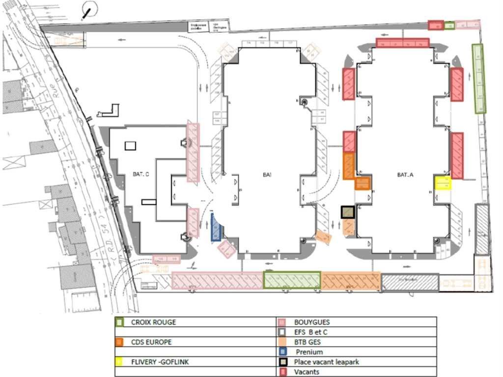
LEAPARK - Location activité/entrepôt - 1799 m²
Ivry-sur-Seine (94200)
Dernière mise à jour : Il y a 2 mois
LOCAUX D'ACTIVITE PROCHE METRO 7
Immeuble LEAPARK
IMMPROVE vous propose une opportunité exceptionnelle à Ivry-sur-Seine pour la location de locaux d'activités de qualité, d'une superficie totale de 1 799 m², divisibles à partir de 779 m². Ces locaux bénéficient d'une clôture, d'une porte sectionnelle, d'une belle hauteur sous plafond et d'une luminosité optimale. Les bureaux d'accompagnement sont également présents, ainsi que des places de parking. Idéalement situés à proximité du métro 7 "Mairie d'Ivry", ces locaux offrent un cadre de travail idéal pour votre entreprise. Une occasion à ne pas manquer, contactez IMMPROVE dès aujourd'hui pour en savoir plus et organiser une visite.
Impôt Foncier : 20 €/m²/an HT
Régime Fiscal : T.V.A. (20%)
Dépôt de garantie : 3 mois de loyer HT HC
Honoraires : 15% HT du loyer annuel HT HC à la charge du preneur
Prestations :
Accessibilité:
Bus Jean Le Galleu (BUS-125, BUS-323), Lucien Selva (BUS-132)
Tram La Briqueterie (TRAMWAY-9)
RER Ivry-sur-Seine (C)
Métro Mairie d'Ivry (METRO-7)
Autoroute A4
Autoroute A6
Les informations sur les risques auxquels ce bien est exposé sont disponibles sur le site Géorisques : www.georisques.gouv.fr
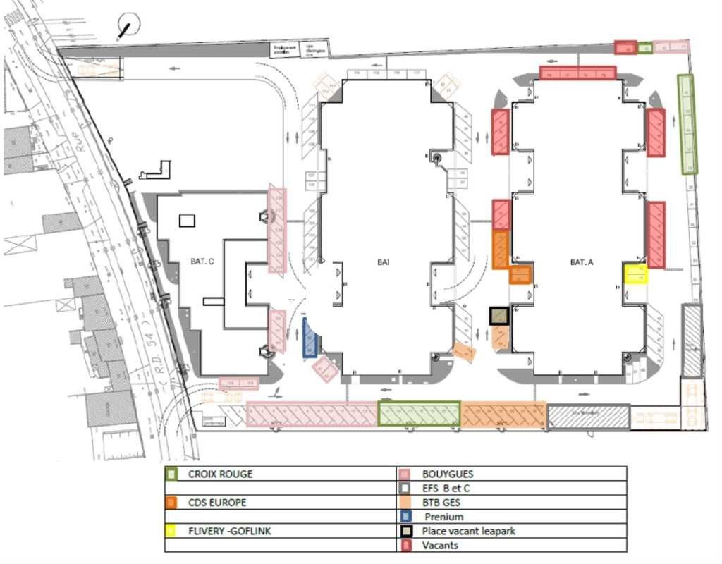
Immeuble LEAPARK
IMMPROVE vous propose une opportunité exceptionnelle à Ivry-sur-Seine pour la location de locaux d'activités de qualité, d'une superficie totale de 1 799 m², divisibles à partir de 779 m². Ces locaux bénéficient d'une clôture, d'une porte sectionnelle, d'une belle hauteur sous plafond et d'une luminosité optimale. Les bureaux d'accompagnement sont également présents, ainsi que des places de parking. Idéalement situés à proximité du métro 7 "Mairie d'Ivry", ces locaux offrent un cadre de travail idéal pour votre entreprise. Une occasion à ne pas manquer, contactez IMMPROVE dès aujourd'hui pour en savoir plus et organiser une visite.
| Étage | Type | Surfaces | Dispo | Loyer | Charges | Type de bailRév. annuelle |
|---|---|---|---|---|---|---|
| 1 | Bureaux | 256 | selon l'indice des loyers des activités tertiaires (ILAT) | |||
| RDC | Activités | 523 | selon l'indice des loyers des activités tertiaires (ILAT) | |||
| Parkings | 960 m²/an HT HC | selon l'indice des loyers des activités tertiaires (ILAT) | ||||
| Total Cellule 1B | Activités | 779 | 180 m²/an HT HC | Bail Commercial 3-6-9 ansselon l'indice des loyers des activités tertiaires (ILAT) | ||
| 1 | Bureaux | 348 | selon l'indice des loyers des activités tertiaires (ILAT) | |||
| RDC | Activités | 672 | selon l'indice des loyers des activités tertiaires (ILAT) | |||
| Parkings | 960 m²/an HT HC | selon l'indice des loyers des activités tertiaires (ILAT) | ||||
| Total Cellule 1A | Activités | 1020 | 180 m²/an HT HC | Bail Commercial 3-6-9 ansselon l'indice des loyers des activités tertiaires (ILAT) |
Impôt Foncier : 20 €/m²/an HT
Régime Fiscal : T.V.A. (20%)
Dépôt de garantie : 3 mois de loyer HT HC
Honoraires : 15% HT du loyer annuel HT HC à la charge du preneur
Prestations :
- Immeuble récent
- Immeuble moderne mixte bureaux et activités
- Façade mur rideau
- Parties communes de qualité
- Ascenseur
- Monte-charge
- Site sécurisé 24h/24h et clos
- Digicode
- Interphone
- Accès véhicules légers
- Accès poids lourds
- Accès PMR
- Accès privatif sur rue
- Aire de manoeuvre
- Aire de chargement
- Portail d'accès
- Vitrage anti-effraction
- Fibre optique
- Porte sectionnelles de plain pied
- Porte : camion camionnette
- Bon état
- Bureaux cloisonnés
- Sanitaires privatifs
- Climatisation réversible
- Charpente: béton traité anti-poussière et anti-usure
- Résistance au sol: 2T/m²
- Accès : plan pied
- Portes sectionnelles de plan pied
- Porte : camion et camionnette
- Vitrage anti-effraction
- Tarif jaune 84 KVA (lot electrogeloz)
- Fibre
- 5,80m d'hauteur sous poutre
- Surface RDC : 1195 m²
- Surface terrain : 0
Accessibilité:
Bus Jean Le Galleu (BUS-125, BUS-323), Lucien Selva (BUS-132)
Tram La Briqueterie (TRAMWAY-9)
RER Ivry-sur-Seine (C)
Métro Mairie d'Ivry (METRO-7)
Autoroute A4
Autoroute A6
Les informations sur les risques auxquels ce bien est exposé sont disponibles sur le site Géorisques : www.georisques.gouv.fr
Voir plus
Afficher les consommations énergétiques
Localisation et transport aux alentours
Favoris
Exporter
Appeler
Contacter
Signaler cette annonce










