L’agence CBRE Bordeaux conseille et accompagne les chefs d’entreprise dans leurs projets immobiliers quels que soient leur taille et leur secteur d’activité. Spécialistes de la transaction de burea ...
En savoir plus

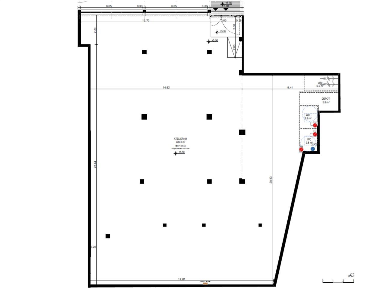
1 753 m² divisible dès 211 m²
Activité/Entrepôt à vendre - 1753 m²
Bordeaux (33000)
Dernière mise à jour : Il y a 5 mois
RARE OPPORTUNITE sur le secteur de Bordeaux Brazza : locaux artisanaux en pieds d'immeubles à partir de 210 m² à vendre au prix de 1 200 euros/m² HT HD, hors parking. Hauteur de 4 à 5m, accès VL et vitrine en façade. Les locaux sont livrés bruts et sont disponibles immédiatement. Idéal pour des activités artisanales, showrooms, ateliers de réparation ou petites productions, recherchant une accessibilité et proximité immédiate au centre-ville de Bordeaux.
Pour plus d'informations, n'hésitez pas à nous contacter au 05 33 06 50 38.
Régime Fiscal : T.V.A.
Honoraires : 4% HT du prix de vente HT à la charge de l'acquéreur
Prestations :
Accessibilité:
Bus Lignes 7,27 & 61 - Arrêt "André Ricard"
Bus Ligne 31 - Arrêt "Guesde"
SNCF Gare de Cenon à 1,6km
Route N89 à 4,7km
Les informations sur les risques auxquels ce bien est exposé sont disponibles sur le site Géorisques : www.georisques.gouv.fr
Pour plus d'informations, n'hésitez pas à nous contacter au 05 33 06 50 38.
| Étage | Type | Surfaces | Dispo | Prix(m²) | Charges | Honoraires | Fiscal |
|---|---|---|---|---|---|---|---|
| Activités | 507,52 | Immédiate | 1200 m² HD | n.c. | 4% HT du prix de vente HT à la charge de l'acquéreur | T.V.A. | |
| Activités | 400,86 | Immédiate | 1200 m² HD | n.c. | 4% HT du prix de vente HT à la charge de l'acquéreur | T.V.A. | |
| Activités | 318,41 | Immédiate | 1200 m² HD | n.c. | 4% HT du prix de vente HT à la charge de l'acquéreur | T.V.A. | |
| Activités | 315,81 | Immédiate | 1200 m² HD | n.c. | 4% HT du prix de vente HT à la charge de l'acquéreur | T.V.A. | |
| Activités | 210,58 | Immédiate | 1200 m² HD | n.c. | 4% HT du prix de vente HT à la charge de l'acquéreur | T.V.A. |
Régime Fiscal : T.V.A.
Honoraires : 4% HT du prix de vente HT à la charge de l'acquéreur
Prestations :
- Locaux livrés bruts, fluides en attente
- Hauteurs libres sous plafond : 5,30 m en partie courante, et 4,30 m sous poutres ou réseaux (en fonction des lots).
- Accès piéton pour chaque lot
- Accès VL pour les locaux artisanaux
- Châssis vitrés ou murs rideaux (voir notice complète en fonction des lots)
- Electricité : Platine Tarif Bleu / puissance 32A.
- Fibre : bâtiment sera raccordé au réseau fibre géré par Orange. Chaque local dispose de fourreaux en attente au départ des gaines techniques ou du local opérateur.
- Charge du plancher bas : 500 kg/m².
- Sol : béton brut - finition à la charge du preneur
- Porte ouvrant à la française ? 2.45 m de passage libre et 2.10 m de haut
- Règlementation acoustique : De manière générale, le niveau de bruit généré par les activités dans les logements ne devra pas dépasser 20 db(A).
- 1 Place de parking minimum/lot : prix de 21 250 euros HT en sus du prix
- Surface RDC : 0 m²
- Surface terrain : 0
- Haut. libre min. ss poutre : 4,3 m
- Haut. libre max. ss poutre : 5,3 m
Accessibilité:
Bus Lignes 7,27 & 61 - Arrêt "André Ricard"
Bus Ligne 31 - Arrêt "Guesde"
SNCF Gare de Cenon à 1,6km
Route N89 à 4,7km
Les informations sur les risques auxquels ce bien est exposé sont disponibles sur le site Géorisques : www.georisques.gouv.fr
Voir plus
Afficher les consommations énergétiques
Favoris
Exporter
Appeler
Contacter
Signaler cette annonce










