L''agence BNP Paribas Real Estate est présente à Bordeaux depuis 40 ans. Elle accompagne les investisseurs et les entreprises dans chaque projet d''agrandissement, d''acquisition, de location et de ...
En savoir plus



Location activité/entrepôt - 7160 m²
Un programme d'activités innovant et durable au Haillan
Situé à Bordeaux, ce programme immobilier d'activités, labellisé BREEAM Excellent et BIODIVERCITY, allie performance, flexibilité et respect de l'environnement. Développé en plusieurs phases, il proposera 10 btiments adaptés aux besoins des entreprises.
Deux typologies d'espaces pour une offre complète et modulable
Showrooms / BtoB / Services et Bureaux
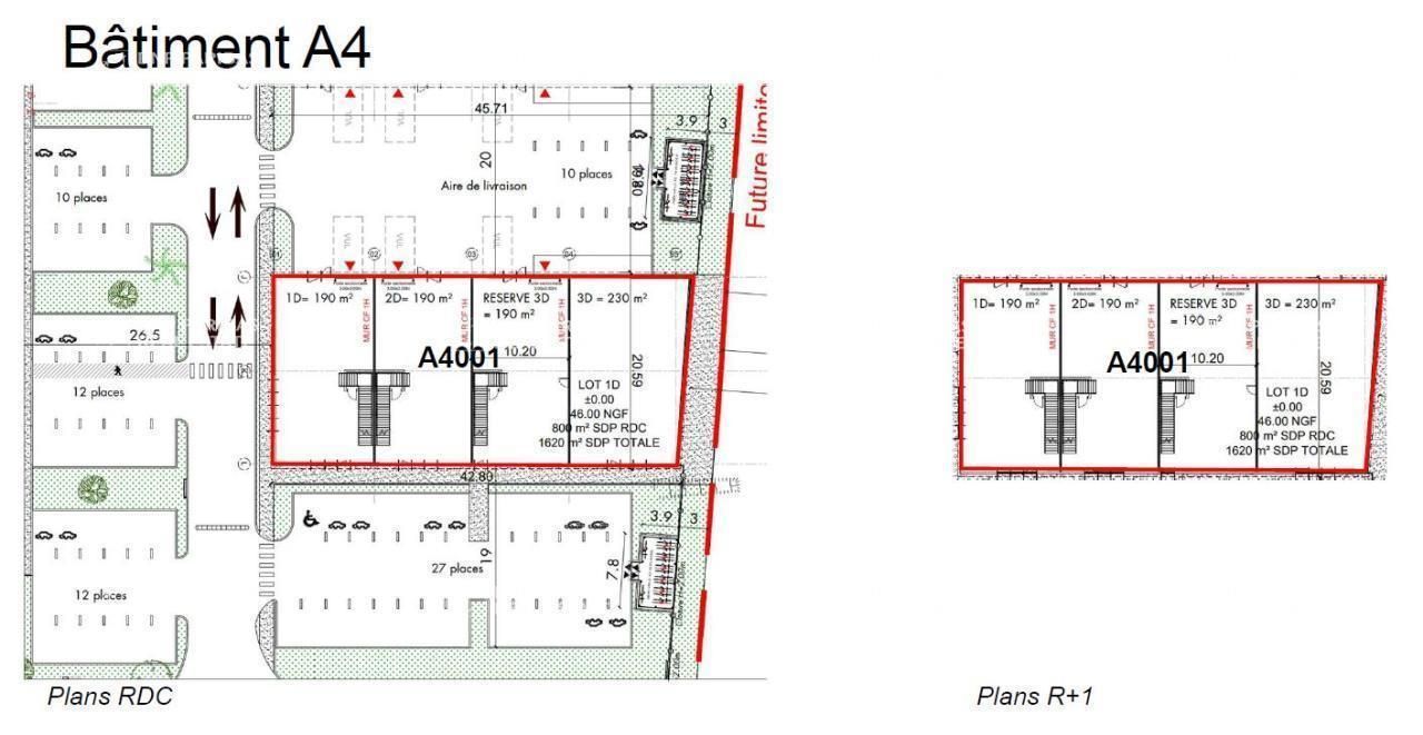
4 immeubles indépendants de 2 000 m² chacun, divisibles dès 780 m², avec une visibilité exceptionnelle sur le futur boulevard technologique :
Facades vitrées offrant une vitrine idéale pour des activités commerciales et de services
Bureaux en R+1, favorisant le confort et la modularité des espaces
Stationnement généreux, facilitant l'accueil des clients et collaborateurs
Détails des immeubles (livraison au 31/01/2026) :
- Btiment A1 : 1 950 m² Btiment A2 : 1 850 m² Btiment A3 : 1 740 m² Btiment A4 : 1 620 m²
Locaux d'activités et de stockage
6 btiments d'activités offrant 11 lots allant de 1 920 à 13 080 m², concus pour la performance industrielle :
Locaux d'activités
Entrepôts accessibles via portes sectionnelles de plain-pied ou à quai
Halls d'accueil en RDC pour un accueil fonctionnel
Bureaux climatisés en R+1
Places de stationnement VL adaptées aux besoins des utilisateurs
Calendrier de livraison détaillé
31/01/2026
- 4 immeubles de Showroom / BtoB / Services / Bureaux A1 à A4
- Btiment B : 10 626 m² dédié aux petites activités et à l'artisanat, avec des cellules à partir de 225 m²
31/03/2026
- Btiment C : 7 303 m² pour les grandes activités et le stockage, immeuble indépendant
- Btiment D : 6 618 m² pour le stockage, immeuble indépendant
31/05/2026
- Btiment E : 12 965 m², cellules à partir de 5 051 m²
- Btiment F : 13 083 m², cellules à partir de 5 396 m²
01/09/2026
01/11/2026
- Btiment G : 11 337 m² dédié aux activités et au stockage, immeuble indépendant
Un cadre de travail optimisé et un environnement préservé
25 hectares d'espaces verts aménagés pour offrir un cadre de travail agréable
Equipements extérieurs : Food trucks, parcours sportifs, liaisons douces en vélo
Flux maitrisés : accès clients à l'avant et livraisons à l'arrière
Ce programme rare sur le secteur du Haillan est une opportunité unique pour les entreprises en quête de visibilité, d'accessibilité et de performance.
Contactez-nous dès maintenant pour en savoir plus ! 05 56 44 09 12
Disponibilité: 31/01/2026Honoraires: 15% HT du loyer HT/HC. à la signature du bail
| Fiche technique du bien | |
|---|---|
| Bus | LIGNE 39 10 m |
| Tramway | A AEROPORT |
| Desserte routière | ROCADE SORTIE 10 2 km |
| Aéroport | 2 km |
| Aménagement des bureaux | Espaces Ouverts |
| Hauteur sous-plafond | 2,70 mètre(s) |
| Eclairage Bureaux | Luminaires encastrés |
| Sol bureaux | Moquette |
| Plinthes techniq.périphériques | Oui |
| Sanitaire(s) | Privatif(s) |
| Couverture | Bac acier isolé |
| Charge au sol RDC | 1,00 tonne(s)/m² |
| Hauteur libre | 8,00 mètre(s) |
| Porte(s) d'accès plain-pied | 3x3,5 |
| Accessibilité type véhicules | Moyens porteurs |
| Eclairage intérieur | LED |
| Rampe(s) d'accès | Oui |
Surfaces divisibles : 14
| Surface | LoyerHT/HC/m²/an | Étage / Batiment | Infos complémentaires |
| 380 m² | N.C | RDC | Bâtiment A1 |
| 580 m² | N.C | RDC | Bâtiment A1 |
| 380 m² | N.C | RDC | Bâtiment A2 |
| 530 m² | N.C | RDC | Bâtiment A2 |
| 380 m² | N.C | RDC | Bâtiment A3 |
| 480 m² | N.C | RDC | Bâtiment A3 |
| 800 m² | N.C | RDC | Bâtiment A4 |
| 820 m² | N.C | R+1 | Bâtiment A4 |
| 480 m² | N.C | R+1 | Bâtiment A3 |
| 400 m² | N.C | R+1 | Bâtiment A3 |
| 540 m² | N.C | R+1 | Bâtiment A2 |
| 400 m² | N.C | R+1 | Bâtiment A2 |
| 590 m² | N.C | R+1 | Bâtiment A1 |
| 400 m² | N.C | R+1 | Bâtiment A1 |
