Conseil en immobilier d'entreprise, Cushman & Wakefield est un acteur incontournable au rayonnement international. Cushman & Wakefield offre des solutions dans toutes les étapes que comporte un p ...
En savoir plus



5 120 m²
HT HC
Location activité/entrepôt - 5120 m²
Saint-Quentin-Fallavier (38070)
Dernière mise à jour : Il y a 5 jours
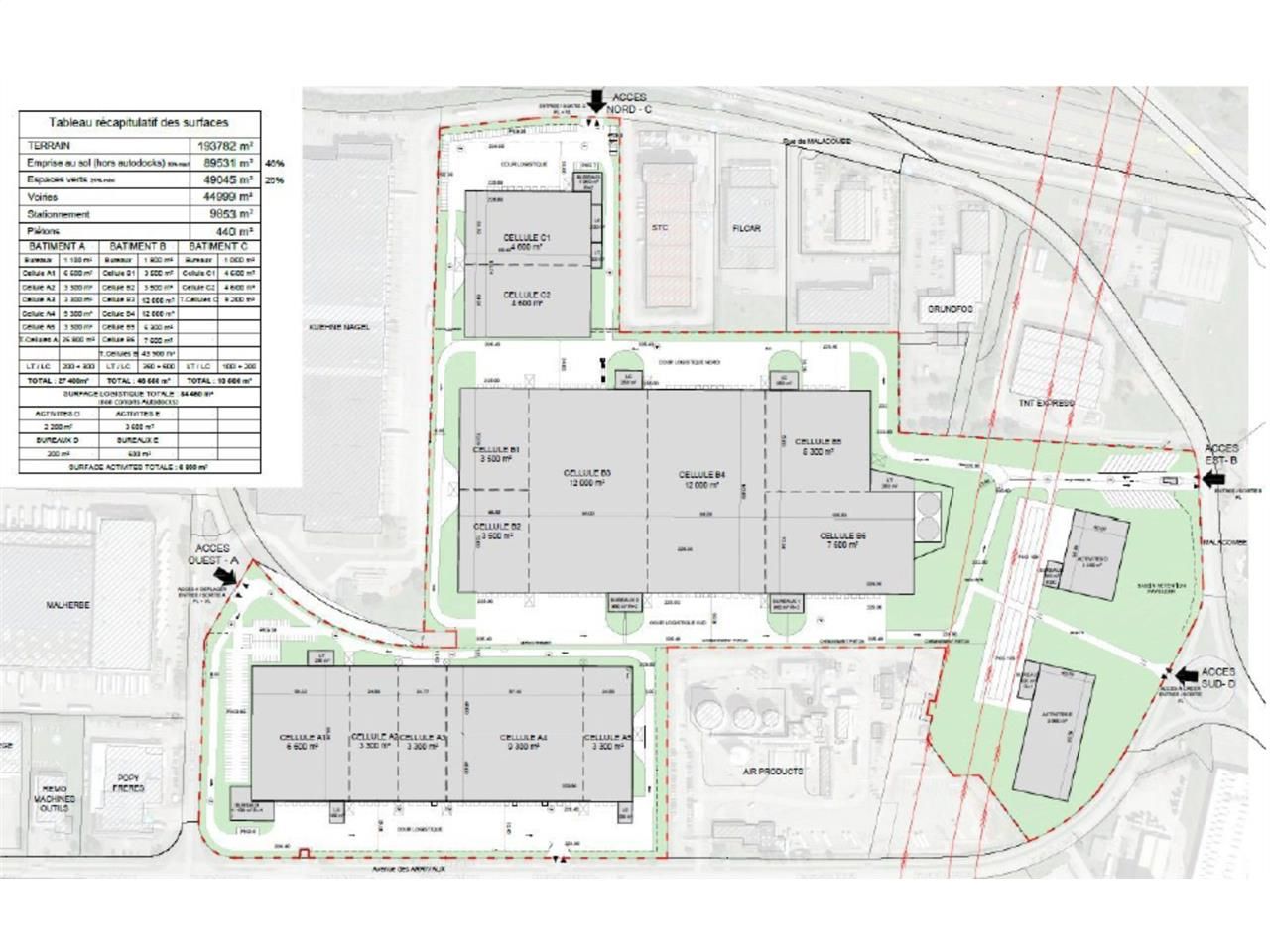
Disponible à la location, futur site logistique situé au sein de la commune de Saint Quentin Fallavier au Nord de l'Isère. Ce site est divisibles en 3 entrepôts à louer qui bénéficie d'un emplacement stratégique à proximité immédiate de l'A43 et à environ 30 min de Lyon.
Ces bâtiments en construction à usage d'entrepôt dispose de toutes les prestations nécessaires pour un environnement logistique fonctionnel et classé A.
Implantés sur un foncier de 19 hectares, ces bâtiments disposent d'une hauteur libre sous poutres de 12 m en zone de stockage et de quais autodocks,
Ces cellules sont idéales pour des activités de stockage logistique ou à la distribution.
Ces bâtiments bénéficient de plusieurs autorisations d'exploiter ICPE : 1510, 1530,2662, 2663, 2925
Impôt Foncier : 9,8 €//m²/an
Régime Fiscal : T.V.A.
Dépôt de garantie : 3 mois de loyer HT/HC
Honoraires : à la charge du preneur
Prestations :
Accessibilité:
Accès routier A43, sortie 5 à proximité
Accès routier Raccordement A42-A46
SNCF Lyon Saint Ex. à 12,4 km
SNCF Lyon Part-Dieu (TGV) à 27 km
Aéroport Lyon Saint Ex. à 12,4 km
Les informations sur les risques auxquels ce bien est exposé sont disponibles sur le site Géorisques : www.georisques.gouv.fr
Ces bâtiments en construction à usage d'entrepôt dispose de toutes les prestations nécessaires pour un environnement logistique fonctionnel et classé A.
Implantés sur un foncier de 19 hectares, ces bâtiments disposent d'une hauteur libre sous poutres de 12 m en zone de stockage et de quais autodocks,
Ces cellules sont idéales pour des activités de stockage logistique ou à la distribution.
Ces bâtiments bénéficient de plusieurs autorisations d'exploiter ICPE : 1510, 1530,2662, 2663, 2925
| Étage | Type | Surfaces | Dispo | Loyer | Charges | Type de bailRév. annuelle |
|---|---|---|---|---|---|---|
| RdC | Entrepôts | 4409 | 90 HT/HC/m²/an | 6-9 ansSur l'indice ILAT | ||
| RdC | Bureaux | 711 | 90 HT/HC/m²/an | 6-9 ansSur l'indice ILAT |
Impôt Foncier : 9,8 €//m²/an
Régime Fiscal : T.V.A.
Dépôt de garantie : 3 mois de loyer HT/HC
Honoraires : à la charge du preneur
Prestations :
- Foncier : 19 ha
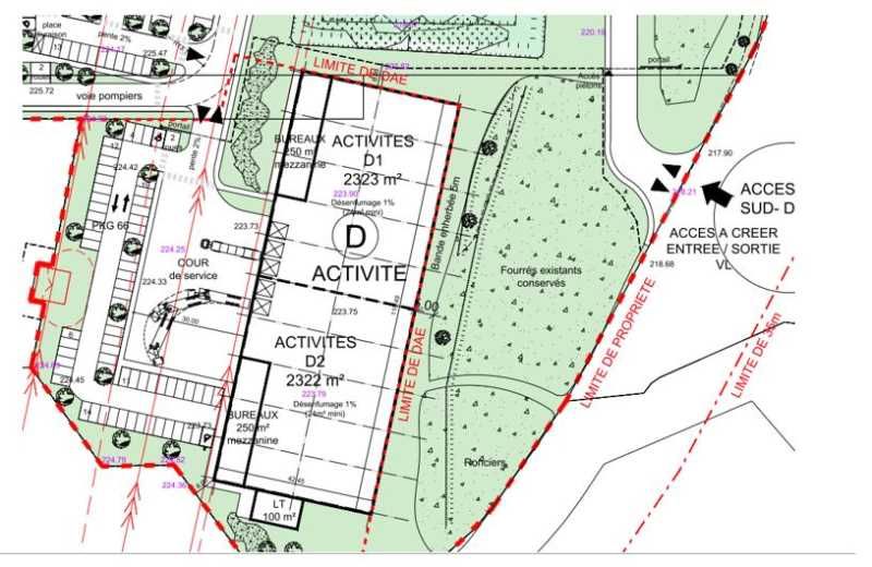
- 3 entrepôts de classe A et un bâtiment D d'activité
- Certification BREEAM Excellent
- Site clôturé, portail motorisé, barrières levantes, espaces verts
- Site télésurveillé avec système vidéosurveillance (66 caméras), couverture périphérique et volumétrique avec contrôle des accès
- Hauteur libre d'environ 12 m
- Résistance au sol : 5 T/m²
- Equipements de quais : autodocks isolés, portes sectionnelles, sas d'étanchéité à lèvres rétractables, butoirs, guide roues
- Cour de livraison de 30 m de profondeur
- Poste de garde avec présence gardien 24/24
- Panneaux photovoltaïques
- Bureaux livrés nus
- Locaux sanitaires, locaux sociaux et vestiaires
- Rafraichissement d'air inclus
- Précâblage informatique et mobilier à prévoir
- Trame de 12 m x 24 m
- Éclairage LED pour les quais
- Rafraichissement d'air inclus
- Cloisonnement intérieur des bureaux inclus
- Surface RDC : 5120 m²
- Bâtiment classe :A
Accessibilité:
Accès routier A43, sortie 5 à proximité
Accès routier Raccordement A42-A46
SNCF Lyon Saint Ex. à 12,4 km
SNCF Lyon Part-Dieu (TGV) à 27 km
Aéroport Lyon Saint Ex. à 12,4 km
Les informations sur les risques auxquels ce bien est exposé sont disponibles sur le site Géorisques : www.georisques.gouv.fr
Voir plus
Afficher les consommations énergétiques
Favoris
Exporter
Appeler
Contacter
Signaler cette annonce










