L’agence CBRE Bordeaux conseille et accompagne les chefs d’entreprise dans leurs projets immobiliers quels que soient leur taille et leur secteur d’activité. Spécialistes de la transaction de burea ...
En savoir plus

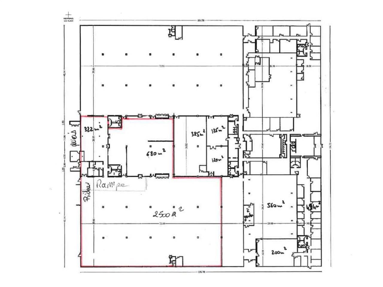
3 500 m² divisible dès 1 000 m²
HT HC
Location activité/entrepôt - 3500 m²
Canéjan (33610)
Dernière mise à jour : Il y a 7 mois
CBRE Bordeaux vous propose à la location un bâtiment industriel idéalement placé dans une ZAC de qualité à CANEJAN (33610) avec un accès direct sur l'A63.
L'entrepôt dispose d'une surface totale de 3500m2 avec porte sectionnelle, et 1000m2 de sas, bureaux d'expédition et 2 quais.
Les surfaces sont divisibles et modulables de 2500 à 3500m2 et sont disponibles immédiatement.
Bail dérogatoire possible.
Pour plus de renseignements ou pour visiter, n'hésitez pas à me contacter :
Anaïs Judas
07.63.74.33.75 - [email protected]
Impôt Foncier : 21000 €/an HT
Régime Fiscal : T.V.A.
Honoraires : 20% HT du loyer annuel HT HC à la charge du preneur.
Information sur le Bail :
Dépôt de garantie : 1 mois de loyer
Prestations :
Accessibilité:
Autoroute A63 sortie n°25
Les informations sur les risques auxquels ce bien est exposé sont disponibles sur le site Géorisques : www.georisques.gouv.fr
L'entrepôt dispose d'une surface totale de 3500m2 avec porte sectionnelle, et 1000m2 de sas, bureaux d'expédition et 2 quais.
Les surfaces sont divisibles et modulables de 2500 à 3500m2 et sont disponibles immédiatement.
Bail dérogatoire possible.
Pour plus de renseignements ou pour visiter, n'hésitez pas à me contacter :
Anaïs Judas
07.63.74.33.75 - [email protected]
| Étage | Type | Surfaces | Dispo | Loyer | Charges | Type de bailRév. annuelle |
|---|---|---|---|---|---|---|
| RDC | Entrepôts | 2500 | Immédiate | 40 m²/an HT HC | 8 HT/m²/an | 3-6-9 ansIndice ILAT |
| RDC | Activités | 1000 | Immédiate | 40 m²/an HT HC | 8 HT/m²/an | 3-6-9 ansIndice ILAT |
Impôt Foncier : 21000 €/an HT
Régime Fiscal : T.V.A.
Honoraires : 20% HT du loyer annuel HT HC à la charge du preneur.
Information sur le Bail :
Dépôt de garantie : 1 mois de loyer
Prestations :
- 1 porte sectionnelle
- 2 quais
- Puissance élec. : 250kwa
- Bureaux
- Bail dérogatoire possible
- Surface RDC : 3500 m²
- Surface terrain : 0
- Haut. libre max. ss poutre : 6,5 m
- Résistance sol : 5 T/m²
- Nbr de portes à quai : 2
Accessibilité:
Autoroute A63 sortie n°25
Les informations sur les risques auxquels ce bien est exposé sont disponibles sur le site Géorisques : www.georisques.gouv.fr
Voir plus
Afficher les consommations énergétiques
Favoris
Exporter
Appeler
Contacter
Signaler cette annonce










