Conseil en immobilier d'entreprise, Cushman & Wakefield est un acteur incontournable au rayonnement international. Cushman & Wakefield offre des solutions dans toutes les étapes que comporte un p ...
En savoir plus



4 844 m²
HT HC
Location activité/entrepôt - 4844 m²
Ayguemorte-les-Graves (33640)
Dernière mise à jour : Il y a 4 jours
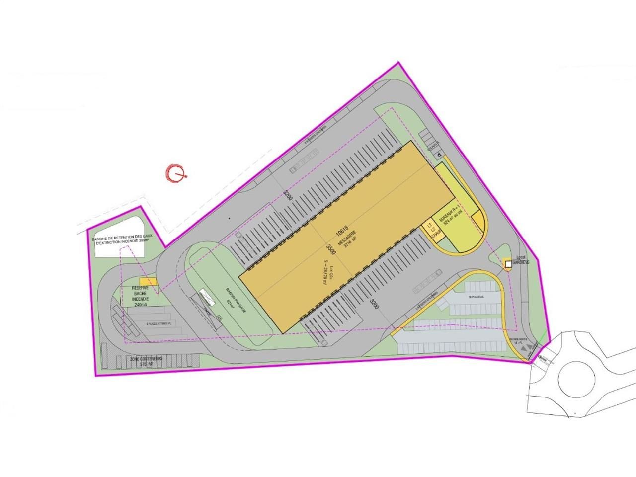
Messagerie
CW vous propose une opportunité exceptionnelle dans la zone d'activités d'Ayguesvives, à Ayguemorte les Graves : un entrepôt de 4 844 m² non divisibles, idéalement situé pour répondre aux besoins logistiques de votre entreprise.
Doté d'une hauteur sous plafond généreuse, de quais de chargement et de déchargement, ainsi que d'une grande surface de stockage, cet entrepôt offre un espace de travail fonctionnel et adapté à vos activités. Sa localisation stratégique, à proximité des grands axes routiers et des infrastructures de transport, en fait un emplacement de choix pour votre développement commercial.
Ne manquez pas cette occasion unique de louer un espace de qualité, proposé par CW, votre partenaire immobilier d'entreprises. Contactez-nous dès maintenant pour plus d'informations et pour organiser une visite.
Régime Fiscal : T.V.A.
Dépôt de garantie : 3 mois de loyer HT/HC
Paiement Loyer : Trimestriel
Honoraires : à la charge du preneur
Information sur le Bail :
2 projets possibles de messagerie : nous consulter Projet 1 : 4 844 m² Projet 2 : 5 308 m²
Prestations :
Accessibilité:
Accès routier En façade de l'A62
SNCF Saint-Médard-d'Eyrans à 5 min (15 trains/jour)
Bus Ligne 502 à 15 min environ à pied
Aéroport Bordeaux Mérignac à 18 min environ (25 km)
Les informations sur les risques auxquels ce bien est exposé sont disponibles sur le site Géorisques : www.georisques.gouv.fr
CW vous propose une opportunité exceptionnelle dans la zone d'activités d'Ayguesvives, à Ayguemorte les Graves : un entrepôt de 4 844 m² non divisibles, idéalement situé pour répondre aux besoins logistiques de votre entreprise.
Doté d'une hauteur sous plafond généreuse, de quais de chargement et de déchargement, ainsi que d'une grande surface de stockage, cet entrepôt offre un espace de travail fonctionnel et adapté à vos activités. Sa localisation stratégique, à proximité des grands axes routiers et des infrastructures de transport, en fait un emplacement de choix pour votre développement commercial.
Ne manquez pas cette occasion unique de louer un espace de qualité, proposé par CW, votre partenaire immobilier d'entreprises. Contactez-nous dès maintenant pour plus d'informations et pour organiser une visite.
| Étage | Type | Surfaces | Dispo | Loyer | Charges | Type de bailRév. annuelle |
|---|---|---|---|---|---|---|
| R+1 | Bureaux | 524 | 120 HT/HC/m²/an | 6-9-12 ansSur l'indice ILAT | ||
| RdC | Entrepôts | 3716 | 90 HT/HC/m²/an | 6-9-12 ansSur l'indice ILAT | ||
| RdC | Bureaux | 524 | 120 HT/HC/m²/an | 6-9-12 ansSur l'indice ILAT | ||
| RdC | Locaux techniques | 41 | 6-9-12 ansSur l'indice ILAT | |||
| RdC | Locaux sociaux | 30 | 6-9-12 ansSur l'indice ILAT | |||
| RdC | Autres | 9 | 6-9-12 ansSur l'indice ILAT |
Régime Fiscal : T.V.A.
Dépôt de garantie : 3 mois de loyer HT/HC
Paiement Loyer : Trimestriel
Honoraires : à la charge du preneur
Information sur le Bail :
2 projets possibles de messagerie : nous consulter Projet 1 : 4 844 m² Projet 2 : 5 308 m²
Prestations :
- Localisation exceptionnelle, en façade autoroutière de l'A62
- 1 Halle de 106 m x 35 m de large.
- 11 Quais PL, constitués d'une porte sectionnelle de quai isolée avec autodocks.
- 24 Quais VUL, constitué d'une porte sectionnelle de quai isolée et d'un niveleur
- 1 048 m² de bureaux et locaux sociaux, réparti sur deux niveaux.
- Parking VL de 62 places + parking PL de 7 places + parking VUL de 14 places
- Site sécurisé avec grillage maille rigide et portail coulissant
- Guérite avec barrières levantes d'entrée/sortie
- Station essence intégrée
- Zone de stockage type containers
- Terrain de 20 570 m²
- Structure halle métallique.
- Hauteur libre halle, 6 m sous poutre.
- Dallage béton avec durcisseur de surface 3T/m²
- Eclairage par Leds
- Prises de courant 10/16A (1 pour 500m²)
- Halle non chauffée
- Plateau de bureaux non cloisonné
- Revêtements des sols: carrelage grès cérame 60 x 60cm, moquette, faïence.
- Eclairage par dalles Led.
- Rafraichissement des bureaux par VRV avec condenseur en toiture
- Cloisonnement type placostyl des sanitaires et du réfectoire, équipés pour environ 60 personnes
- Bureaux en R+1 respectant la RT 2012
- Ascenseur 6 personnes
- Surface RDC : 4320 m²
Accessibilité:
Accès routier En façade de l'A62
SNCF Saint-Médard-d'Eyrans à 5 min (15 trains/jour)
Bus Ligne 502 à 15 min environ à pied
Aéroport Bordeaux Mérignac à 18 min environ (25 km)
Les informations sur les risques auxquels ce bien est exposé sont disponibles sur le site Géorisques : www.georisques.gouv.fr
Voir plus
Afficher les consommations énergétiques
Localisation et transport aux alentours
Favoris
Exporter
Appeler
Contacter
Signaler cette annonce



