Leader mondial des services dédiés à l'immobilier d'entreprise, Cushman & Wakefield accompagne ses clients dans la transformation de leurs modes de travail, de consommation et de vie. Nos 43 000 co ...
En savoir plus



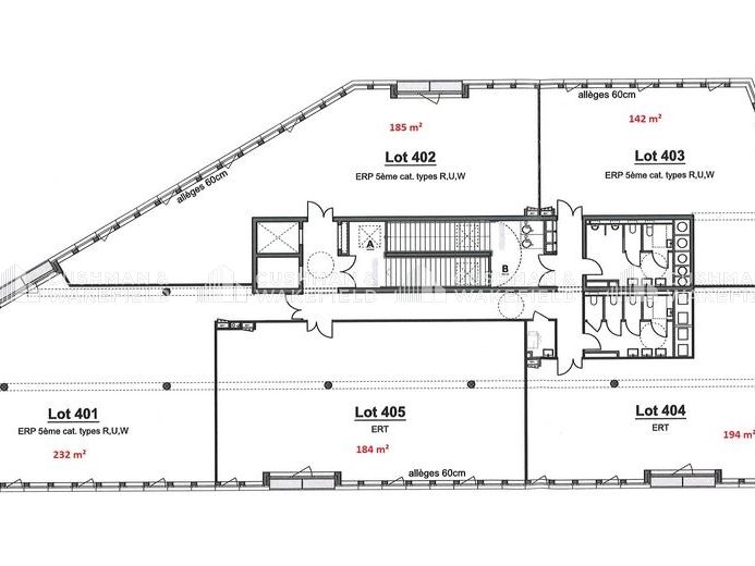
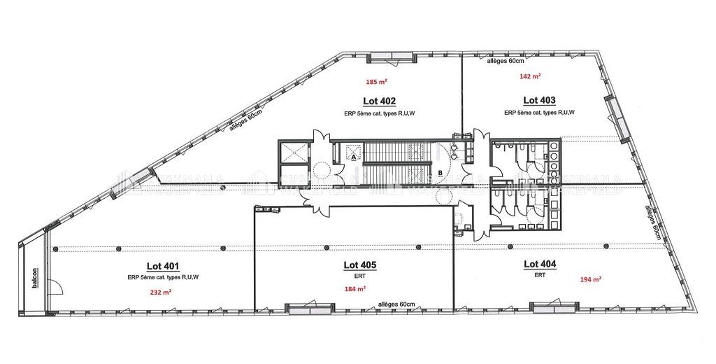
744 m² divisible dès 141 m²
HT HC
Location bureau - 744 m²
Schiltigheim (67300)
Dernière mise à jour : Il y a 7 mois
Immeuble de bureaux neuf au coeur de l''Espace Européen, proche de l'axe principal et des transports en commun. Immeuble lumineux avec un balcons, d'architecture dynamique. Surfaces ERP de 5ème catégorie. Cet ensemble tertiaire à construire, disponible à la location et à la vente, offrant de belles prestations et une accessibilité pour tous, sera idéalement situé au sein de L''Espace Européen de l''Entreprise (E3), qui constitue un des pôles majeurs de l'agglomération tant par sa taille que par sa situation géographique en bordure des grands réseaux routiers (M35). Considéré comme l'un des sites d'excellence de l'Eurométropole de Strasbourg, il bénéficie également d'un BHNS (Bus à Haut Niveau de Service), ligne G, garantissant un trajet de 14 minutes jusqu'à la gare de Strasbourg. Pour faire de cet espace un lieu de vie ou il fait bon vivre, des pistes cyclables et chemins piétons arborés et végétalisés ont été élaborés, un lac a été créé en son centre, recueillant les eaux de pluie et permettant une vie aquatique spontanée. De nombreux services sont également proposés aux utilisateurs : restauration, restauration rapide, hôtellerie, banque, professions médicales et paramédicales, activités de bien être, résidence étudiante, crèche d'entreprise, salle de sport, ... Le département Bureaux & Investissement de Cushman & Wakefield Strasbourg est à votre entière disposition pour toute visite de ces bureaux à louer à Schiltigheim. N'hésitez plus, contactez-nous ! Immeuble en R+4 de dernière génération, RT 2012. Pour chaque lot, s'intègrent des éléments de verdure, balcons ou terrasses Les bureaux sont livrés aménagés, non cloisonnés : - Sol : Moquettes en dalles, Murs mis en peinture, Faux-plafonds en dalles incorporant les luminaires - Plinthes compartimentées pour le passage des courants faibles et forts - Double vitrage avec stores ou BSO sur facades exposées - Sanitaires en parties communes - Chauffage/climatisation par système réversible DRV 3 tubes - Ascenseur dans l'immeuble desservant exclusivement le 4ème étage, bénéficiant d'une entrée indépendante du reste de l'immeuble Parkings pour les bureaux : . Lot 401 : 2 parkings sous-sol et 2 parkings extérieurs . Lot 402 : 1 parking sous-sol et 2 parkings extérieurs . Lots 403 et 405 : 1 parking sous-sol et 1 parking extérieur 80 places de stationnement vélos Bus : lignes 70 et G BHNS (bus à haut niveau de service reliant la gare TGV en 14 min) arrêt Vienne Accès routier : A4 sortie Schiltigheim
Voir plus
Afficher les consommations énergétiques
Surfaces divisibles : 4
| Surface | LoyerHT/HC/m²/an | Étage / Batiment |
| 186 m² | 160 € | 4 |
| 141 m² | 160 € | 4 |
| 233 m² | 160 € | 4 |
| 184 m² | 160 € | 4 |
Localisation et transport aux alentours
Favoris
Exporter
Appeler
Contacter
Signaler cette annonce










