Présent depuis plus de 30 ans à Orléans, l''agence dispose de toute l''expérience nécessaire pour vous aider à mener à bien votre projet immobilier sur la métropole. Son équipe dynamique, composée ...
En savoir plus

Location bureau - 400 m²
BNP PARIBAS REAL ESTATE ORLEANS vous propose des locaux à la location selon votre cahier des charges dans un nouveau programme neuf.
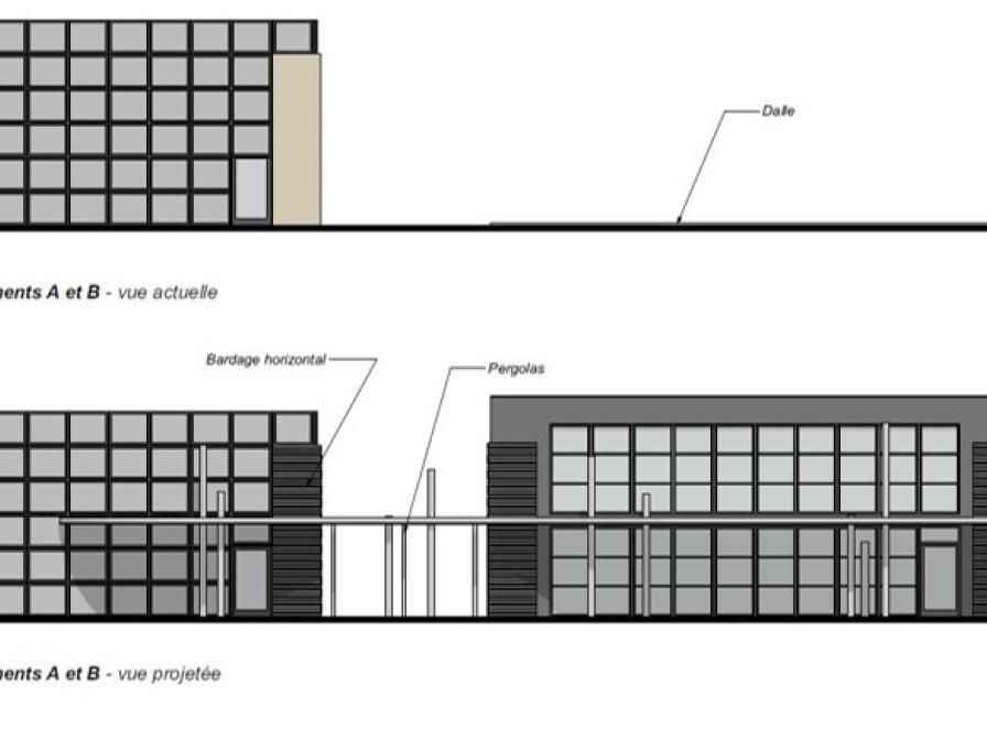
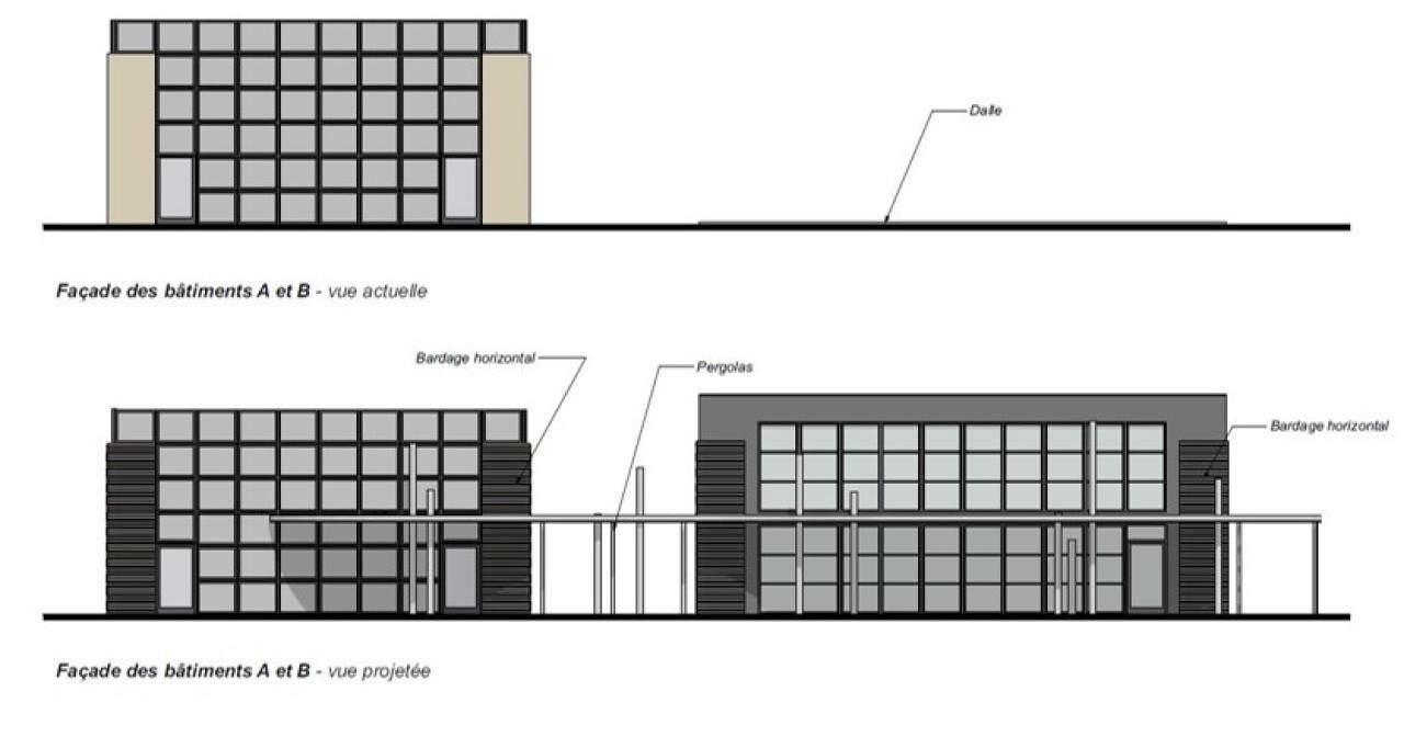
Immeuble de bureaux à construire selon le cahier des charges du preneur.
Ensemble de bureaux indépendants, en programme neuf sur une emprise foncière de 5 060 m². Le terrain dispose de 70 places de stationnement. Chaque immeuble sera construit sur deux niveaux et est aménageable selon votre cahier des charges. Il sera adapté aux activités ERP / accueil PMR et répondra aux dernières normes énergétiques et environnementales.
Les surfaces peuvent aller de 200 à 600 m².
N'hésitez pas à nous contacter. Nous pourrons étudier ensemble votre cahier des charges.
Cette solution immobilières représente une occasion unique pour les entreprises souhaitant allier localisation stratégique, confort moderne et btiment sur mesure.
Contactez-nous pour concevoir ensemble un projet immobilier qui répond à vos ambitions.
PC déposé.
Livraison 12 mois après accord.
Les conditions financières seront définies selon le cahier des charges du preneur. Disponibilité: 12 mois après accord
Honoraires: Nous consulter. à la signature du bail
| Fiche technique du bien | |
|---|---|
| Bus | arrêt bus 300 m |
| Accès Pers. Mobilité Réduite | de plain pied |
| Etat de l'immeuble | Neuf |
| Parking(s) | nombreux parkings extérieurs |
| Immeuble indépendant | Oui |
| Climatisation | Oui |
| Accueil | Oui |
| Environnement de proximité | tertiaire et activités |
| Hall d'accueil | Oui |
| Câblage informatique | Oui |
| Aménagement des bureaux | Espaces Ouverts |
| Bureau(x) cloisonné(s) | selon cahier des charges |
| Faux plafond | Oui |
| Eclairage Bureaux | Luminaires encastrés lead |
| Sol bureaux | Moquette/Carrelage |
| Plinthes techniq.périphériques | Oui |
| Sanitaire(s) | Privatif(s) deux doubles |










