Arthur Loyd est implantée depuis 1986 à Orléans, soit 35 ans de présence au quotidien sur le terrain et auprès des acteurs économiques du Loiret.Nous accompagnons les porteurs de projet, quelles qu ...
En savoir plus

245 m²
HT HC
Location bureau - 245 m²
Saran (45770)
Dernière mise à jour : Hier
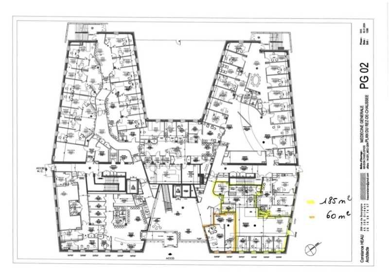
Locaux professionnels d'environ 185 m2 - SARAN PORTES DU LOIRET
Au nord d'Orléans, au sein de la ZA des Portes du Loiret à SARAN, Arthur Loyd propose à des professionnels de santé (exclusivement) un plateau d'environ 185 m2 (QPPC incluse)situé au rez-de-chaussée. Cette offre est composée d'un accueil, d'une salle d'attente, de 5 boxes avec points d'eau, d'un grand espace central, d'une réserve, d'une salle détente.
Sanitaires PMR dans les communs et possibilité d'un sanitaire privatif.
Parking commun pour la patientèle et parking privatif pour professionnels de santé selon les besoins.
Possibilité d'extension si prise à bail rapide de locaux attenants d'environ 60 m2 (QPPC) aménagés en 2 bureaux.
Régime Fiscal : T.V.A.
Dépôt de garantie : 1 trimestre de loyer
Honoraires : 15% HT du loyer annuel HT à la charge du preneur
Information sur le Bail :
Provision pour charges : 6 600 euros HT par an hors taxe foncière. Les charges comprennent l'entretien, le gardiennage des parties communes et l'accès au parking.
Prestations :
Accessibilité:
Transports en commun J. Auriol (Bus 1)
Autoroute A10 / A71 : échangeur autoroutier
RD / RN Tangentielle RD 2060
Les informations sur les risques auxquels ce bien est exposé sont disponibles sur le site Géorisques : www.georisques.gouv.fr
Au nord d'Orléans, au sein de la ZA des Portes du Loiret à SARAN, Arthur Loyd propose à des professionnels de santé (exclusivement) un plateau d'environ 185 m2 (QPPC incluse)situé au rez-de-chaussée. Cette offre est composée d'un accueil, d'une salle d'attente, de 5 boxes avec points d'eau, d'un grand espace central, d'une réserve, d'une salle détente.
Sanitaires PMR dans les communs et possibilité d'un sanitaire privatif.
Parking commun pour la patientèle et parking privatif pour professionnels de santé selon les besoins.
Possibilité d'extension si prise à bail rapide de locaux attenants d'environ 60 m2 (QPPC) aménagés en 2 bureaux.
| Étage | Type | Surfaces | Dispo | Loyer | Charges | Type de bailRév. annuelle |
|---|---|---|---|---|---|---|
| RDC D | Bureaux | 185 | Immédiate | 187,46 HT-HC / m2 / an | Commercial 6/9 ansILAT Indice des Loyers des Activités Tertiaires | |
| RDC D | Bureaux | 60 | Nous consulter | 187,5 HT-HC / m2 / an | Commercial 6/9 ansILAT Indice des Loyers des Activités Tertiaires |
Régime Fiscal : T.V.A.
Dépôt de garantie : 1 trimestre de loyer
Honoraires : 15% HT du loyer annuel HT à la charge du preneur
Information sur le Bail :
Provision pour charges : 6 600 euros HT par an hors taxe foncière. Les charges comprennent l'entretien, le gardiennage des parties communes et l'accès au parking.
Prestations :
- Locaux aménagés et climatisés
- Un accès privatif et accessible depuis l'extérieur
Accessibilité:
Transports en commun J. Auriol (Bus 1)
Autoroute A10 / A71 : échangeur autoroutier
RD / RN Tangentielle RD 2060
Les informations sur les risques auxquels ce bien est exposé sont disponibles sur le site Géorisques : www.georisques.gouv.fr
Voir plus
Afficher les consommations énergétiques
Localisation et transport aux alentours
Favoris
Exporter
Appeler
Contacter
Signaler cette annonce
