Depuis 2011, FIKA Toulouse accompagne ses clients dans le cadre de leurs cessions et leurs acquisitions immobilières au sein de la métropole toulousaine pour les actifs suivants : bureaux, murs com ...
En savoir plus

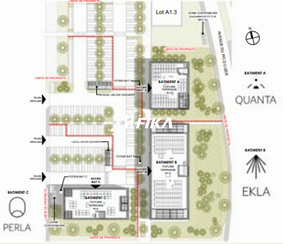
Location bureau - 1650 m²
Nous vous proposons à la location 1650m² de Bureaux à Muret, au Sud-ouest de Toulouse (31600).
Idéalement situé au sein de la ZAC Porte des Pyrénées, entre ville et campagne, à l'entrée sud de la ville, AUREA offre un cadre de vie tourné vers la nature, et bénéficie d'un environnement agréable : accès autoroute aisé, pistes cyclables, bornes pour vélo électriques, espaces partagés et transports en commun.
Le site bénéficie d'une excellente accessibilité avec un accès direct à l'autoroute A64 et à seulement 3 Km de la gare de Muret.
Au sein de se programme le Bâtiment EKLA (b) est constitué de trois plateaux d'environs 550m² chacun. La commercialisation porte sur 2 niveaux (le R+1 étant sous option):
- Le rez de chaussé de 565m² comprend quatre plateaux modulables de 125 à 155m², chacun avec accès indépendant.
- Le dernier étage de 500m² propose quatre plateaux modulables de 95 à 125m², dotés chacun d'une spacieuse terrasse privative d'environ 30m².
Disponibilité : T1 2026 (brut) T3 2026 (si aménagement)
L'ensemble bénéficie d'un parking mutualisé.
Loyer annuel : 267300 € HTHC
Charges annuelles et Taxe Foncière : a définir
Honoraires : 15% HT du loyer annuel HT-HC à la charge du preneur
Les informations sur les risques auxquels ce bien est exposé sont disponibles sur le site Géorisques : www.georisques.gouv.fr
Sortie A64
- Bus Muret Salle Horizon (209m) - supérieur à Lignes : 302
- Bus Bellefontaine (289m) - supérieur à Lignes : 302
- Bus Muret Bellefontaine (381m) - supérieur à Lignes : 380
Disponibilité : T1 2026
Loyer annuel : 267300 €
Type de bail : Commercial
Dépôt de garantie : 3 mois
Honoraires à la charge du preneur : 15 % HT
| etage | surface | loyer annuel hthc | charges annuelles | tf |
| rdc | 565 m² divisibles | 91 530 € | à définir | à définir |
| r+1 | 500 m² | sous option | ||
| r+2 | 500 m² divisibles | 81 000 € | à définir | à définir |
