L''agence Marseille/Aix-en-Provence rassemble une équipe dynamique et polyvalente située à Marseille ainsi qu’à Aix. Nos conseillers sont expérimentés et ont une connaissance approfondie du marché ...
En savoir plus





Location bureau - 2208 m²
Nous vous proposons à la location des bureaux situés dans la ZAC du pôle technologique de Chteau Gombert.
L'immeuble LE SOLIS bénéficie d'un environnement de qualité : site clos et sécurisé, espaces verts, nombreux parkings extérieurs (80 places) certains ombragés.
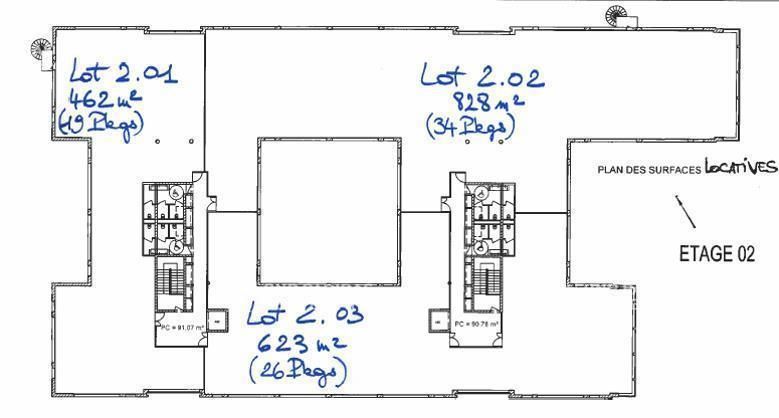
La surface proposée représente la totalité du 2ème étage soit 1 478 m² environ, ainsi que le rez-de-chaussée de 730 m².
Le plateau du deuxième étage est livré rénové non cloisonné et offrira une grande flexibilité d'aménagement.
LE SOLIS bénéficie d'une bonne accessibilité routière avec l'A507 à proximité immédiate et d'une desserte métro (station "LA ROSE " à 900 m)
Accessibilité :
Métro lignes 1 : LA ROSE à 10 minutes à pied
Accès routier : A50 et A7 via A507
Services :
Site clos, sécurisé et arboré
Bon ratio parkings (1/24 m²)
Grand plateau divisibles en 4 lots
Très lumineux
Rénovation des espaces bureaux
Locaux ERPableS
Honoraires: 15% HT du loyer HT/HC. à la signature du bail
| Fiche technique du bien | |
|---|---|
| Métro | M1 LA ROSE à 900 mètres |
| Bus | Lignes 1, 11, S13 |
| Desserte routière | Proximité immédiate de l'A507 |
| Etat des locaux | Rénové |
| Climatisation | Réversible |
| Sécurité | Vidéo-surveillance |
| Ascenseur(s) | 1 |
| Faux plafond | Oui |
| Eclairage Bureaux | Luminaires encastrés |
| Sol bureaux | Moquette |
| Autre élément bureau | Contrôle d'accès digicode et badges |
| Autre élément bureau | 2 pompes à chaleur à eau réversible |
Surfaces divisibles : 4
| Surface | LoyerHT/HC/m²/an | Étage / Batiment | Infos complémentaires |
| 184 m² | N.C | RDC | RDC - G01 |
| 332 m² | N.C | RDC | RDC - G02 + D01 |
| 214 m² | N.C | RDC | RDC - D02 |
| 1478 m² | N.C | R+2 | Sous-option R+2 |
