L’agence CBRE Lyon conseille et accompagne les chefs d’entreprise dans leurs projets immobiliers quels que soient leur taille et leur secteur d’activité. Spécialistes de la transaction de bureaux, ...
En savoir plus

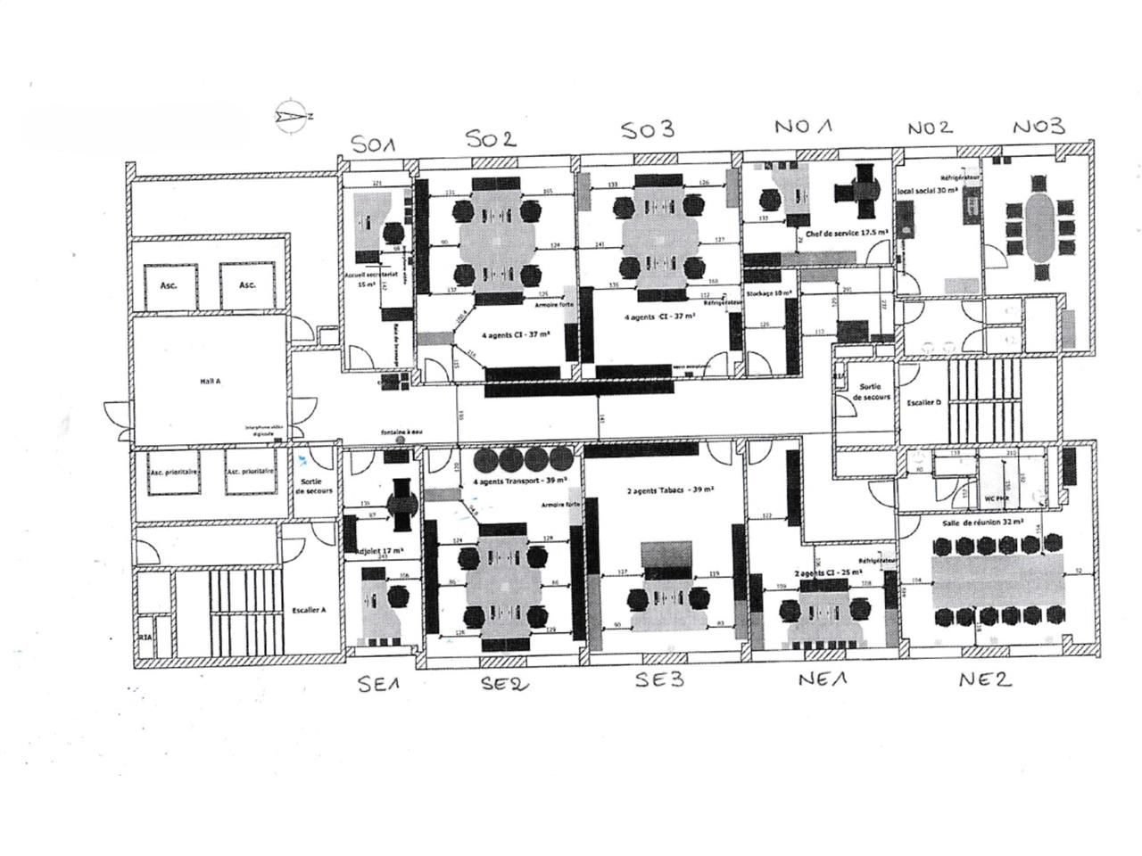
596 m² divisible dès 62 m²
HT HC
Location bureau - 596 m²
Lyon 3 (69003)
Dernière mise à jour : Il y a 30 jours
Bureaux proposés à la location au sein d'un immeuble emblématique au coeur de la Part-Dieu, le Britannia. Nombreux parking en sous-sol.
La Part- Dieu est le premier quartier d'affaires de Lyon et l'un des plus importants de France. Elle abrite un grand nombre de bureaux, attirant des entreprises de divers secteurs (banque, assurance, services, etc.).De nombreuses entreprises nationales et internationales y ont installé leur siège ou des bureaux importants, ce qui génère de l'emploi et de l'activité économique. De nouveaux projets immobiliers de bureaux sont constamment en développement, témoignant de la confiance des entreprises et des investisseurs dans le potentiel économique du quartier.
Impôt Foncier : 28 €/m²/an
Régime Fiscal : T.V.A.
Dépôt de garantie : 3 mois de loyer HT/HC
Paiement Loyer : trimestriel
Honoraires : 15% HT du loyer annuel HT/HC à la charge du preneur
Information sur le Bail :
Loyer parking en sous-sol: 1 200 euros/unité/an TEOM incluse dans la taxe foncière Le Britannia étant un IGH, tous travaux doivent être soumis à une commission de sécurité pour accord.
Prestations :
Accessibilité:
Metro Gare Part-Dieu - Vivier Merle (E)
Tramway Part-Dieu - Servient (Tramways)
Transilien Lyon-Part-Dieu (SNCF), Gare Part-Dieu - Vivier Merle (SNCF)
Les informations sur les risques auxquels ce bien est exposé sont disponibles sur le site Géorisques : www.georisques.gouv.fr
La Part- Dieu est le premier quartier d'affaires de Lyon et l'un des plus importants de France. Elle abrite un grand nombre de bureaux, attirant des entreprises de divers secteurs (banque, assurance, services, etc.).De nombreuses entreprises nationales et internationales y ont installé leur siège ou des bureaux importants, ce qui génère de l'emploi et de l'activité économique. De nouveaux projets immobiliers de bureaux sont constamment en développement, témoignant de la confiance des entreprises et des investisseurs dans le potentiel économique du quartier.
| Étage | Type | Surfaces | Dispo | Loyer | Charges | Type de bailRév. annuelle |
|---|---|---|---|---|---|---|
| 4 | Bureaux | 74 | Immédiate | 150 m²/an HT HC | 58 HT/m²/an | 3-6-9 ansIndice ILAT |
| 5 | Bureaux | 86,33 | Avril 2026 | 150 m²/an HT HC | 58 HT/m²/an | 3-6-9 ansIndice ILAT |
| 7 | Bureaux | 62 | Immédiate | 150 m²/an HT HC | 58 HT/m²/an | 3-6-9 ansIndice ILAT |
| 9 | Bureaux | 374 | Immédiate | 150 m²/an HT HC | 58 HT/m²/an | 3-6-9 ansIndice ILAT |
Impôt Foncier : 28 €/m²/an
Régime Fiscal : T.V.A.
Dépôt de garantie : 3 mois de loyer HT/HC
Paiement Loyer : trimestriel
Honoraires : 15% HT du loyer annuel HT/HC à la charge du preneur
Information sur le Bail :
Loyer parking en sous-sol: 1 200 euros/unité/an TEOM incluse dans la taxe foncière Le Britannia étant un IGH, tous travaux doivent être soumis à une commission de sécurité pour accord.
Prestations :
- Climatisation
- Cloisonnement
- Gardien avec PC sécurité
- Contrôle d'accès
- Chauffage
- Câblage
- Faux plafond
- RIA
- R+4: rénovation à l'étude
- Le 62 m² ne peut pas être loué seul (pas de sanitaires). Il peut servir de complément en tant que salle de réunion.
- 9 parkings en sous-sol (1 200 euros HT/u/an)
Accessibilité:
Metro Gare Part-Dieu - Vivier Merle (E)
Tramway Part-Dieu - Servient (Tramways)
Transilien Lyon-Part-Dieu (SNCF), Gare Part-Dieu - Vivier Merle (SNCF)
Les informations sur les risques auxquels ce bien est exposé sont disponibles sur le site Géorisques : www.georisques.gouv.fr
Voir plus
Afficher les consommations énergétiques
Favoris
Exporter
Appeler
Contacter
Signaler cette annonce
