L’agence CBRE Lyon conseille et accompagne les chefs d’entreprise dans leurs projets immobiliers quels que soient leur taille et leur secteur d’activité. Spécialistes de la transaction de bureaux, ...
En savoir plus

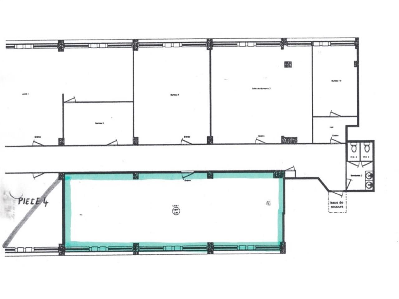
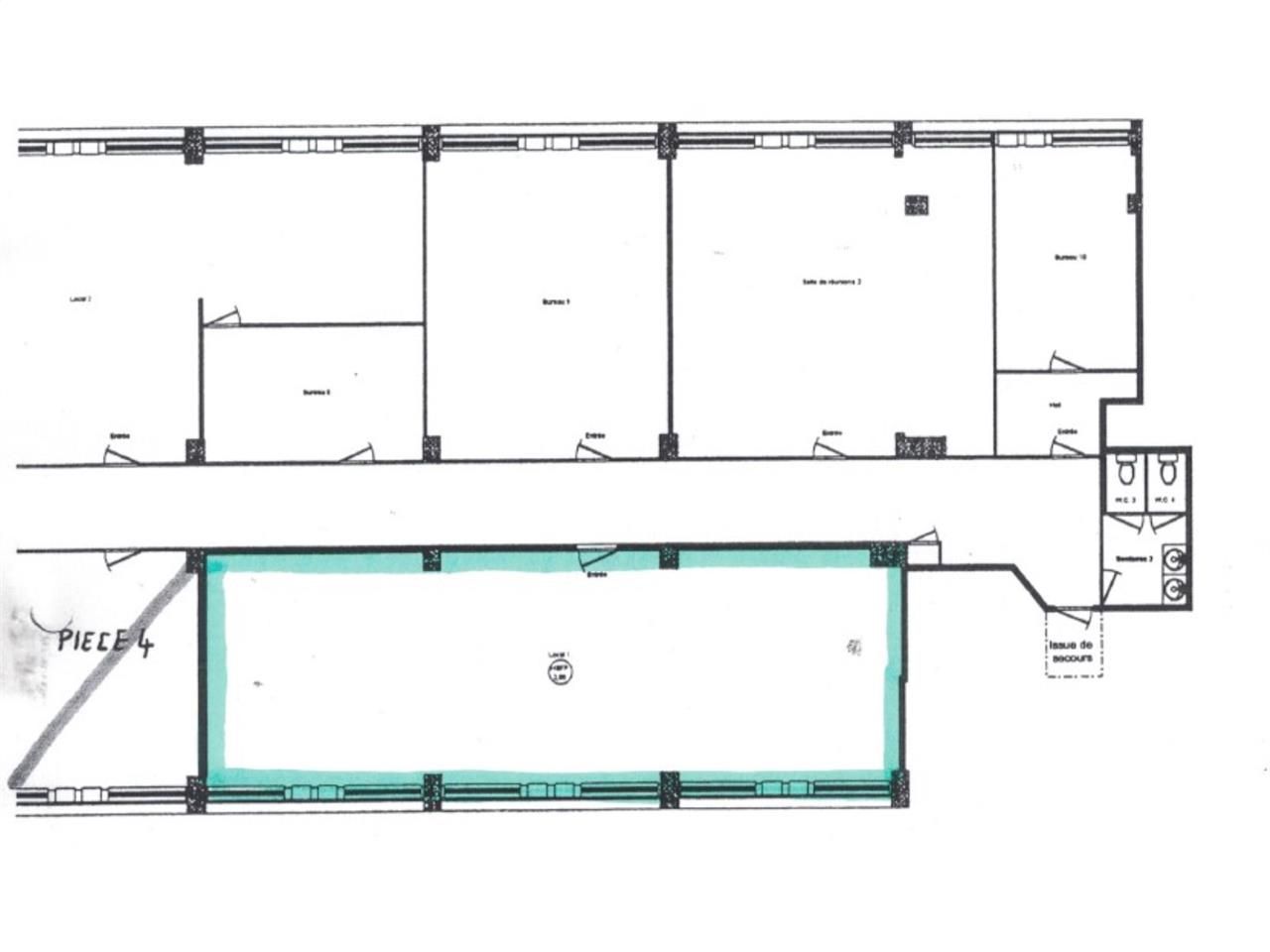
1 095 m² divisible dès 103 m²
HT HC
Location bureau - 1095 m²
Lyon 3 (69003)
Dernière mise à jour : Il y a 5 mois
Immeuble IGH reconnu sur la Part-Dieu, au pied du centre commercial et à proximité immédiate du pôle multimodal.
Le secteur de Lyon Part-Dieu est l'une des plus importantes zones d'affaires de l'agglomération lyonnaise et la seconde en France, avec ses 2 200 établissements implantés et ses 55 000 emplois. L'implantation de nombreux sièges sociaux nationaux et internationaux positionne le quartier comme site majeur de décisions stratégiques. Le secteur bénéficie d'une desserte idéale grâce à son pôle multimodal. De plus le quartier s'inscrit dans une démarche de rénovation urbaine de par la restructuration de sa gare et son centre commercial.
Impôt Foncier : 27 €/HT/m²/an
Régime Fiscal : T.V.A.
Dépôt de garantie : 3 mois de loyer HT/HC
Paiement Loyer : trimestriel
Honoraires : 15% HT du loyer annuel HT/HC à la charge du preneur
Information sur le Bail :
Charges comprennent les charges de copropriété ainsi que la quote-part des frais d'électricité et de nettoyage du couloir et des sanitaires privés, à la seule exception des charges relevant strictement de l'article 606 du Code Civil Loyer parking: 1200 euros HT/unité (+ avances sur charges 220 euros HT + foncier 120 euros HT) Remise de loyer 50% lors des travaux sur l'allée concernée
Prestations :
Accessibilité:
Metro Gare Part-Dieu - Vivier Merle (E)
Tramway Part-Dieu - Servient (Tramways)
Transilien Lyon-Part-Dieu (SNCF), Gare Part-Dieu - Vivier Merle (SNCF)
Les informations sur les risques auxquels ce bien est exposé sont disponibles sur le site Géorisques : www.georisques.gouv.fr
Le secteur de Lyon Part-Dieu est l'une des plus importantes zones d'affaires de l'agglomération lyonnaise et la seconde en France, avec ses 2 200 établissements implantés et ses 55 000 emplois. L'implantation de nombreux sièges sociaux nationaux et internationaux positionne le quartier comme site majeur de décisions stratégiques. Le secteur bénéficie d'une desserte idéale grâce à son pôle multimodal. De plus le quartier s'inscrit dans une démarche de rénovation urbaine de par la restructuration de sa gare et son centre commercial.
| Étage | Type | Surfaces | Dispo | Loyer | Charges | Type de bailRév. annuelle |
|---|---|---|---|---|---|---|
| 3 | Bureaux | 267 | Immédiate | 150 m²/an HT HC | 60 HT/m²/an | 3-6-9 ansIndice ILAT |
| 3 | Bureaux | 235 | Mars 2026 | 150 m²/an HT HC | 60 HT/m²/an | 3-6-9 ansIndice ILAT |
| 3 | Bureaux | 103 | Immédiate | 150 m²/an HT HC | 60 HT/m²/an | 3-6-9 ansIndice ILAT |
| 5 | Bureaux | 104 | Immédiate | 150 m²/an HT HC | 65 HT/m²/an | 3-6-9 ansIndice ILAT |
| 11 | Bureaux | 386 | Immédiate | 125 m²/an HT HC | 60 HT/m²/an | 3-6-9 ansIndice ILAT |
Impôt Foncier : 27 €/HT/m²/an
Régime Fiscal : T.V.A.
Dépôt de garantie : 3 mois de loyer HT/HC
Paiement Loyer : trimestriel
Honoraires : 15% HT du loyer annuel HT/HC à la charge du preneur
Information sur le Bail :
Charges comprennent les charges de copropriété ainsi que la quote-part des frais d'électricité et de nettoyage du couloir et des sanitaires privés, à la seule exception des charges relevant strictement de l'article 606 du Code Civil Loyer parking: 1200 euros HT/unité (+ avances sur charges 220 euros HT + foncier 120 euros HT) Remise de loyer 50% lors des travaux sur l'allée concernée
Prestations :
- ERP : 1ere categ (Tout)
- Bureaux cloisonnés
- Faux plafond avec luminaires encastrés
- Chauffage et rafraichissements d'air par ventilo convecteurs en allèges
- Moquette
- Plinthes périphériques courant fort et faible
- Stores intérieurs
- Sanitaires en parties privatives
- Accès PMR
- Ascenseur
- Fibre optique sur le site
- Gardien 24h/24 et 7j/7
- Dans le cadre d'un immeuble IGH, les travaux sont soumis à la commission de sécurité.
- 25parkings
Accessibilité:
Metro Gare Part-Dieu - Vivier Merle (E)
Tramway Part-Dieu - Servient (Tramways)
Transilien Lyon-Part-Dieu (SNCF), Gare Part-Dieu - Vivier Merle (SNCF)
Les informations sur les risques auxquels ce bien est exposé sont disponibles sur le site Géorisques : www.georisques.gouv.fr
6 Parkings int.
Voir plus
Afficher les consommations énergétiques
Favoris
Exporter
Appeler
Contacter
Signaler cette annonce










