Conseil en immobilier d'entreprise, Cushman & Wakefield est un acteur incontournable au rayonnement international. Cushman & Wakefield offre des solutions dans toutes les étapes que comporte un p ...
En savoir plus



3 045 m² divisible dès 543 m²
HT HC
START - Location bureau - 3045 m²
Guyancourt (78280)
Dernière mise à jour : Il y a 6 mois
A 400 m de la gare de SQY
Immeuble START
À Guyancourt, 15 avenue du Centre, à 5 minutes à pied de la gare de Saint-Quentin-en-Yvelines (RER C, lignes N et U) et à 10 minutes du centre commercial Espace SQY, bureaux à louer de 543 m² à 3 045 m² au sein de l'immeuble Le Start.
Restructuré en profondeur par Valode & Pistre en 2013, cet ensemble tertiaire d'environ 26 000 m² est labellisé BBC, HQE et certifié BREEAM Very Good. Plateaux rénovés, livrés en open space, trame de 1,20 m, profondeur de 16 à 18 m, faux plancher technique et ventilo-convecteurs 2 tubes/2 fils.
Services intégrés : hôtesses d'accueil, cafétéria, RIE Sodexo, terrasses et jardins privatifs, PC sécurité. Excellent ratio de parkings en sous-sol. Accès direct A86, A12, A13, N12 et D10.
Loyer 205 euros HT/HC/m²/an.
Une adresse stratégique pour directions recherchant des bureaux à la location performants au coeur de SQY.
Régime Fiscal : T.V.A.
Dépôt de garantie : 3 mois de loyer HT/HC
Paiement Loyer : Trimestriel
Honoraires : 15 % HT du loyer annuel HT/HC à la charge du preneur.
Information sur le Bail :
Fiscalité : 43 euros/m²/an (taxe foncière, taxe sur les bureaux et autres) Prime assurance : 1,2 euros/m²/an HT
Prestations :
Accessibilité:
RER Gare de Saint Quentin en Yvelines (RER C)
SNCF Gare Saint Quentin en Yvelines (Lignes N et U)
Accès routier Accès direct A86-A12-A13 vers Paris
Accès routier N12-D10
Les informations sur les risques auxquels ce bien est exposé sont disponibles sur le site Géorisques : www.georisques.gouv.fr
Immeuble START
À Guyancourt, 15 avenue du Centre, à 5 minutes à pied de la gare de Saint-Quentin-en-Yvelines (RER C, lignes N et U) et à 10 minutes du centre commercial Espace SQY, bureaux à louer de 543 m² à 3 045 m² au sein de l'immeuble Le Start.
Restructuré en profondeur par Valode & Pistre en 2013, cet ensemble tertiaire d'environ 26 000 m² est labellisé BBC, HQE et certifié BREEAM Very Good. Plateaux rénovés, livrés en open space, trame de 1,20 m, profondeur de 16 à 18 m, faux plancher technique et ventilo-convecteurs 2 tubes/2 fils.
Services intégrés : hôtesses d'accueil, cafétéria, RIE Sodexo, terrasses et jardins privatifs, PC sécurité. Excellent ratio de parkings en sous-sol. Accès direct A86, A12, A13, N12 et D10.
Loyer 205 euros HT/HC/m²/an.
Une adresse stratégique pour directions recherchant des bureaux à la location performants au coeur de SQY.
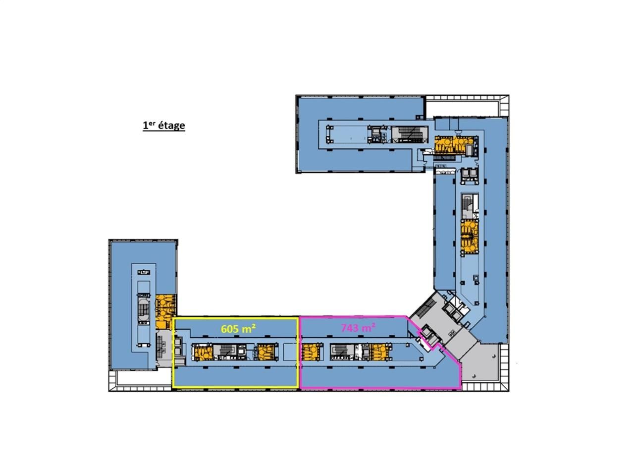
| Étage | Type | Surfaces | Dispo | Loyer | Charges | Type de bailRév. annuelle |
|---|---|---|---|---|---|---|
| 1 | Bureaux | 743 | 205 HT/HC/m²/an | 60 HT/m²/an | 3-6-9 ansSur l'indice ILAT | |
| 2 | Bureaux | 610 | 205 HT/HC/m²/an | 60 HT/m²/an | 3-6-9 ansSur l'indice ILAT | |
| 1 | Bureaux | 605 | 205 HT/HC/m²/an | 60 HT/m²/an | 3-6-9 ansSur l'indice ILAT | |
| 5 | Bureaux | 544 | 205 HT/HC/m²/an | 60 HT/m²/an | 3-6-9 ansSur l'indice ILAT | |
| 4 | Bureaux | 543 | 205 HT/HC/m²/an | 60 HT/m²/an | 3-6-9 ansSur l'indice ILAT |
Régime Fiscal : T.V.A.
Dépôt de garantie : 3 mois de loyer HT/HC
Paiement Loyer : Trimestriel
Honoraires : 15 % HT du loyer annuel HT/HC à la charge du preneur.
Information sur le Bail :
Fiscalité : 43 euros/m²/an (taxe foncière, taxe sur les bureaux et autres) Prime assurance : 1,2 euros/m²/an HT
Prestations :
- Le Start a fait l'objet d'une restructuration lourde en 2013, signée Valode & Pistre
- Cet immeuble d'environ 26 000 m² utiles est labellisé BBC et HQE, et certifié BREEAM Very Good
- Le Start est idéalement situé, à 5 min à pied de gare de SQY et à 10 min à pied du centre commercial Espace SQY
- Services au sein de l'immeuble : hôtesses d'accueil, cafétéria, RIE (Sodexo), terrasses et jardins extérieurs privatifs, PC Sécurité
- Excellent ratio de parking en sous-sol
- Bureaux rénovés, livrés en open-space
- Trame : 1,20 m
- Profondeur plateaux : de 16 à 18 m
- Faux plancher technique 7 cm
- Ventilo-convecteur 2 tubes/2fils
Accessibilité:
RER Gare de Saint Quentin en Yvelines (RER C)
SNCF Gare Saint Quentin en Yvelines (Lignes N et U)
Accès routier Accès direct A86-A12-A13 vers Paris
Accès routier N12-D10
Les informations sur les risques auxquels ce bien est exposé sont disponibles sur le site Géorisques : www.georisques.gouv.fr
Voir plus
Afficher les consommations énergétiques
Localisation et transport aux alentours
Favoris
Exporter
Appeler
Contacter
Signaler cette annonce










