Conseil en immobilier d'entreprise, Cushman & Wakefield est un acteur incontournable au rayonnement international. Cushman & Wakefield offre des solutions dans toutes les étapes que comporte un p ...
En savoir plus



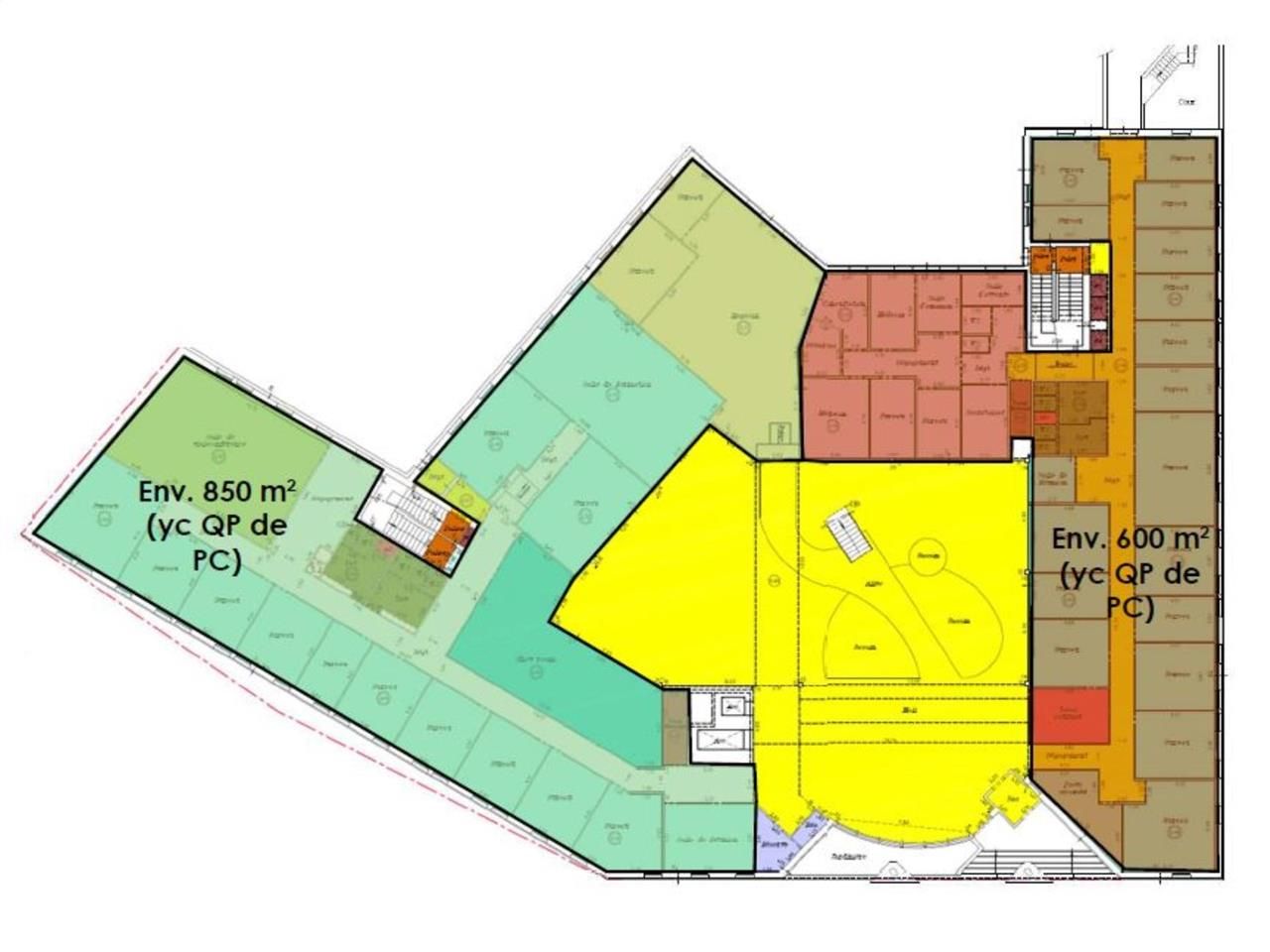
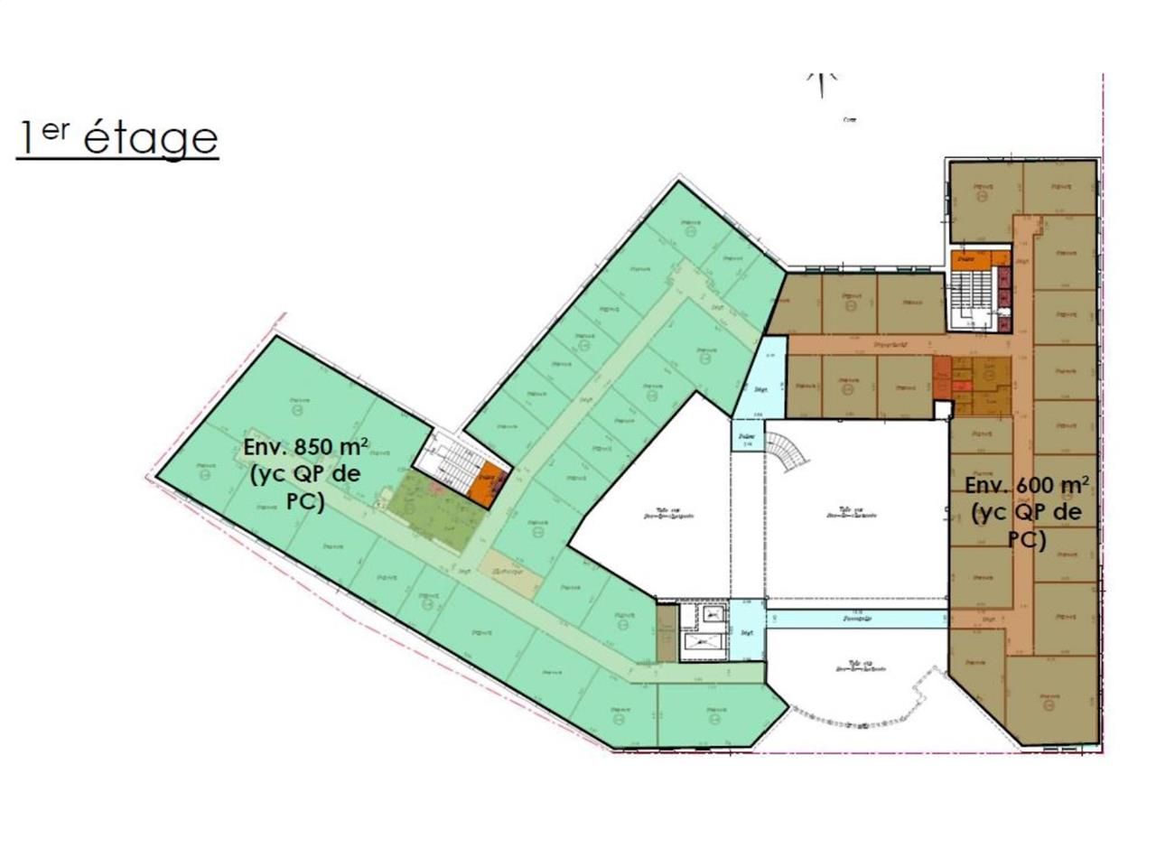
6 454 m² divisible dès 850 m²
HT HC
EQUINOXE I - Location bureau - 6454 m²
Guyancourt (78280)
Dernière mise à jour : Il y a 5 mois
EQUINOXE I
Immeuble EQUINOXE I
A louer, surface de bureaux à Guyancourt.
Nous proposons à la location un immeuble de bureaux indépendant, d'une surface totale de 6 454 m², divisible à partir de 850 m². Ce bâtiment en R+3 est idéalement situé à moins de 10 minutes à pied de la gare de Saint-Quentin-en-Yvelines, offrant une accessibilité optimale via le RER C, le Transilien N et U, ainsi que les axes routiers A12, N12, N10 et D10.
Les bureaux sont organisés en plateaux d'environ 1 500 m², divisibles et modulables selon les besoins des occupants. Le bâtiment dispose d'un monte-charge de 1 350 kg desservant tous les niveaux, d'un accès livraison via la Place des Frères Montgolfier et d'une terrasse arborée de 200 m². Les occupants bénéficieront également d'un espace de restauration interne et d'un local à vélos de 170 m². Le site offre 159 places de stationnement, dont 10 équipées de bornes de recharge pour véhicules électriques.
Les bureaux seront livrés rénovés et la réalisation de travaux supplémentaires pourra être envisagée sur demande.
Le bâtiment Equinoxe I présente de nombreux atouts, dont sa proximité avec les transports en commun et les axes routiers stratégiques, ses équipements modernes et ses espaces fonctionnels adaptés aux exigences des entreprises. Cet immeuble offre un environnement de travail agréable et efficace, parfaitement intégré dans le dynamisme économique de Saint-Quentin-en-Yvelines, deuxième pôle économique de l'ouest parisien.
Pour toute information complémentaire ou pour organiser une visite, n'hésitez pas à nous contacter.
Impôt Foncier : 20 €//m²/an
Régime Fiscal : T.V.A.
Honoraires : 15 % HT du loyer annuel HT/HC à la charge du preneur.
Taxe Bureau : 5,5 €/m²/an
Information sur le Bail :
TASS : 0,80 euros/m²/an HT Prime assurance : 1,35 euros/m²/an L'installation d'un RIE pourra être étudiée (loyer : 15 euros/m²/an HT HC)
Prestations :
Accessibilité:
RER St-Quentin en Yvelines (RER C)
SNCF St-Quentin en Yvelines (Transilien Ligne N et U, TER)
Bus Nombreuses lignes (+ de 30)
Accès routier A12
Accès routier N12 - N10 - D10
Les informations sur les risques auxquels ce bien est exposé sont disponibles sur le site Géorisques : www.georisques.gouv.fr
Immeuble EQUINOXE I
A louer, surface de bureaux à Guyancourt.
Nous proposons à la location un immeuble de bureaux indépendant, d'une surface totale de 6 454 m², divisible à partir de 850 m². Ce bâtiment en R+3 est idéalement situé à moins de 10 minutes à pied de la gare de Saint-Quentin-en-Yvelines, offrant une accessibilité optimale via le RER C, le Transilien N et U, ainsi que les axes routiers A12, N12, N10 et D10.
Les bureaux sont organisés en plateaux d'environ 1 500 m², divisibles et modulables selon les besoins des occupants. Le bâtiment dispose d'un monte-charge de 1 350 kg desservant tous les niveaux, d'un accès livraison via la Place des Frères Montgolfier et d'une terrasse arborée de 200 m². Les occupants bénéficieront également d'un espace de restauration interne et d'un local à vélos de 170 m². Le site offre 159 places de stationnement, dont 10 équipées de bornes de recharge pour véhicules électriques.
Les bureaux seront livrés rénovés et la réalisation de travaux supplémentaires pourra être envisagée sur demande.
Le bâtiment Equinoxe I présente de nombreux atouts, dont sa proximité avec les transports en commun et les axes routiers stratégiques, ses équipements modernes et ses espaces fonctionnels adaptés aux exigences des entreprises. Cet immeuble offre un environnement de travail agréable et efficace, parfaitement intégré dans le dynamisme économique de Saint-Quentin-en-Yvelines, deuxième pôle économique de l'ouest parisien.
Pour toute information complémentaire ou pour organiser une visite, n'hésitez pas à nous contacter.
| Étage | Type | Surfaces | Dispo | Loyer | Charges | Type de bailRév. annuelle |
|---|---|---|---|---|---|---|
| 3 | Bureaux | 1596 | 175 HT/HC/m²/an | 43 HT/m²/an | 3-6-9 ansSur l'indice ILAT | |
| 2 | Bureaux | 1596 | 175 HT/HC/m²/an | 43 HT/m²/an | 3-6-9 ansSur l'indice ILAT | |
| 1 | Bureaux | 1426 | 175 HT/HC/m²/an | 43 HT/m²/an | 3-6-9 ansSur l'indice ILAT | |
| RdC | Bureaux | 1836 | 175 HT/HC/m²/an | 43 HT/m²/an | 3-6-9 ansSur l'indice ILAT | |
| Etage -1 | Arch./Reser. | 694 | 70 HT/HC/m²/an | 3-6-9 ansSur l'indice ILAT | ||
| Etage -2 | Arch./Reser. | 760 | 70 HT/HC/m²/an | 3-6-9 ansSur l'indice ILAT | ||
| pkg Ext | Parkings | 450 HT/HC/U/an | 3-6-9 ansSur l'indice ILAT | |||
| SS | Parkings | 900 HT/HC/U/an | 3-6-9 ansSur l'indice ILAT |
Impôt Foncier : 20 €//m²/an
Régime Fiscal : T.V.A.
Honoraires : 15 % HT du loyer annuel HT/HC à la charge du preneur.
Taxe Bureau : 5,5 €/m²/an
Information sur le Bail :
TASS : 0,80 euros/m²/an HT Prime assurance : 1,35 euros/m²/an L'installation d'un RIE pourra être étudiée (loyer : 15 euros/m²/an HT HC)
Prestations :
- Equinoxe I est un bâtiment de bureaux indépendant, d'une surface totale de 6 454 m² en R+3, situé à moins de 10 minutes à pied de la gare de Saint-Quentin-en-Yvelines
- L'immeuble propose des plateaux d'environ 1 500 m² divisibles
- Parmi les équipements notables, on compte un monte-charge de 1 350 kg desservant tous les niveaux, un accès livraison via la Place des Frères Montgolfier, une terrasse arborée de 200 m², un espace de restauration interne, ainsi qu'un local à vélos de 170 m². L'immeuble dispose également de 159 places de parking, dont 10 équipées de bornes de recharge pour véhicules électriques.
- Divisible dès 425 m²
- Sera livré rénové
- Possibilité de réaliser des travaux "sur demande" avec un loyer adapté
- Immeuble indépendant
- Surface RDC : 1836 m²
Accessibilité:
RER St-Quentin en Yvelines (RER C)
SNCF St-Quentin en Yvelines (Transilien Ligne N et U, TER)
Bus Nombreuses lignes (+ de 30)
Accès routier A12
Accès routier N12 - N10 - D10
Les informations sur les risques auxquels ce bien est exposé sont disponibles sur le site Géorisques : www.georisques.gouv.fr
144 Parking(s) en sous-sol 15 Parking(s) extérieur(s)
Voir plus
Afficher les consommations énergétiques
Localisation et transport aux alentours
Favoris
Exporter
Appeler
Contacter
Signaler cette annonce










