MCarré Conseil est une agence spécialiste de l'immobilier d’entreprise du sud de l’Île-de-France (en Essonne et dans le sud de la Seine-et-Marne et du Val-De-Marne). Elle vous accompagne à chaque é ...
En savoir plus



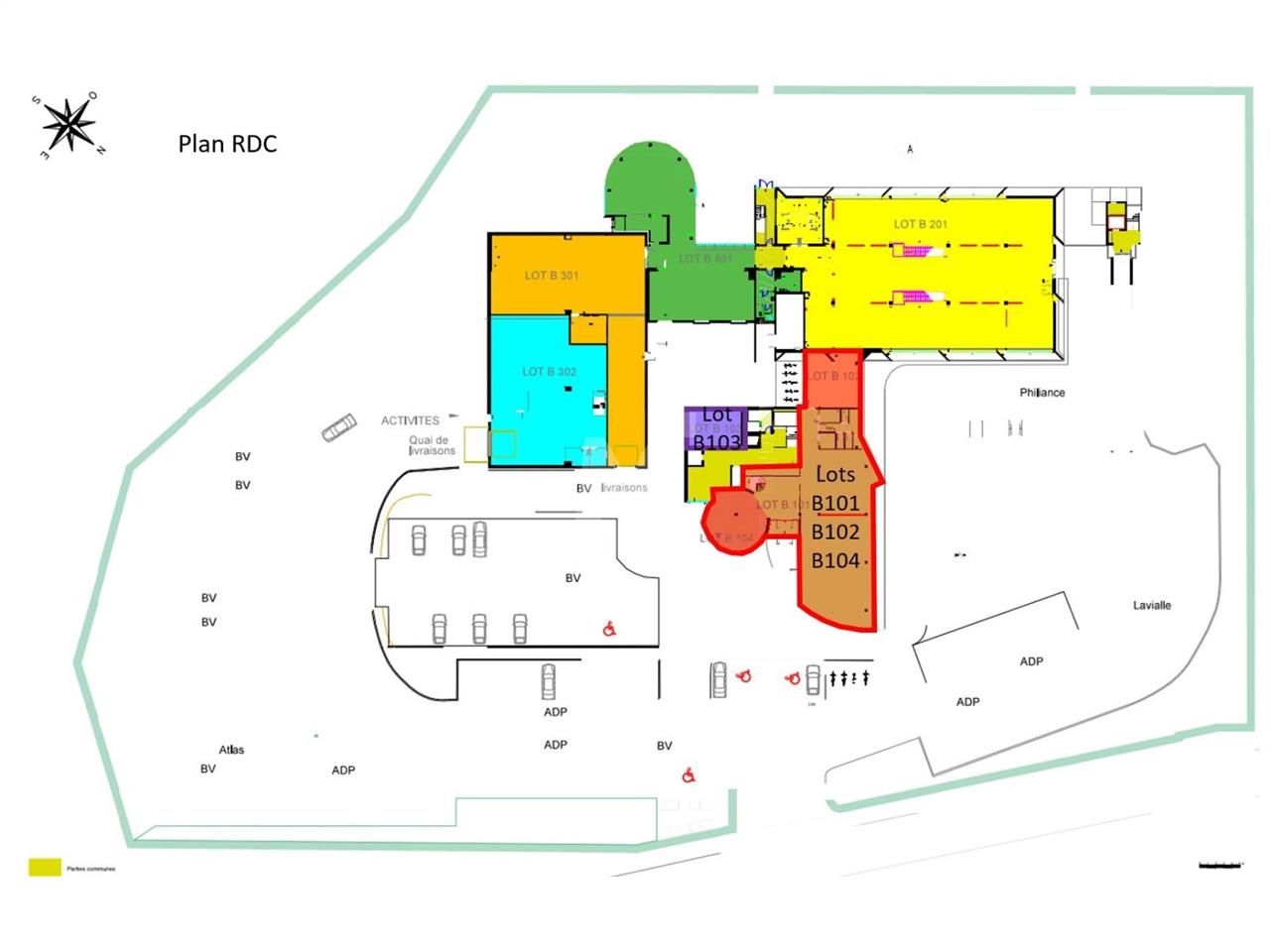
1 275 m² divisible dès 36 m²
HT HC
Location bureau - 1275 m²
Courcouronnes (91080)
Dernière mise à jour : Il y a 2 mois
Dans un ensemble immobilier clos situé à proximité immédiate de la station "Bois Briard" du Tram T12 qui permet de relier la gare RER D d'Evry-Courcouronnes en 5 minutes, et la gare TGV et RER B & C de Massy en 35 minutes environ, nous vous proposons des surfaces à usage de bureaux à la location.
Impôt Foncier : 20 €/HT/m²/an
Régime Fiscal : TVA
Dépôt de garantie : 3 mois de loyer HT/HC
Honoraires : 15% HT du loyer annuel HT/HC
Taxe Bureau : 6 €/m²/an
Information sur le Bail :
Les charges incluent l'assurance mais pas l'électricité privative
Prestations :
Accessibilité:
Autoroute Autoroute A6 sortie n°35 et n°8
Route Nationale 104 Francilienne sortie n°35
Route Nationale 7
RER RER D4 : Evry-Courcouronnes
Tram Bois Briard (Ligne T12)
Bus St-Guénault (Ligne 403, Ligne 414, Ligne 91-05, Ligne 9104)
Les informations sur les risques auxquels ce bien est exposé sont disponibles sur le site Géorisques : www.georisques.gouv.fr
| Étage | Type | Surfaces | Dispo | Loyer | Charges | Type de bailRév. annuelle |
|---|---|---|---|---|---|---|
| 1 | Bureaux | 208 | Indice ILAT | |||
| Rdc | Bureaux | 390 | Indice ILAT | |||
| Total Cellule LOTS B101à104-B111 | Bureaux | 598 | Immédiate | 140 m²/an HT HC | 32 HT/m²/an | 3/6/9 ansIndice ILAT |
| 2 | Bureaux | 120 | Immédiate | 140 m²/an HT HC | 32 HT/m²/an | 3/6/9 ansIndice ILAT |
| 1 | Bureaux | 83 | Immédiate | 140 m²/an HT HC | 32 HT/m²/an | 3/6/9 ansIndice ILAT |
| Rdc | Bureaux | 36 | Immédiate | 140 m²/an HT HC | 32 HT/m²/an | 3/6/9 ansIndice ILAT |
| 2 | Bureaux | 438 | Immédiate | 140 m²/an HT HC | 32 HT/m²/an | 3/6/9 ansIndice ILAT |
| Parkings | 250 U/an HT HC | 3/6/9 ansIndice ILAT | ||||
| Parkings | Immédiate | 250 U/an HT HC | 3/6/9 ansIndice ILAT |
Impôt Foncier : 20 €/HT/m²/an
Régime Fiscal : TVA
Dépôt de garantie : 3 mois de loyer HT/HC
Honoraires : 15% HT du loyer annuel HT/HC
Taxe Bureau : 6 €/m²/an
Information sur le Bail :
Les charges incluent l'assurance mais pas l'électricité privative
Prestations :
- Climatisation réversible
- Câblage informatique cat. 6
- Cloisonnement
- Ascenseurs
- Sécurité : interphone
- Kitchenette, salle de repos, locaux sociaux, douche
- Sanitaires PMR
- Abri vélo
- Afin de réduire les consommations énergétiques fixées par le décret tertiaire, le bailleur a mis en place un système d'automatisation et de contrôle des bâtiments (BACS) dès 2024.
- Immeuble indépendant
- Surface RDC : 426 m²
Accessibilité:
Autoroute Autoroute A6 sortie n°35 et n°8
Route Nationale 104 Francilienne sortie n°35
Route Nationale 7
RER RER D4 : Evry-Courcouronnes
Tram Bois Briard (Ligne T12)
Bus St-Guénault (Ligne 403, Ligne 414, Ligne 91-05, Ligne 9104)
Les informations sur les risques auxquels ce bien est exposé sont disponibles sur le site Géorisques : www.georisques.gouv.fr
Emplacement(s) de Parking: 25 extérieur(s)
Voir plus
Afficher les consommations énergétiques
Localisation et transport aux alentours
Favoris
Exporter
Appeler
Contacter
Signaler cette annonce










