RCG Bordeaux est un cabinet de conseil en immobilier d'entreprise est située au cœur du quartier des Chartrons au 107 cours Balguerie Stuttenberg à Bordeaux. Cette agence propose un large choix de ...
En savoir plus

158 m²
HT HC
Location bureau - 158 m²
Bordeaux (33000)
Dernière mise à jour : Il y a 2 jours
A LOUER - BUREAUX AMENAGES 158M² - BORDEAUX TRIANGLE D'OR
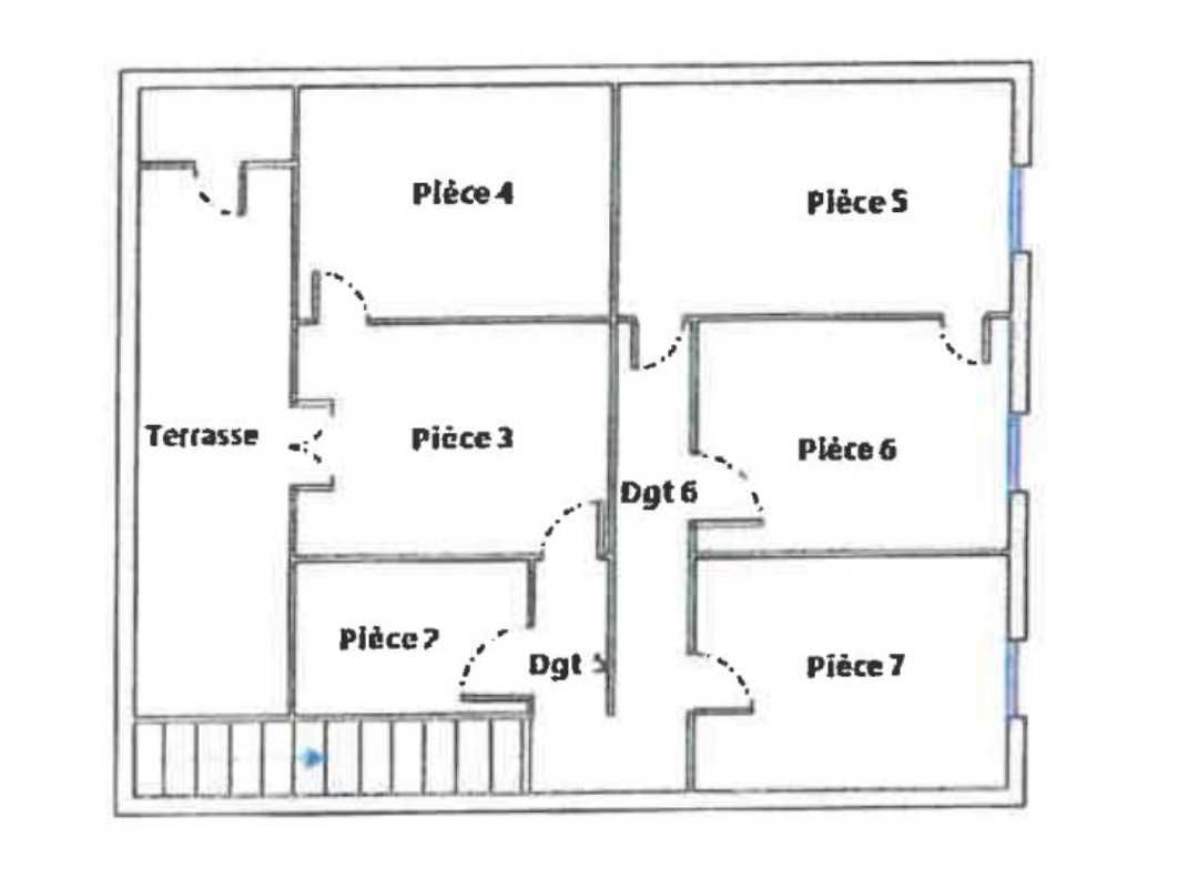
Au sein du Triangle d'Or de Bordeaux au pied de toutes commodités, RCG vous propose à la location, un plateau de bureaux aménagé de 158 m2 dans un bel immeuble ancien.
Locaux en très bon état aménagés en une entrée, 2 grands bureaux, 1 salle de réunion, 2 petits bureaux une grande cuisine équipée et 1 WC.
Régime Fiscal : T.V.A.
Dépôt de garantie : 3 mois de loyer HT/ HC
Honoraires : 20% HT du loyer annuel HT/HC à la charge du Preneur
Prestations :
Accessibilité:
Bus Quinconces (BUS-2, BUS-3, BUS-26)
Tram Sainte Catherine (TRAMWAY-A), Quinconces (TRAMWAY-B, TRAMWAY-C, TRAMWAY-D)
Les informations sur les risques auxquels ce bien est exposé sont disponibles sur le site Géorisques : www.georisques.gouv.fr
Au sein du Triangle d'Or de Bordeaux au pied de toutes commodités, RCG vous propose à la location, un plateau de bureaux aménagé de 158 m2 dans un bel immeuble ancien.
Locaux en très bon état aménagés en une entrée, 2 grands bureaux, 1 salle de réunion, 2 petits bureaux une grande cuisine équipée et 1 WC.
| Étage | Type | Surfaces | Dispo | Loyer | Charges | Type de bailRév. annuelle |
|---|---|---|---|---|---|---|
| 1 | Bureaux | 158 | 31 décembre 2025 | 221,52 HT/HC/m²/an | 20 m²/an HT | 3-6-9 ansILAT Indice des Loyers des Activités Tertiaires |
Régime Fiscal : T.V.A.
Dépôt de garantie : 3 mois de loyer HT/ HC
Honoraires : 20% HT du loyer annuel HT/HC à la charge du Preneur
Prestations :
- Immeuble ancien
- Climatisation réversible
- Cloisonnement amovible
- Sol parquet
- Faux plafond sur une partie
- Eclairage led encastré
- Grande cuisine aménagée
- 1 WC privatif
- Cave
Accessibilité:
Bus Quinconces (BUS-2, BUS-3, BUS-26)
Tram Sainte Catherine (TRAMWAY-A), Quinconces (TRAMWAY-B, TRAMWAY-C, TRAMWAY-D)
Les informations sur les risques auxquels ce bien est exposé sont disponibles sur le site Géorisques : www.georisques.gouv.fr
Voir plus
Afficher les consommations énergétiques
Favoris
Exporter
Appeler
Contacter
Signaler cette annonce










