L’agence CBRE Bordeaux conseille et accompagne les chefs d’entreprise dans leurs projets immobiliers quels que soient leur taille et leur secteur d’activité. Spécialistes de la transaction de burea ...
En savoir plus

1 895 m² divisible dès 404 m²
HT HC
Location bureau - 1895 m²
Bordeaux (33000)
Dernière mise à jour : Il y a 1 mois
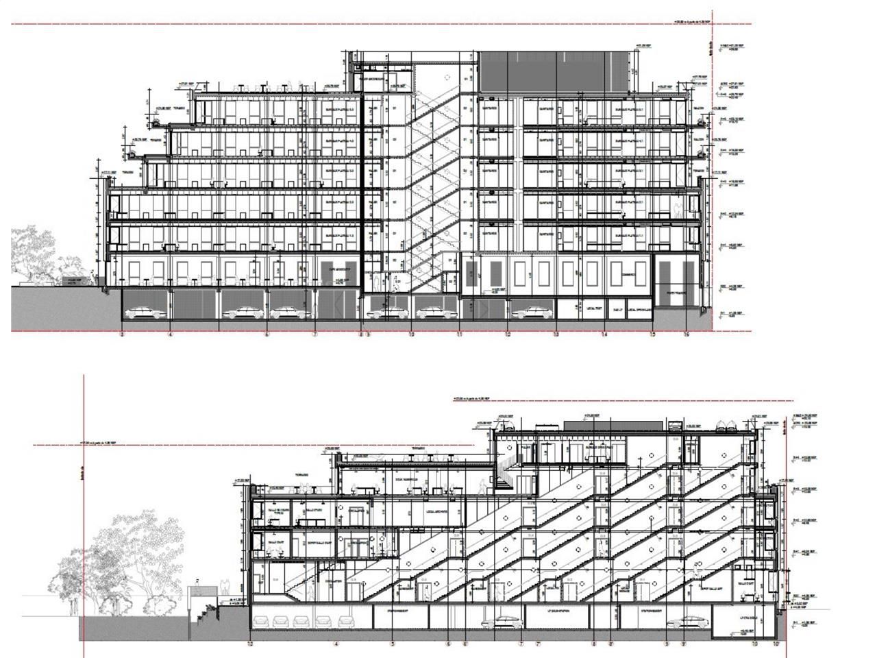
Immeuble IMMEUBLE ITER
Opération emblématique de bureaux dénommée ITER, située au pied du tramway - ligne C. L'immeuble en R+5 développe 6490 m2 environ de surface locative et présente un étage courant compris de 1163 m² à 1423 m² environ, divisibles.
Nombreux parkings, terrasses privatives, roof top, douches, café, commerces, local vélo. N'hésitez pas à nous contacter pour obtenir de plus amples renseignements.
Impôt Foncier : 21 €/m²/an HT
Régime Fiscal : T.V.A.
Dépôt de garantie : 3 mois de loyer HT/HC
Honoraires : 15% HT du loyer annuel HT/HC à la charge du preneur.
Prestations :
Accessibilité:
Tramway Lignes C & E - Arrêt "Place Ravezies"
Bus Lignes H, 7, 9, 27, 53 & 82 - Arrêt "Place Ravezies"
SNCF Bordeaux Saint-Jean à 6km
Les informations sur les risques auxquels ce bien est exposé sont disponibles sur le site Géorisques : www.georisques.gouv.fr
Opération emblématique de bureaux dénommée ITER, située au pied du tramway - ligne C. L'immeuble en R+5 développe 6490 m2 environ de surface locative et présente un étage courant compris de 1163 m² à 1423 m² environ, divisibles.
Nombreux parkings, terrasses privatives, roof top, douches, café, commerces, local vélo. N'hésitez pas à nous contacter pour obtenir de plus amples renseignements.
| Étage | Type | Surfaces | Dispo | Loyer | Charges | Type de bailRév. annuelle |
|---|---|---|---|---|---|---|
| 1 | Bureaux | 523,7 | Immédiate | 180 m²/an HT HC | 37,63 HT/m²/an | 6-9 ansIndice ILAT |
| 1 | Bureaux | 495,4 | Immédiate | 180 m²/an HT HC | 37,63 HT/m²/an | 6-9 ansIndice ILAT |
| 1 | Bureaux | 404 | Immédiate | 180 m²/an HT HC | 37,63 HT/m²/an | 6-9 ansIndice ILAT |
| 4 | Bureaux | 471,6 | Immédiate | 200 m²/an HT HC | 37,63 HT/m²/an | 6-9 ansIndice ILAT |
Impôt Foncier : 21 €/m²/an HT
Régime Fiscal : T.V.A.
Dépôt de garantie : 3 mois de loyer HT/HC
Honoraires : 15% HT du loyer annuel HT/HC à la charge du preneur.
Prestations :
- Immeuble soumis à la règlementation thermique RT 2012
- Immeuble code du travail
- Structure de l'immeuble en béton
- Au rdc commerce alimentaire ; café associatif; salle de réunion mutualisée, douches, local vélo
- Effectif admissible : 1/10
- Accueil jusqu'à 636 personnes en même temps du R1au R5
- Stores intérieurs toile manuels sauf façade nord
- Dans chaque lot, un point d'eau en attente
- Hauteur libre de 2,60m à 2,70m suivant les niveaux
- Chauffage/rafraichissement/ventilation : ventilo convecteurs gainables 3 tubes
- CTA double flux
- GTB
- Luminaires type LED
- Planchers techniques
- Dalles moquettes dans les bureaux 50x50
- Faux plafond dalles minérales acoustiques 120x60
- Visiophonie en mesure conservatoire
- Badge en mesure conservatoire
- Désenfumage mécanique
- Livraison prévue 4T 2023
- Parkings : 111 unités ( Ratio 1/57) dont 30 places en amodiation dans le parking silo Metpark Grand Park
- 83 parkings sous sol : 1500 euros HT/u/an
- 30 parkings extérieurs (parking "Grand Parc" Metpark) : 1200 euros HT/u/an
- 5 emplacements motos en sous-sol : 650 euros HT/un/an
Accessibilité:
Tramway Lignes C & E - Arrêt "Place Ravezies"
Bus Lignes H, 7, 9, 27, 53 & 82 - Arrêt "Place Ravezies"
SNCF Bordeaux Saint-Jean à 6km
Les informations sur les risques auxquels ce bien est exposé sont disponibles sur le site Géorisques : www.georisques.gouv.fr
Voir plus
Afficher les consommations énergétiques
Localisation et transport aux alentours
- Place Ravezies - Le Bouscat136m (2min à pied)C
- Grand Parc419m (6min à pied)C
- Emile Counord806m (12min à pied)C
- Les Aubiers915m (14min à pied)C
- Camille Godard1.3km (19min à pied)C
Favoris
Exporter
Appeler
Contacter
Signaler cette annonce
