RCG Bordeaux est un cabinet de conseil en immobilier d'entreprise est située au cœur du quartier des Chartrons au 107 cours Balguerie Stuttenberg à Bordeaux. Cette agence propose un large choix de ...
En savoir plus

240 m²
HT HC
Location bureau - 240 m²
Bordeaux (33000)
Dernière mise à jour : Hier
A LOUER - BUREAUX AMENAGES 240 M² - BORDEAUX RAVEZIES
Immeuble TRIREME
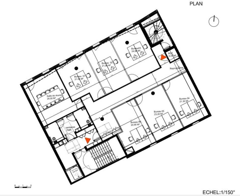
Au dernier étage d'un immeuble tertiaire de 2018, à deux pas de la clinique Bordeaux Nord, RCG vous propose à la location un plateau de bureaux rénové de 240 m² aménagé en 6 bureaux cloisonnés et 1 salle de réunion desservis par un couloir central. Idéal professions médicales. Parking privé 6 places.
Régime Fiscal : Non assujetti à la TVA
Dépôt de garantie : 3 mois de loyer HT/ HC
Honoraires : 20% HT du loyer annuel HT/HC à la charge du Preneur
Information sur le Bail :
Possibilité de bail professionnel ou civil Loyer parkings : 9.000 euros/an
Prestations :
Accessibilité:
Bus Calixte Camelle (Ligne 9)
Tram Grand Parc (Ligne C)
Les informations sur les risques auxquels ce bien est exposé sont disponibles sur le site Géorisques : www.georisques.gouv.fr
Immeuble TRIREME
Au dernier étage d'un immeuble tertiaire de 2018, à deux pas de la clinique Bordeaux Nord, RCG vous propose à la location un plateau de bureaux rénové de 240 m² aménagé en 6 bureaux cloisonnés et 1 salle de réunion desservis par un couloir central. Idéal professions médicales. Parking privé 6 places.
| Étage | Type | Surfaces | Dispo | Loyer | Charges | Type de bailRév. annuelle |
|---|---|---|---|---|---|---|
| 4 | Bureaux | 240 | Immédiate | 180 HC/m²/an | 47,08 m²/an TTC | 3-6-9 ansILAT Indice des Loyers des Activités Tertiaires |
Régime Fiscal : Non assujetti à la TVA
Dépôt de garantie : 3 mois de loyer HT/ HC
Honoraires : 20% HT du loyer annuel HT/HC à la charge du Preneur
Information sur le Bail :
Possibilité de bail professionnel ou civil Loyer parkings : 9.000 euros/an
Prestations :
- Immeuble tertiaire 2018 majoritairement occupé par des professions médicales
- Normes ERP 5 type W - capacitaire 25 personnes (20 public, 5 personnel)
- Visiophone
- Ascenseur / normes PMR
- Sanitaires communs
- Sol moquette
- Faux plafond
- Climatisation réversible
- Bureaux cloisonnés (6) et traversants
- Salle de réunion
- Issue de secours
- Parking privé couvert : 6 places
- Vue dégagée
Accessibilité:
Bus Calixte Camelle (Ligne 9)
Tram Grand Parc (Ligne C)
Les informations sur les risques auxquels ce bien est exposé sont disponibles sur le site Géorisques : www.georisques.gouv.fr
Voir plus
Afficher les consommations énergétiques
Favoris
Exporter
Appeler
Contacter
Signaler cette annonce
