RCG Bordeaux est un cabinet de conseil en immobilier d'entreprise est située au cœur du quartier des Chartrons au 107 cours Balguerie Stuttenberg à Bordeaux. Cette agence propose un large choix de ...
En savoir plus

200 m²
HT HC
Location bureau - 200 m²
Bordeaux (33000)
Dernière mise à jour : Il y a 2 jours
À LOUER - BUREAUX PLUG AND PLAY 200 M² - BORDEAUX GARE ST JEAN
A 650m à pieds de la Gare St Jean, au sein d'un immeuble récent de bon standing, RCG vous propose à la location des bureaux indépendants plug and play de 200 m² en rez-de-chaussée et mezzanine avec terrasses.
Impôt Foncier : 2479 €/an HT
Régime Fiscal : T.V.A.
Dépôt de garantie : 3 mois de loyer HT/ HC
Honoraires : 20% HT du loyer annuel HT/HC à la charge du Preneur
Information sur le Bail :
Loyer parking : 110 euros/U/an HT
Prestations :
Accessibilité:
Tram Ligne C arrêt "Tauzia" à 500 m ou "Gare St Jean" à 650 m
SNCF Gare St Jean à 650 m
Bus Bus lignes 1/11
Les informations sur les risques auxquels ce bien est exposé sont disponibles sur le site Géorisques : www.georisques.gouv.fr
A 650m à pieds de la Gare St Jean, au sein d'un immeuble récent de bon standing, RCG vous propose à la location des bureaux indépendants plug and play de 200 m² en rez-de-chaussée et mezzanine avec terrasses.
| Étage | Type | Surfaces | Dispo | Loyer | Charges | Type de bailRév. annuelle |
|---|---|---|---|---|---|---|
| RDC | Bureaux | 100 | 1er mars 2026 | 240 HT/HC/m²/an | 2,52 m²/an HT | 3-6-9 ansILAT Indice des Loyers des Activités Tertiaires |
| Mezzanine | Bureaux | 100 | 1er mars 2026 | 240 HT/HC/m²/an | 2,52 m²/an HT | 3-6-9 ansILAT Indice des Loyers des Activités Tertiaires |
Impôt Foncier : 2479 €/an HT
Régime Fiscal : T.V.A.
Dépôt de garantie : 3 mois de loyer HT/ HC
Honoraires : 20% HT du loyer annuel HT/HC à la charge du Preneur
Information sur le Bail :
Loyer parking : 110 euros/U/an HT
Prestations :
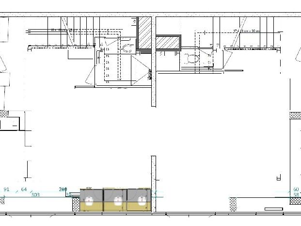
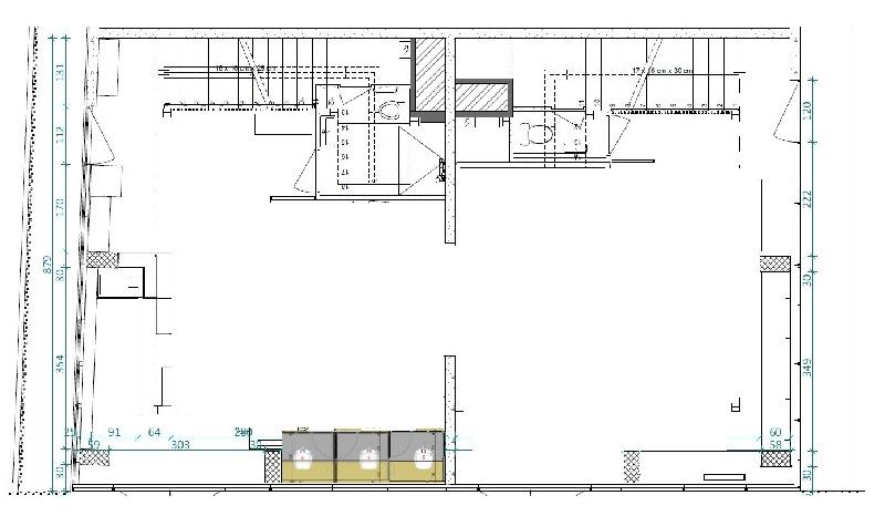
- Immeuble récent
- Accès PMR au rdc
- 2 escaliers intérieurs
- 1 terrasse à chaque niveau
- Bureaux atypiques esprit industriel
- Espace café / cuisine au rdc
- Douche et sanitaires
- Climatisation réversible
- Sol parquet / PVC
- Cloisonnement vitré
- Phonebox
- Salles de réunion
- Bureaux meublés et équipés pour 20 postes de travail - possibilité de garder ou non le mobilier et les équipements en place
- Smart TV connectées
- Fibre optique
- 3 emplacements de parking en sous-sol (en option)
- Surface RDC : 100 m²
Accessibilité:
Tram Ligne C arrêt "Tauzia" à 500 m ou "Gare St Jean" à 650 m
SNCF Gare St Jean à 650 m
Bus Bus lignes 1/11
Les informations sur les risques auxquels ce bien est exposé sont disponibles sur le site Géorisques : www.georisques.gouv.fr
Voir plus
Afficher les consommations énergétiques
Favoris
Exporter
Appeler
Contacter
Signaler cette annonce










