L’agence CBRE Bordeaux conseille et accompagne les chefs d’entreprise dans leurs projets immobiliers quels que soient leur taille et leur secteur d’activité. Spécialistes de la transaction de burea ...
En savoir plus

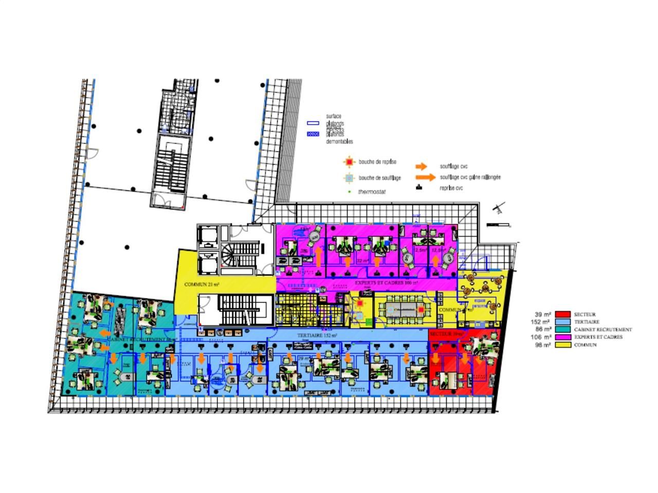
505 m²
HT HC
Location bureau - 505 m²
Bordeaux (33000)
Dernière mise à jour : Hier
QUARTIER EURATLANTIQUE - CBRE vous invite à venir visiter ce plateau de bureaux à louer entièrement aménagés (espace détente, kitchenette) situés au pied de la Garonne à 5 min de la Gare Saint Jean. Cet immeuble récent bénéficie de l'ensemble des services à proximité immédiate : hôtels, parkings publics, restaurants etc.
Ces bureaux à louer sont une belle opportunité de location, entre la Méca et la Halle Boca.
Impôt Foncier : 23,11 €/m²/an HT
Régime Fiscal : T.V.A.
Dépôt de garantie : 3 mois de loyer HT/HC
Honoraires : 15% HT du loyer annuel HT/HC à la charge du preneur.
Prestations :
Accessibilité:
Bus Lignes G, 6 & 31 - Arrêt "MECA (Paludate)"
Tramway Lignes C, D & F - Arrêt "Belcier"
SNCF Bordeaux Saint-Jean à 1km
Autoroute A631 à 2km
Route Rocade sortie n°21
Aeroport Bordeaux-Mérignac à 15km
Les informations sur les risques auxquels ce bien est exposé sont disponibles sur le site Géorisques : www.georisques.gouv.fr
Ces bureaux à louer sont une belle opportunité de location, entre la Méca et la Halle Boca.
| Étage | Type | Surfaces | Dispo | Loyer | Charges | Type de bailRév. annuelle |
|---|---|---|---|---|---|---|
| 1 | Bureaux | 505 | Immédiate | 240 m²/an HT HC | 40,19 HT/m²/an | 6-9 ansIndice ILAT |
Impôt Foncier : 23,11 €/m²/an HT
Régime Fiscal : T.V.A.
Dépôt de garantie : 3 mois de loyer HT/HC
Honoraires : 15% HT du loyer annuel HT/HC à la charge du preneur.
Prestations :
- Terrasse de 133 m² privative
- Ascenseur
- Accès PMR
- Hall d'accueil de standing
- Cloisonnement amovible
- Sol moquette
- Faux plafond luminaires LED
- Sanitaires H/F / PMR
- Parking sous-sol en sus du loyer
- 5 places à 1800 euros HT/U/an
Accessibilité:
Bus Lignes G, 6 & 31 - Arrêt "MECA (Paludate)"
Tramway Lignes C, D & F - Arrêt "Belcier"
SNCF Bordeaux Saint-Jean à 1km
Autoroute A631 à 2km
Route Rocade sortie n°21
Aeroport Bordeaux-Mérignac à 15km
Les informations sur les risques auxquels ce bien est exposé sont disponibles sur le site Géorisques : www.georisques.gouv.fr
Voir plus
Afficher les consommations énergétiques
Favoris
Exporter
Appeler
Contacter
Signaler cette annonce
