L’agence CBRE Bordeaux conseille et accompagne les chefs d’entreprise dans leurs projets immobiliers quels que soient leur taille et leur secteur d’activité. Spécialistes de la transaction de burea ...
En savoir plus

4 200 m² divisible dès 1 000 m²
HT HC
Location bureau - 4200 m²
Bordeaux (33000)
Dernière mise à jour : Il y a 5 mois
CBRE vous propose un immeuble de bureaux neuf réversible situé au coeur du secteur d'Armagnac d'Euratlantique et à proximité de la Gare Saint Jean et des transports en commun (TER, Bus et Tramway). Les prestations offertes répondent aux nouvelles exigences des utilisateurs avec de nombreuses terrasses et services de proximité.
Pour plus d'informations, n'hésitez pas à nous contacter au 05 56 90 52 30.
Régime Fiscal : T.V.A.
Dépôt de garantie : 3 mois de loyer HT/HC
Honoraires : A la charge du preneur.
Prestations :
Accessibilité:
Bus Lignes G & 6 - Arrêt "Seiglière"
Bus Lignes 20, 35 & 54 - Arrêt "Carle Vernet"
Tramway Lignes C & D - Arrêt "Carle Vernet"
SNCF Bordeaux Saint-Jean à 850m
Autoroute A631 à 2km
Les informations sur les risques auxquels ce bien est exposé sont disponibles sur le site Géorisques : www.georisques.gouv.fr
Pour plus d'informations, n'hésitez pas à nous contacter au 05 56 90 52 30.
| Étage | Type | Surfaces | Dispo | Loyer | Charges | Type de bailRév. annuelle |
|---|---|---|---|---|---|---|
| Bureaux | 4200 | 18 mois ap. déb. trx | 230 m²/an HT HC | 3-6-9 ansIndice ILAT |
Régime Fiscal : T.V.A.
Dépôt de garantie : 3 mois de loyer HT/HC
Honoraires : A la charge du preneur.
Prestations :
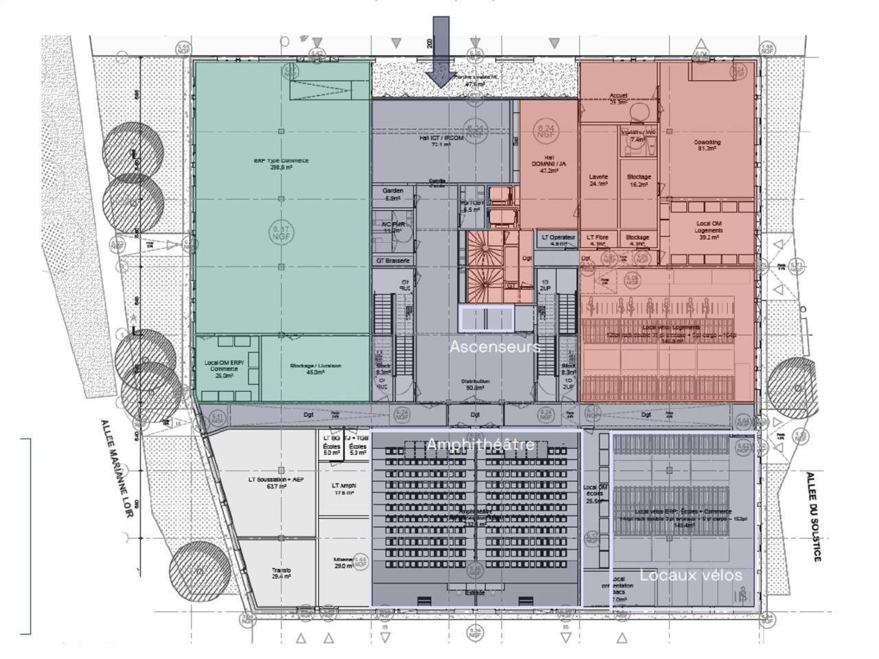
- Immeuble indépendant neuf en R+9
- Mixité d'usage : logement/commerces/bureaux
- Règlementation applicable RT 2012 (enseignement supérieur encore soumis RE2020)
- Labels E3C1 et BREEAM Very Good
- Bâtiment classé ERP 2 type R
- Espaces extérieurs
- Amphithéâtre de 240 places
- Effectif : jusqu'à 1 500 personnes
- Hall d'accueil
- Ascenseurs
- Escaliers
- Faux plafonds
- Accessibilité PMR
- Local vélos : 150 places
Accessibilité:
Bus Lignes G & 6 - Arrêt "Seiglière"
Bus Lignes 20, 35 & 54 - Arrêt "Carle Vernet"
Tramway Lignes C & D - Arrêt "Carle Vernet"
SNCF Bordeaux Saint-Jean à 850m
Autoroute A631 à 2km
Les informations sur les risques auxquels ce bien est exposé sont disponibles sur le site Géorisques : www.georisques.gouv.fr
Voir plus
Afficher les consommations énergétiques
Favoris
Exporter
Appeler
Contacter
Signaler cette annonce










