RCG Bordeaux est un cabinet de conseil en immobilier d'entreprise est située au cœur du quartier des Chartrons au 107 cours Balguerie Stuttenberg à Bordeaux. Cette agence propose un large choix de ...
En savoir plus



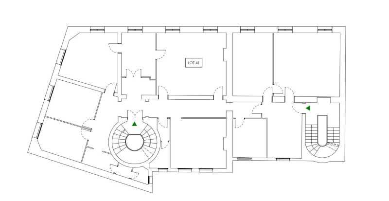
441 m² divisible dès 180 m²
HT HC
Location bureau - 441 m²
Bordeaux (33000)
Dernière mise à jour : Il y a 9 jours
A LOUER - BUREAUX 441 M² DIVISIBLES - BORDEAUX QUINCONCES
Immeuble ANDROMEDE
Sur la place des Quinconces, au sein d'un bel immeuble en pierre avec ascenseur bénéficiant d'une vue imprenable sur la Garonne, RCG vous propose à la location deux plateaux de bureaux aménagés de 180 m² et 261 m².
Impôt Foncier : 19 €/m²/an HT
Régime Fiscal : T.V.A.
Dépôt de garantie : 3 mois de loyer HT/ HC
Honoraires : 15% HT du loyer annuel HT/HC à la charge du Preneur
Prestations :
Accessibilité:
Bus Quinconces (BUS-TBNIGHT)
Tram CAPC Musée d'Art Contemporain (TRAMWAY-B), Jardin Public (TRAMWAY-C), Quinconces (TRAMWAY-B-C-D)
Les informations sur les risques auxquels ce bien est exposé sont disponibles sur le site Géorisques : www.georisques.gouv.fr
Immeuble ANDROMEDE
Sur la place des Quinconces, au sein d'un bel immeuble en pierre avec ascenseur bénéficiant d'une vue imprenable sur la Garonne, RCG vous propose à la location deux plateaux de bureaux aménagés de 180 m² et 261 m².
| Étage | Type | Surfaces | Dispo | Loyer | Charges | Type de bailRév. annuelle |
|---|---|---|---|---|---|---|
| 5 | Bureaux | 261 | Immédiate | 320 HT/HC/m²/an | 30 m²/an HT | 3-6-9 ansILAT Indice des Loyers des Activités Tertiaires |
| 4 | Bureaux | 180 | Immédiate | 350 HT/HC/m²/an | 30 m²/an HT | 3-6-9 ansILAT Indice des Loyers des Activités Tertiaires |
Impôt Foncier : 19 €/m²/an HT
Régime Fiscal : T.V.A.
Dépôt de garantie : 3 mois de loyer HT/ HC
Honoraires : 15% HT du loyer annuel HT/HC à la charge du Preneur
Prestations :
- Immeuble ancien
- Ascenseur
- Interphone
- Bureaux cloisonnés / salle de réunion
- Sol PVC
- Faux plafond
- Eclairage led
- Climatisation réversible
- Cuisine fermée au R+4
- Sanitaires privatifs
- Parking public au pied de l'immeuble
Accessibilité:
Bus Quinconces (BUS-TBNIGHT)
Tram CAPC Musée d'Art Contemporain (TRAMWAY-B), Jardin Public (TRAMWAY-C), Quinconces (TRAMWAY-B-C-D)
Les informations sur les risques auxquels ce bien est exposé sont disponibles sur le site Géorisques : www.georisques.gouv.fr
Voir plus
Afficher les consommations énergétiques
Favoris
Exporter
Appeler
Contacter
Signaler cette annonce
