RCG Bordeaux est un cabinet de conseil en immobilier d'entreprise est située au cœur du quartier des Chartrons au 107 cours Balguerie Stuttenberg à Bordeaux. Cette agence propose un large choix de ...
En savoir plus

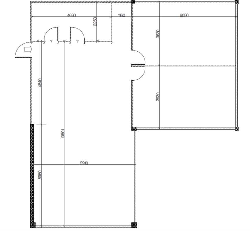
124 m²
HT HC
Location bureau - 124 m²
Bordeaux (33000)
Dernière mise à jour : Il y a 2 jours
A LOUER - BUREAUX DE 124 M² - BORDEAUX LAC
A proximité de l'accès rocade et du centre commercial Bordeaux lac, RCG vous propose à la location une surface de bureaux rénovée de 124 m² au R+1.
Locaux aménagés en open space, bureau de direction et salle de réunion.
Site sécurisé avec places de stationnement.
Impôt Foncier : 2036 €//an TTC
Régime Fiscal : T.V.A.
Dépôt de garantie : 1 mois de loyer HT
Honoraires : 20% HT du loyer annuel HT/HC à la charge du Preneur
Information sur le Bail :
Bureaux loués meublés Possibilité de bail commercial 3-6-9 ans (loyer 26 000 euros/an HT HC) ou bail dérogatoire 12 mois fermes (27 000 euros/an HT HC en cas de bail commercial : honoraires 30 % HT du loyer annuel HT HC
Prestations :
Accessibilité:
Tram A 200m de la ligne C arrêt "Parc des Expositions"
Autoroute Accès direct à la Rocade sortie n°4
Les informations sur les risques auxquels ce bien est exposé sont disponibles sur le site Géorisques : www.georisques.gouv.fr
A proximité de l'accès rocade et du centre commercial Bordeaux lac, RCG vous propose à la location une surface de bureaux rénovée de 124 m² au R+1.
Locaux aménagés en open space, bureau de direction et salle de réunion.
Site sécurisé avec places de stationnement.
| Étage | Type | Surfaces | Dispo | Loyer | Charges | Type de bailRév. annuelle |
|---|---|---|---|---|---|---|
| 1 | Bureaux | 124 | Après accord | 217,74 HT/HC/m²/an | 40,32 m²/an HT | Bail dérogatoireILAT Indice des Loyers des Activités Tertiaires |
Impôt Foncier : 2036 €//an TTC
Régime Fiscal : T.V.A.
Dépôt de garantie : 1 mois de loyer HT
Honoraires : 20% HT du loyer annuel HT/HC à la charge du Preneur
Information sur le Bail :
Bureaux loués meublés Possibilité de bail commercial 3-6-9 ans (loyer 26 000 euros/an HT HC) ou bail dérogatoire 12 mois fermes (27 000 euros/an HT HC en cas de bail commercial : honoraires 30 % HT du loyer annuel HT HC
Prestations :
- Bureaux meublés
- Open space
- Salles de réunion
- Salle de pause
- Climatisation réversible
- Câblage informatique
- Eclairage Led
- 5 places de parking
Accessibilité:
Tram A 200m de la ligne C arrêt "Parc des Expositions"
Autoroute Accès direct à la Rocade sortie n°4
Les informations sur les risques auxquels ce bien est exposé sont disponibles sur le site Géorisques : www.georisques.gouv.fr
Voir plus
Afficher les consommations énergétiques
Favoris
Exporter
Appeler
Contacter
Signaler cette annonce










