RCG Bordeaux est un cabinet de conseil en immobilier d'entreprise est située au cœur du quartier des Chartrons au 107 cours Balguerie Stuttenberg à Bordeaux. Cette agence propose un large choix de ...
En savoir plus

272 m²
HT HC
Location bureau - 272 m²
Bordeaux (33000)
Dernière mise à jour : Il y a 2 jours
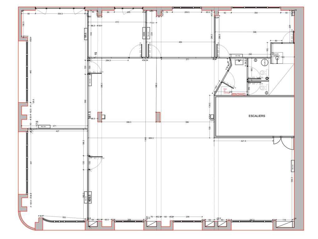
A LOUER - BUREAUX RENOVES 272 M² - BORDEAUX CHARTRONS
Secteur Chartrons, à proximité des quais et du Tram B "Cours du Médoc", RCG vous propose à la location une surface de bureaux cloisonnée et climatisée de 272 m² au 2ème étage d'un immeuble de bureaux, agrémentée de 3 places de parking extérieures. Locaux rénovés en 2022.
Une pièce principale avec cuisine équipée d'environ 140m²
2 salles de réunion de 14,5 m² chacune
1 salle de réunion d'environ 40m²
1 salle de réunion d'environ 35m²
1 salle de stockage d'environ 25m² donnant accès à une salle de douche
Un espace avec deux blocs sanitaire et un lavabo
Régime Fiscal : T.V.A.
Dépôt de garantie : 3 mois de loyer HT/ HC
Honoraires : 20% HT du loyer annuel HT/HC à la charge du Preneur
Information sur le Bail :
Les charges comprennent l'impôt foncier et l'eau
Prestations :
Accessibilité:
Tram Tram B arrêt "Cours du Médoc"
Bus Bus ligne 4
Les informations sur les risques auxquels ce bien est exposé sont disponibles sur le site Géorisques : www.georisques.gouv.fr
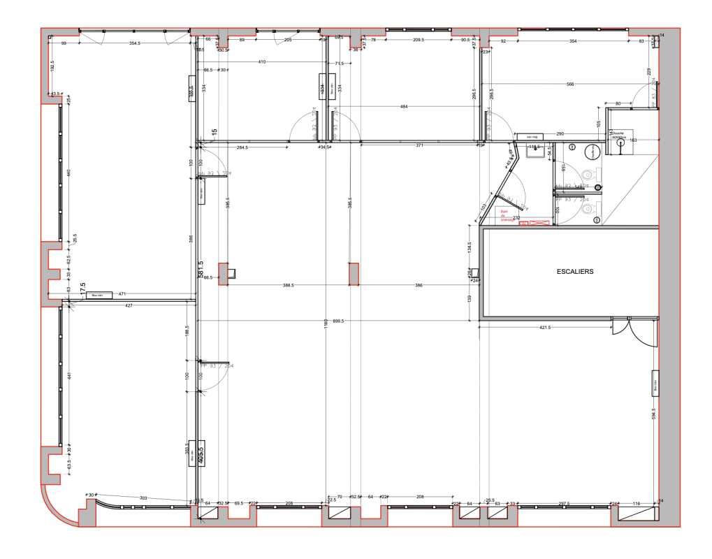
Secteur Chartrons, à proximité des quais et du Tram B "Cours du Médoc", RCG vous propose à la location une surface de bureaux cloisonnée et climatisée de 272 m² au 2ème étage d'un immeuble de bureaux, agrémentée de 3 places de parking extérieures. Locaux rénovés en 2022.
Une pièce principale avec cuisine équipée d'environ 140m²
2 salles de réunion de 14,5 m² chacune
1 salle de réunion d'environ 40m²
1 salle de réunion d'environ 35m²
1 salle de stockage d'environ 25m² donnant accès à une salle de douche
Un espace avec deux blocs sanitaire et un lavabo
| Étage | Type | Surfaces | Dispo | Loyer | Charges | Type de bailRév. annuelle |
|---|---|---|---|---|---|---|
| 2 | Bureaux | 272,4 | Immédiate | 170,75 HT/HC/m²/an | 4,09 m²/an HT | 3-6-9 ansILAT Indice des Loyers des Activités Tertiaires |
Régime Fiscal : T.V.A.
Dépôt de garantie : 3 mois de loyer HT/ HC
Honoraires : 20% HT du loyer annuel HT/HC à la charge du Preneur
Information sur le Bail :
Les charges comprennent l'impôt foncier et l'eau
Prestations :
- Ascenseur PMR en projet
- Interphone
- Espace accueil / open space
- 3 bureaux cloisonnés - 2 salles de réunion
- Cuisine ouverte
- 2 sanitaires privatifs / douche
- Climatisation réversible
- Baie de brassage / câblage RJ45
- Fibre optique
- Cloisonnement amovible semi-vitré
- 3 emplacements de parking inclus dans le loyer
Accessibilité:
Tram Tram B arrêt "Cours du Médoc"
Bus Bus ligne 4
Les informations sur les risques auxquels ce bien est exposé sont disponibles sur le site Géorisques : www.georisques.gouv.fr
Voir plus
Afficher les consommations énergétiques
Favoris
Exporter
Appeler
Contacter
Signaler cette annonce










