RCG Bordeaux est un cabinet de conseil en immobilier d'entreprise est située au cœur du quartier des Chartrons au 107 cours Balguerie Stuttenberg à Bordeaux. Cette agence propose un large choix de ...
En savoir plus

165 m²
HT HC
Location bureau - 165 m²
Bordeaux (33000)
Dernière mise à jour : Il y a 3 jours
A LOUER - BUREAUX 165 M² - BORDEAUX BASTIDE
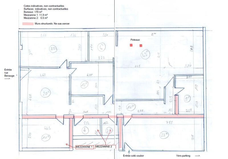
A deux pas de la place Stalingrad et du tram A, dans une rue commerçante, RCG Bordeaux vous propose à la location une surface de bureaux de 165m² environ avec 4 places de stationnement.
Salle de réunion, baie de brassage, accueil, cuisine, climatisation réversible, double entrée dont une avec vitrine sur rue.
Régime Fiscal : Non assujetti à la TVA
Dépôt de garantie : 3 mois de loyer
Honoraires : 30% HT du loyer annuel HC à la charge du Preneur
Information sur le Bail :
charges comprenant entretien des parties communes + TF
Prestations :
Accessibilité:
Bus Stalingrad (BUS-10, BUS-80), Stalingrad (rue de la Benauge) (BUS-16, BUS-45), Stalingrad (quai Deschamps) (BUS-ARENA), Stalingrad (arrêt de Montée) (BUS-27, BUS-28, BUS-50, BUS-91, BUS-92, BUS-25)
Tram Stalingrad (TRAMWAY-A)
Les informations sur les risques auxquels ce bien est exposé sont disponibles sur le site Géorisques : www.georisques.gouv.fr
A deux pas de la place Stalingrad et du tram A, dans une rue commerçante, RCG Bordeaux vous propose à la location une surface de bureaux de 165m² environ avec 4 places de stationnement.
Salle de réunion, baie de brassage, accueil, cuisine, climatisation réversible, double entrée dont une avec vitrine sur rue.
| Étage | Type | Surfaces | Dispo | Loyer | Charges | Type de bailRév. annuelle |
|---|---|---|---|---|---|---|
| RDC | Bureaux | 165 | Immédiate | 138,18 HC/m²/an | 25,79 m²/an | 3-6-9 ansILAT Indice des Loyers des Activités Tertiaires |
Régime Fiscal : Non assujetti à la TVA
Dépôt de garantie : 3 mois de loyer
Honoraires : 30% HT du loyer annuel HC à la charge du Preneur
Information sur le Bail :
charges comprenant entretien des parties communes + TF
Prestations :
- Double accès
- Accueil
- Bureaux cloisonnés
- Salle de réunion
- Cuisine
- Baie de brassage
- Climatisation réversible
- Sanitaires privatifs
- 19m² supplémentaires de combles
- Vitrine sur rue avec volet métallique
- Parking extérieur sécurisé par portail électrique
- Surface RDC : 165 m²
Accessibilité:
Bus Stalingrad (BUS-10, BUS-80), Stalingrad (rue de la Benauge) (BUS-16, BUS-45), Stalingrad (quai Deschamps) (BUS-ARENA), Stalingrad (arrêt de Montée) (BUS-27, BUS-28, BUS-50, BUS-91, BUS-92, BUS-25)
Tram Stalingrad (TRAMWAY-A)
Les informations sur les risques auxquels ce bien est exposé sont disponibles sur le site Géorisques : www.georisques.gouv.fr
Voir plus
Afficher les consommations énergétiques
Favoris
Exporter
Appeler
Contacter
Signaler cette annonce










