RCG Bordeaux est un cabinet de conseil en immobilier d'entreprise est située au cœur du quartier des Chartrons au 107 cours Balguerie Stuttenberg à Bordeaux. Cette agence propose un large choix de ...
En savoir plus

36 m²
HT HC
Location bureau - 36 m²
Bordeaux (33000)
Dernière mise à jour : Il y a 3 jours
A LOUER - BUREAUX 36 M² - BORDEAUX CHARTRONS
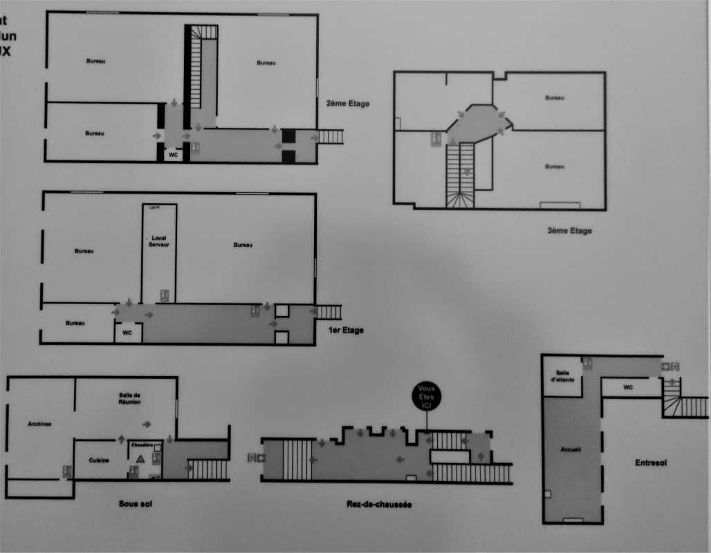
Entre la place Paul Doumer et le Jardin Public, RCG vous propose à la location une surface de bureaux de 36 m² au sein d'un très bel immeuble ancien développant 392 m² sur 3 niveaux + sous-sol et combles aménagés, s'articulant autour d'une cour intérieure de 26 m².
Très belles prestations !
Impôt Foncier : 10 €/m²/an HT
Régime Fiscal : T.V.A.
Dépôt de garantie : 3 mois de loyer HT/ HC
Honoraires : 15% HT du loyer annuel HT/HC à la charge du Preneur
Information sur le Bail :
Charges en cours de détermination Bail professionnel possible Salle de réunion en supplément : 70 euros/mois HT HC
Prestations :
Accessibilité:
Tram Tram C "Place Paul Doumer"
Bus Bus lignes 4/12/15/26
Les informations sur les risques auxquels ce bien est exposé sont disponibles sur le site Géorisques : www.georisques.gouv.fr
Entre la place Paul Doumer et le Jardin Public, RCG vous propose à la location une surface de bureaux de 36 m² au sein d'un très bel immeuble ancien développant 392 m² sur 3 niveaux + sous-sol et combles aménagés, s'articulant autour d'une cour intérieure de 26 m².
Très belles prestations !
| Étage | Type | Surfaces | Dispo | Loyer | Charges | Type de bailRév. annuelle |
|---|---|---|---|---|---|---|
| 1 | Bureaux | 36 | Immédiate | 350 HT/HC/m²/an | 3-6-9 ansILAT Indice des Loyers des Activités Tertiaires |
Impôt Foncier : 10 €/m²/an HT
Régime Fiscal : T.V.A.
Dépôt de garantie : 3 mois de loyer HT/ HC
Honoraires : 15% HT du loyer annuel HT/HC à la charge du Preneur
Information sur le Bail :
Charges en cours de détermination Bail professionnel possible Salle de réunion en supplément : 70 euros/mois HT HC
Prestations :
- Immeuble indépendant en pierre rénové entièrement en 2013
- Interphone
- Bel escalier en pierre
- Prestations anciennes conservées : Parquet / moulures / cheminées
- Chauffage individuel gaz (2013)
- Fenêtres doublées par un survitrage
- Sous-sol sain de 68 m² aménagé en parties communes : kitchenette / salle de réunion / archives
- Bureaux cloisonnés
- Salle serveur avec baie de brassage
- Fibre optique / câblage RJ45
- Sanitaire à chaque niveau
- Cour intérieure commune 26 m²
- Parking Public à proximité
Accessibilité:
Tram Tram C "Place Paul Doumer"
Bus Bus lignes 4/12/15/26
Les informations sur les risques auxquels ce bien est exposé sont disponibles sur le site Géorisques : www.georisques.gouv.fr
Voir plus
Afficher les consommations énergétiques
Favoris
Exporter
Appeler
Contacter
Signaler cette annonce
