Conseil en immobilier d'entreprise, Cushman & Wakefield est un acteur incontournable au rayonnement international. Cushman & Wakefield offre des solutions dans toutes les étapes que comporte un p ...
En savoir plus



5 395 m²
HT HC
Location activité/entrepôt - 5395 m²
Meyzieu (69330)
Dernière mise à jour : Il y a 4 jours
A LOUER LOCAUX D'ACTIVITE AVEC PONTS ROULANTS
À louer au coeur de la ZI DE MEYZIEU (69330), un bâtiment industriel de 5 395 m², idéal pour les entreprises à la recherche de locaux industriels performants et immédiatement opérationnels. Situé au 4, rue Jean Macé, ce site rare sur le marché bénéficie d'un emplacement stratégique à proximité directe des axes autoroutiers A43, A432, A42 via l'A46 (rocade Est), et d'un accès facilité par les lignes T3 et T20-Zi2 ainsi que la gare Lyon Saint-Exupéry.
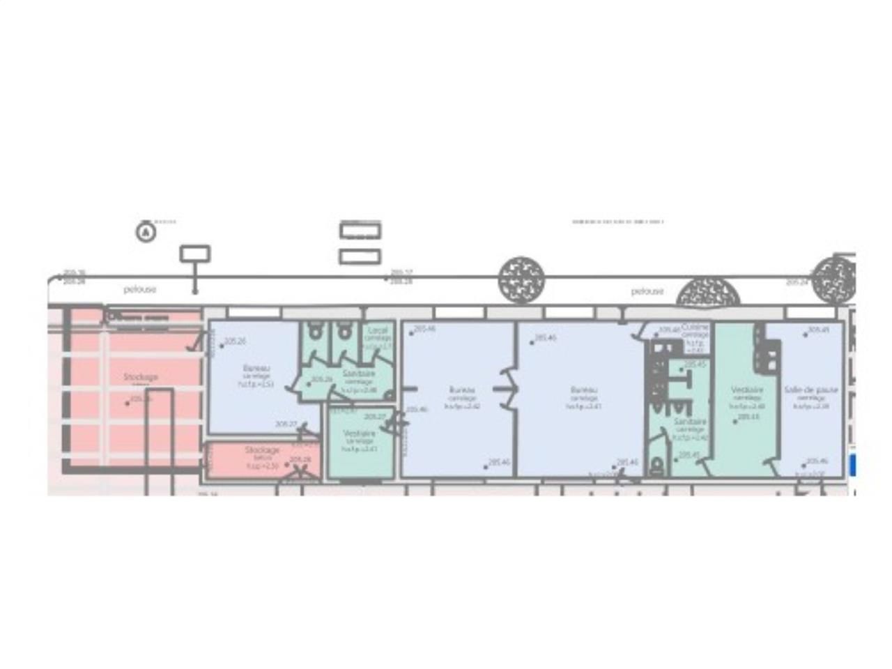
Ce bâtiment industriel, non divisible, se compose de 5 255 m² de surface d'activités et de 140 m² de bureaux. Il est parfaitement adapté aux activités de levage grâce à ses 4 ponts roulants de 3,75 T à 12,5 T, avec une capacité de chemins de ponts allant jusqu'à 40 T. La hauteur libre de 9,5 m, la dalle renforcée à 9 T/m², et la puissance électrique de 630 KWA offrent un environnement technique de haut niveau. Deux portes de plain-pied (6 m x 4,6 m), une aire de manoeuvre poids lourds de 50 m, 47 places de stationnement, ainsi qu'un espace extérieur partagé de 10 000 m² complètent les prestations.
Le site est clos, sécurisé par contrôle d'accès, et propose 400 m² de stockage extérieur.
Des travaux d'adaptation sont envisageables : déplacement des ponts, installation de bornes de recharge, ou modification des locaux industriels selon vos besoins.
Régime Fiscal : T.V.A.
Dépôt de garantie : 3 mois de loyer HT/HC
Paiement Loyer : Trimestriel
Honoraires : 15 % HT du loyer annuel HT/HC à la charge du preneur.
Prestations :
Accessibilité:
Bus Lignes T20-Zi2
Tram T3
SNCF Gare de Lyon Saint Exupéy
Accès routier Direct par A46 (Rocade Est)- Echangeur 7.1
Accès routier Raccordement aux autoroutes A43, A432, A42
Aéroport Lyon Saint Exupéy
Les informations sur les risques auxquels ce bien est exposé sont disponibles sur le site Géorisques : www.georisques.gouv.fr
À louer au coeur de la ZI DE MEYZIEU (69330), un bâtiment industriel de 5 395 m², idéal pour les entreprises à la recherche de locaux industriels performants et immédiatement opérationnels. Situé au 4, rue Jean Macé, ce site rare sur le marché bénéficie d'un emplacement stratégique à proximité directe des axes autoroutiers A43, A432, A42 via l'A46 (rocade Est), et d'un accès facilité par les lignes T3 et T20-Zi2 ainsi que la gare Lyon Saint-Exupéry.
Ce bâtiment industriel, non divisible, se compose de 5 255 m² de surface d'activités et de 140 m² de bureaux. Il est parfaitement adapté aux activités de levage grâce à ses 4 ponts roulants de 3,75 T à 12,5 T, avec une capacité de chemins de ponts allant jusqu'à 40 T. La hauteur libre de 9,5 m, la dalle renforcée à 9 T/m², et la puissance électrique de 630 KWA offrent un environnement technique de haut niveau. Deux portes de plain-pied (6 m x 4,6 m), une aire de manoeuvre poids lourds de 50 m, 47 places de stationnement, ainsi qu'un espace extérieur partagé de 10 000 m² complètent les prestations.
Le site est clos, sécurisé par contrôle d'accès, et propose 400 m² de stockage extérieur.
Des travaux d'adaptation sont envisageables : déplacement des ponts, installation de bornes de recharge, ou modification des locaux industriels selon vos besoins.
| Étage | Type | Surfaces | Dispo | Loyer | Charges | Type de bailRév. annuelle |
|---|---|---|---|---|---|---|
| Activités | 5255 | Sur l'indice ILAT | ||||
| Bureaux | 140 | Sur l'indice ILAT | ||||
| Total Cellule | Activités | 5395 | 110 HT/HC/m²/an | 3-6-9 ansSur l'indice ILAT |
Régime Fiscal : T.V.A.
Dépôt de garantie : 3 mois de loyer HT/HC
Paiement Loyer : Trimestriel
Honoraires : 15 % HT du loyer annuel HT/HC à la charge du preneur.
Prestations :
- Actif très rare et parfaitement adapté aux activités de levage industriel
- Local à usage d'activité/stockage grande hauteur Plusieurs ponts roulants
- Site clos
- Contrôle d'accès extérieur
- 400 m² de stockage extérieur à l'avant du bâtiment
- Travaux sur demande :
- Certification Breeam in Use Very Good
- Mise en place de bornes électriques de recharge
- Déplacement des ponts
- Modifications éventuelles de l'entrepôt
- Cellule d'activité rénovée
- Hauteur libre : 9,5 m
- Puissance électrique actuelle : 630 KWA
- 4 ponts roulants de 3,75 T à 12,5 T
- 2 portes de plain-pied : 6 m - 4,6 m
- Capacité des chemins de ponts : 40 T
- Capacité dalle : 9 T/m²
- Eclairage LED
- Aire de manoeuvre PL : 50 m
- Surface extérieure : 10.000 m² (partagée et divisible)
- 47 parkings
- Travaux standards :
- Rénovation complète du clos et couverts
- Centrale solaire : bâtiment productif
- Surface RDC : 0 m²
Accessibilité:
Bus Lignes T20-Zi2
Tram T3
SNCF Gare de Lyon Saint Exupéy
Accès routier Direct par A46 (Rocade Est)- Echangeur 7.1
Accès routier Raccordement aux autoroutes A43, A432, A42
Aéroport Lyon Saint Exupéy
Les informations sur les risques auxquels ce bien est exposé sont disponibles sur le site Géorisques : www.georisques.gouv.fr
Voir plus
Afficher les consommations énergétiques
Localisation et transport aux alentours
Favoris
Exporter
Appeler
Contacter
Signaler cette annonce










