MALSH Realty accompagne les entreprises dans leurs projets immobiliers, qu’il s’agisse de locaux d’activités, de bureaux, de commerces, d’entrepôts ou de terrains. L’agence intervient aussi bien au ...
En savoir plus

310 m²
HT HC
Location activité/entrepôt - 310 m²
Meyzieu (69330)
Dernière mise à jour : Hier
Local d'Activités à MEYZIEU - A LOUER - 310 m²
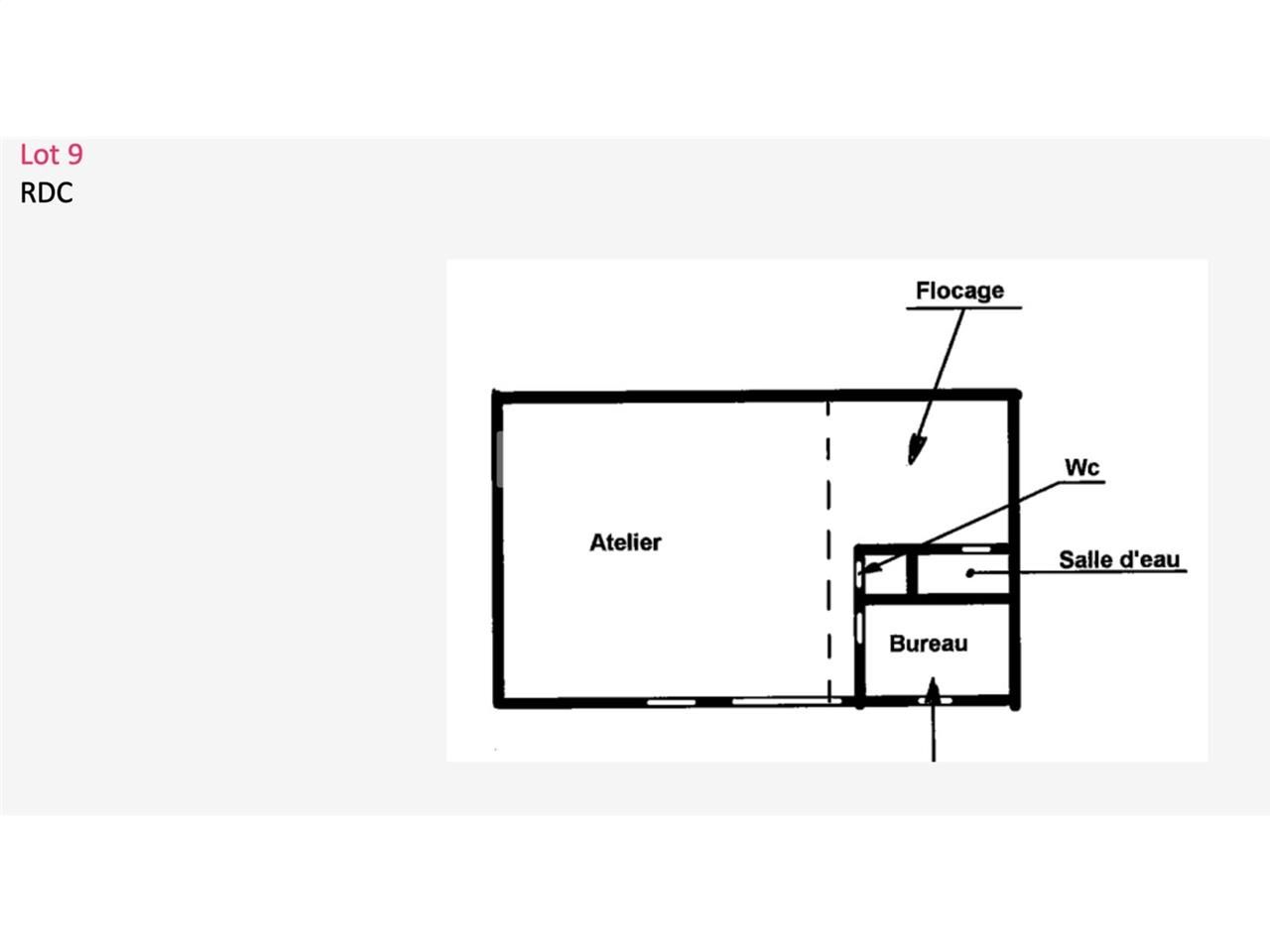
Au sein de la zone industrielle de Meyzieu, nous vous proposons à la location, un local d'activités d'une surface totale d'environ 310 m². Ce local dispose d'un bureau, d'un sanitaire et d'une porte sectionnelle.
Idéalement desservis par le tramway T3 et par les lignes de bus 67 et Zi2.
Location Local d'Activités - Meyzieu (69330) - 310 m²
Impôt Foncier : 5 €/HT/m²/an
Régime Fiscal : T.V.A. (20%)
Dépôt de garantie : 3 mois de loyer HT/HC
Honoraires : 15 % HT du loyer annuel HT/HC, à la charge du preneur, payables à la signature du bail
Prestations :
Accessibilité:
Route Accès par la Rocade Est (A46) - Echangeur n° 7 à 5 min
Bus Bus TCL lignes 28, 29, 32, 47, 67, Zi2
Tram Tramway ligne T3 à proximité immédiate
Les informations sur les risques auxquels ce bien est exposé sont disponibles sur le site Géorisques : www.georisques.gouv.fr
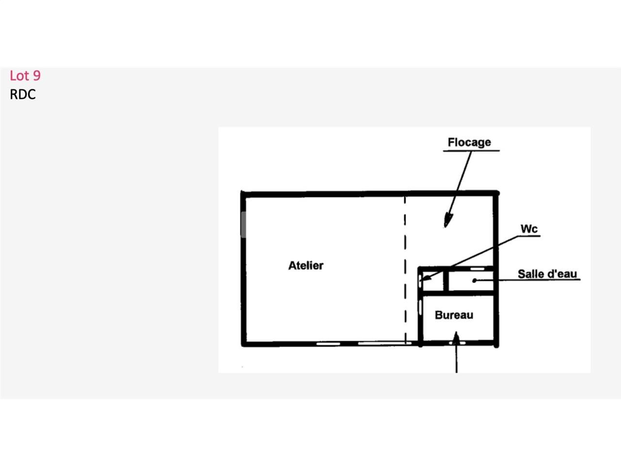
Au sein de la zone industrielle de Meyzieu, nous vous proposons à la location, un local d'activités d'une surface totale d'environ 310 m². Ce local dispose d'un bureau, d'un sanitaire et d'une porte sectionnelle.
Idéalement desservis par le tramway T3 et par les lignes de bus 67 et Zi2.
Location Local d'Activités - Meyzieu (69330) - 310 m²
| Étage | Type | Surfaces | Dispo | Loyer | Charges | Type de bailRév. annuelle |
|---|---|---|---|---|---|---|
| Activités | 310 | Immédiate | 100 HT/HC/m²/an | 3,7 HT/m²/an | commercial 3-6-9 ansILAT Indice des Loyers des Activités Tertiaires |
Impôt Foncier : 5 €/HT/m²/an
Régime Fiscal : T.V.A. (20%)
Dépôt de garantie : 3 mois de loyer HT/HC
Honoraires : 15 % HT du loyer annuel HT/HC, à la charge du preneur, payables à la signature du bail
Prestations :
- Accès de plain-pied / Accès semi
- 1 porte sectionnelle par lot
- Parkings à l'aplomb du local
- Murs moellons
- Dalle industrielle béton
- Chauffage radiant gaz
- Bureau
- Sanitaire
- Faux-plafonds
Accessibilité:
Route Accès par la Rocade Est (A46) - Echangeur n° 7 à 5 min
Bus Bus TCL lignes 28, 29, 32, 47, 67, Zi2
Tram Tramway ligne T3 à proximité immédiate
Les informations sur les risques auxquels ce bien est exposé sont disponibles sur le site Géorisques : www.georisques.gouv.fr
Voir plus
Afficher les consommations énergétiques
Localisation et transport aux alentours
- Meyzieu Z.I.319m (5min à pied)31
Favoris
Exporter
Appeler
Contacter
Signaler cette annonce










