MALSH Realty accompagne les entreprises dans leurs projets immobiliers, qu’il s’agisse de locaux d’activités, de bureaux, de commerces, d’entrepôts ou de terrains. L’agence intervient aussi bien au ...
En savoir plus

1 217 m²
HT HC
Location activité/entrepôt - 1217 m²
Lyon 7 (69007)
Dernière mise à jour : Hier
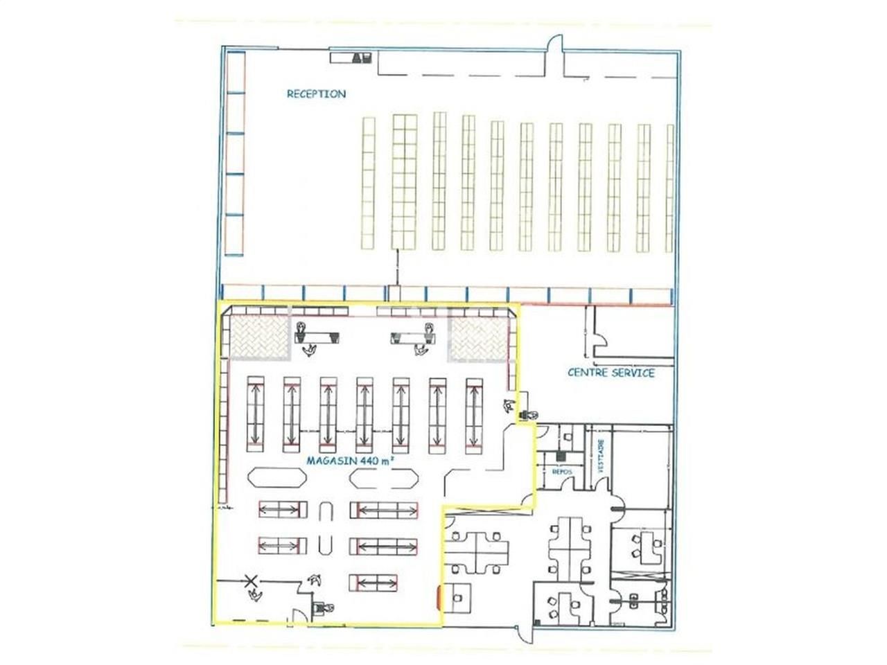
Local mixte (stockage / bureaux) à LYON 7EME - A LOUER - 1217 m²
Au sein d'un parc d'activités clos dans le quartier de Gerland à Lyon 7ème, nous vous proposons à la location, un local d'une surface totale d'environ 1 217 m². Ce local se divise en 3 espaces : 1 zone accueil / magasin accessible avec une pote automatique vitrée, 1 zone bureau et 1 zone stockage bénéficiant d'un accès livraison sur rue.
Location Local mixte (stockage / bureaux) - Lyon 7ème (69007) - 1217 m²
Impôt Foncier : 8895 €/HT/an
Régime Fiscal : T.V.A. (20%)
Dépôt de garantie : 3 mois de loyer HT/HC
Honoraires : 20 % HT du loyer annuel HT/HC, à la charge du Preneur, payables à la signature du bail
Prestations :
Accessibilité:
Route A proximité immédiate du Boulevard Périphérique Laurent Bonnevay, de l'A7 et de l'A6
SNCF Gare de Jean Macé à 8 min à pied
Métro Métro ligne B station "Place Jean Jaurès"
Tram Tramway ligne T2 arrêt "Jean-Macé"
Bus Bus TCL lignes C4, C7, C12, C14, 34, 35 et 64
Les informations sur les risques auxquels ce bien est exposé sont disponibles sur le site Géorisques : www.georisques.gouv.fr
Au sein d'un parc d'activités clos dans le quartier de Gerland à Lyon 7ème, nous vous proposons à la location, un local d'une surface totale d'environ 1 217 m². Ce local se divise en 3 espaces : 1 zone accueil / magasin accessible avec une pote automatique vitrée, 1 zone bureau et 1 zone stockage bénéficiant d'un accès livraison sur rue.
Location Local mixte (stockage / bureaux) - Lyon 7ème (69007) - 1217 m²
| Étage | Type | Surfaces | Dispo | Loyer | Charges | Type de bailRév. annuelle |
|---|---|---|---|---|---|---|
| Activités | 1217 | 1er novembre 2025 | 73,95 HT/HC/m²/an | 3930 HT/an | Bail Dérogatoire (précaire)ILAT Indice des Loyers des Activités Tertiaires |
Impôt Foncier : 8895 €/HT/an
Régime Fiscal : T.V.A. (20%)
Dépôt de garantie : 3 mois de loyer HT/HC
Honoraires : 20 % HT du loyer annuel HT/HC, à la charge du Preneur, payables à la signature du bail
Prestations :
- Le local se divise en 3 espaces :
- 1 zone accueil / magasin accessible avec une pote automatique vitrée
- 1 zone bureau
- 1 zone stockage bénéficiant d'un accès livraison sur rue
Accessibilité:
Route A proximité immédiate du Boulevard Périphérique Laurent Bonnevay, de l'A7 et de l'A6
SNCF Gare de Jean Macé à 8 min à pied
Métro Métro ligne B station "Place Jean Jaurès"
Tram Tramway ligne T2 arrêt "Jean-Macé"
Bus Bus TCL lignes C4, C7, C12, C14, 34, 35 et 64
Les informations sur les risques auxquels ce bien est exposé sont disponibles sur le site Géorisques : www.georisques.gouv.fr
Voir plus
Afficher les consommations énergétiques
Localisation et transport aux alentours
Favoris
Exporter
Appeler
Contacter
Signaler cette annonce
