EVOLIS, votre partenaire en immobilier d’entreprise! Que vous soyez une entreprise, utilisateur de locaux professionnels, investisseur, ou propriétaire, EVOLIS met à votre service son expertise ...
En savoir plus

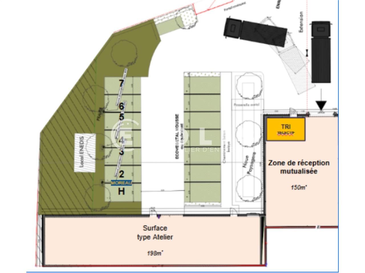
198 m²
HT HC
Location activité/entrepôt - 198 m²
Villeurbanne (69100)
Dernière mise à jour : Il y a 3 jours
EVOLIS vous propose une opportunité exceptionnelle de location de locaux d'activité à VILLEURBANNE, d'une superficie de 198 m² non divisibles. Ces espaces modernes et fonctionnels offrent une cuisine équipée avec réfrigérateurs, micro-ondes et éviers, ainsi qu'un accès à un espace coworking et des phone box pour répondre à tous vos besoins professionnels. Ne manquez pas cette occasion unique de trouver l'emplacement idéal pour votre entreprise.
Régime Fiscal : T.V.A.
Dépôt de garantie : 3 mois de loyer HT HC
Honoraires : 15% du loyer annuel HT HC à la charge du preneur
Information sur le Bail :
Salle de réunion (35m²) 250m² d'espaces communs (cuisine, accueil) + services (wifi, accès, gestion technique, réglementation,..) 4080 euros HT / mois > engagement de 12 mois
Prestations :
Accessibilité:
Bus Villeurbanne Bel Air (Ligne C17)
Tram Bel Air - Les Brosses (Ligne T3)
Les informations sur les risques auxquels ce bien est exposé sont disponibles sur le site Géorisques : www.georisques.gouv.fr
| Étage | Type | Surfaces | Dispo | Loyer | Charges | Type de bailRév. annuelle |
|---|---|---|---|---|---|---|
| RDC | Activités | 198 | Immédiate | 247,27 m²/an/ HT/HC | Bail dérogatoireILAT Indice des Loyers des Activités Tertiaires |
Régime Fiscal : T.V.A.
Dépôt de garantie : 3 mois de loyer HT HC
Honoraires : 15% du loyer annuel HT HC à la charge du preneur
Information sur le Bail :
Salle de réunion (35m²) 250m² d'espaces communs (cuisine, accueil) + services (wifi, accès, gestion technique, réglementation,..) 4080 euros HT / mois > engagement de 12 mois
Prestations :
- GENERAL :
- Inclus dans votre offre
- Les salle de réunion
- Accès aux canaux internes de Bel Air Camp
- Une cuisine équipée avec réfrigérateurs, micro-ondes et éviers
- Machine à café & distributeur à disposition
- Mobilier de bureau adapté
- Electricité & eau
- WiFi sécurisé et haut débit Bel Air
- Accès à l'espace coworking & phone box
- Domiciliation & Gestion du courrier
- Kit de bienvenue
- Reprographie NB & couleurs illimité
- En option
- Télécommande & clé supplémentaire
- IP dédiée
- Ligne téléphonique
- Casiers
- Parking voiture
- ACTIVITES :
- Bardage double peau
- Porte sectionnelle électrique
- Sol béton
- Faux plafond
- Pavé LED
- Sanitaires
- Climatisation
- Surface RDC : 198 m²
Accessibilité:
Bus Villeurbanne Bel Air (Ligne C17)
Tram Bel Air - Les Brosses (Ligne T3)
Les informations sur les risques auxquels ce bien est exposé sont disponibles sur le site Géorisques : www.georisques.gouv.fr
Voir plus
Afficher les consommations énergétiques
Localisation et transport aux alentours
Favoris
Exporter
Appeler
Contacter
Signaler cette annonce










