MCarré Conseil est une agence spécialiste de l'immobilier d’entreprise du sud de l’Île-de-France (en Essonne et dans le sud de la Seine-et-Marne et du Val-De-Marne). Elle vous accompagne à chaque é ...
En savoir plus

2 348 m²
HT HC
Location activité/entrepôt - 2348 m²
Morangis (91420)
Dernière mise à jour : Hier
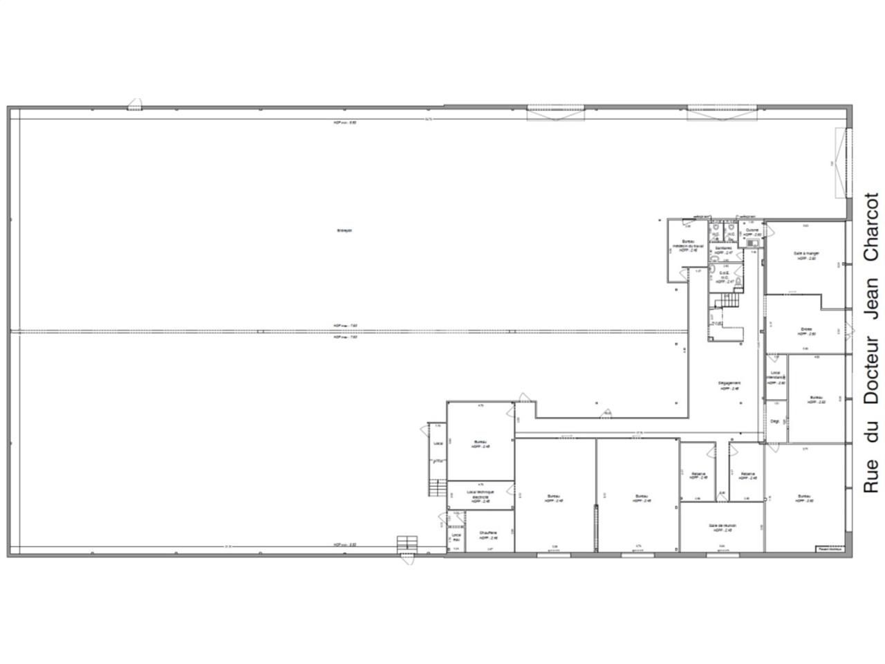
Sur un foncier de 3 425 m², nous vous proposons à la location et à l'acquisition un bâtiment indépendant d'une surface totale d'environ 2 348 m² à usage d'activité et bureaux.
Site grillagé et clôturé par 3 portails
Impôt Foncier : 31500 €/HT/an
Régime Fiscal : TVA
Dépôt de garantie : 3 mois de loyer HT/HC
Honoraires : 15% HT du loyer annuel HT HC
Taxe Bureau : 15928 €/m²/an
Information sur le Bail :
Loyer annuel : 294 000 euros HT/HC Prov. pour charges : 6 500 euros HT/an
Prestations :
Accessibilité:
Autoroute Autoroute A6
Autoroute Autoroute A10
Route Nationale 20
Route Nationale 7
RER RER C : Savigny sur Orge
Bus Le Montoire (Ligne 492)
Les informations sur les risques auxquels ce bien est exposé sont disponibles sur le site Géorisques : www.georisques.gouv.fr
Site grillagé et clôturé par 3 portails
| Étage | Type | Surfaces | Dispo | Loyer | Charges | Type de bailRév. annuelle |
|---|---|---|---|---|---|---|
| 1 | Bureaux | 456 | Indice ILAT | |||
| Rdc | Activités | 1436 | Indice ILAT | |||
| Rdc | Bureaux | 456 | Indice ILAT | |||
| Total Cellule | Activités | 2348 | Immédiate | 125,21 m²/an HT HC | 3/6/9 ansIndice ILAT |
Impôt Foncier : 31500 €/HT/an
Régime Fiscal : TVA
Dépôt de garantie : 3 mois de loyer HT/HC
Honoraires : 15% HT du loyer annuel HT HC
Taxe Bureau : 15928 €/m²/an
Information sur le Bail :
Loyer annuel : 294 000 euros HT/HC Prov. pour charges : 6 500 euros HT/an
Prestations :
- Bureaux cloisonnés et climatisés
- Volets roulants électriques
- Chauffage gaz dans les bureaux
- Locaux sociaux
- Vidéosurveillance sur site
- Immeuble indépendant
- Surface RDC : 1892 m²
- Surface terrain : 3425
- Haut. libre min. ss poutre : 5,5 m
- Haut. libre max. ss poutre : 7,1 m
- Nbr de portes à quai : 2
- Equipements entrepôts : 1 porte desservie par quai extérieur
Terrain clos et sécurisé
3 accès sur site - Chauffage : Aérothermes gaz
Accessibilité:
Autoroute Autoroute A6
Autoroute Autoroute A10
Route Nationale 20
Route Nationale 7
RER RER C : Savigny sur Orge
Bus Le Montoire (Ligne 492)
Les informations sur les risques auxquels ce bien est exposé sont disponibles sur le site Géorisques : www.georisques.gouv.fr
Voir plus
Afficher les consommations énergétiques
Localisation et transport aux alentours
Favoris
Exporter
Appeler
Contacter
Signaler cette annonce










