L’agence CBRE Lyon conseille et accompagne les chefs d’entreprise dans leurs projets immobiliers quels que soient leur taille et leur secteur d’activité. Spécialistes de la transaction de bureaux, ...
En savoir plus

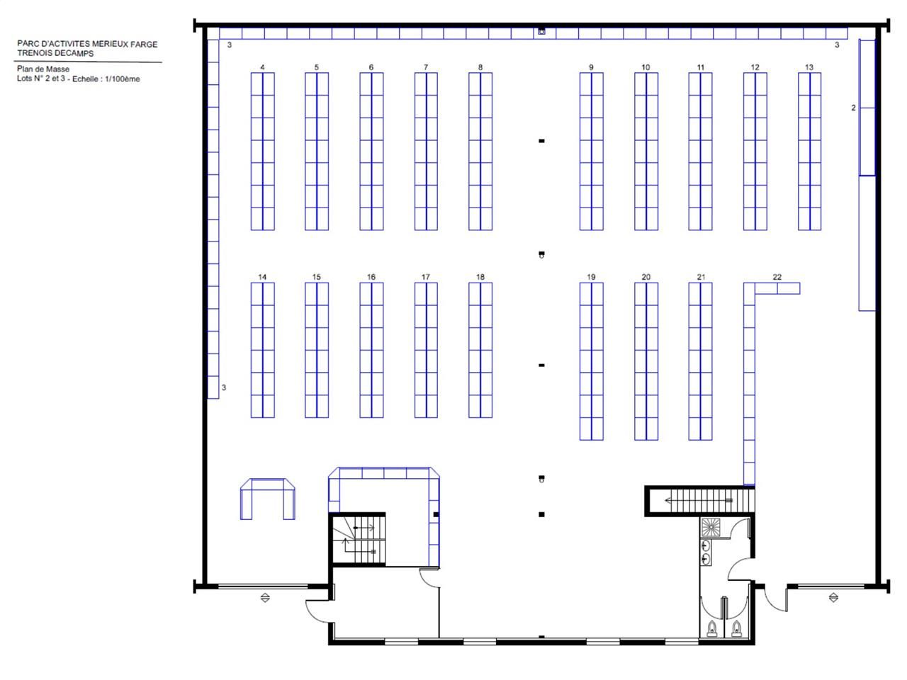
1 034 m²
HT HC
Location activité/entrepôt - 1034 m²
Lyon 7 (69007)
Dernière mise à jour : Aujourd'hui
CBRE Lyon vous invite à venir visiter des locaux disponibles à la location dans le 7ème arrondissement de Lyon. Ce bien est constitué de 2 lots réunis d'une surface d'emprise au sol de 989 m² et bénéficie d'un emplacement exceptionnel dans le quartier de Gerland.
Idéalement desservi par les les grands axes de circulation lyonnais, tels que l'avenue Leclerc, la rue André Bollier et l'avenue Jean Jaurès.
Régime Fiscal : T.V.A.
Dépôt de garantie : 3 mois de loyer HT/HC
Paiement Loyer : trimestriel
Honoraires : 20% HT du loyer annuel de base HT/HC à la charge du preneur
Information sur le Bail :
Possibilité de baisse de loyer si engagement de longue durée Le locataire actuel est en cours de bail mais libèrera les locaux dès qu'un accord sera trouvé avec un nouveau Preneur.
Prestations :
Accessibilité:
Metro Métro : Ligne B Charpennes/Stade de Gerland
Autoroute Accès : Boulevard périphérique
Bus Bus : Lignes 32-47-4 et 96
Route Route : Avenue Berthelot
Les informations sur les risques auxquels ce bien est exposé sont disponibles sur le site Géorisques : www.georisques.gouv.fr
Idéalement desservi par les les grands axes de circulation lyonnais, tels que l'avenue Leclerc, la rue André Bollier et l'avenue Jean Jaurès.
| Étage | Type | Surfaces | Dispo | Loyer | Charges | Type de bailRév. annuelle |
|---|---|---|---|---|---|---|
| RDC | Activités | 798 | Après accord | Indice ILAT | ||
| MEZ | Activités | 120 | Après accord | Indice ILAT | ||
| 1 | Bureaux | 116 | Après accord | Indice ILAT | ||
| 3 | Activités | 1034 | Après accord | 116,05 m²/an HT HC | 3-6-9 ansIndice ILAT |
Régime Fiscal : T.V.A.
Dépôt de garantie : 3 mois de loyer HT/HC
Paiement Loyer : trimestriel
Honoraires : 20% HT du loyer annuel de base HT/HC à la charge du preneur
Information sur le Bail :
Possibilité de baisse de loyer si engagement de longue durée Le locataire actuel est en cours de bail mais libèrera les locaux dès qu'un accord sera trouvé avec un nouveau Preneur.
Prestations :
- Les surfaces utiles développées de 975,40 m²
- 11 emplacements de parking
- Surface RDC : 798 m²
- Surface terrain : 0
Accessibilité:
Metro Métro : Ligne B Charpennes/Stade de Gerland
Autoroute Accès : Boulevard périphérique
Bus Bus : Lignes 32-47-4 et 96
Route Route : Avenue Berthelot
Les informations sur les risques auxquels ce bien est exposé sont disponibles sur le site Géorisques : www.georisques.gouv.fr
Voir plus
Afficher les consommations énergétiques
Favoris
Exporter
Appeler
Contacter
Signaler cette annonce
