EVOLIS, votre partenaire en immobilier d’entreprise! Que vous soyez une entreprise, utilisateur de locaux professionnels, investisseur, ou propriétaire, EVOLIS met à votre service son expertise ...
En savoir plus

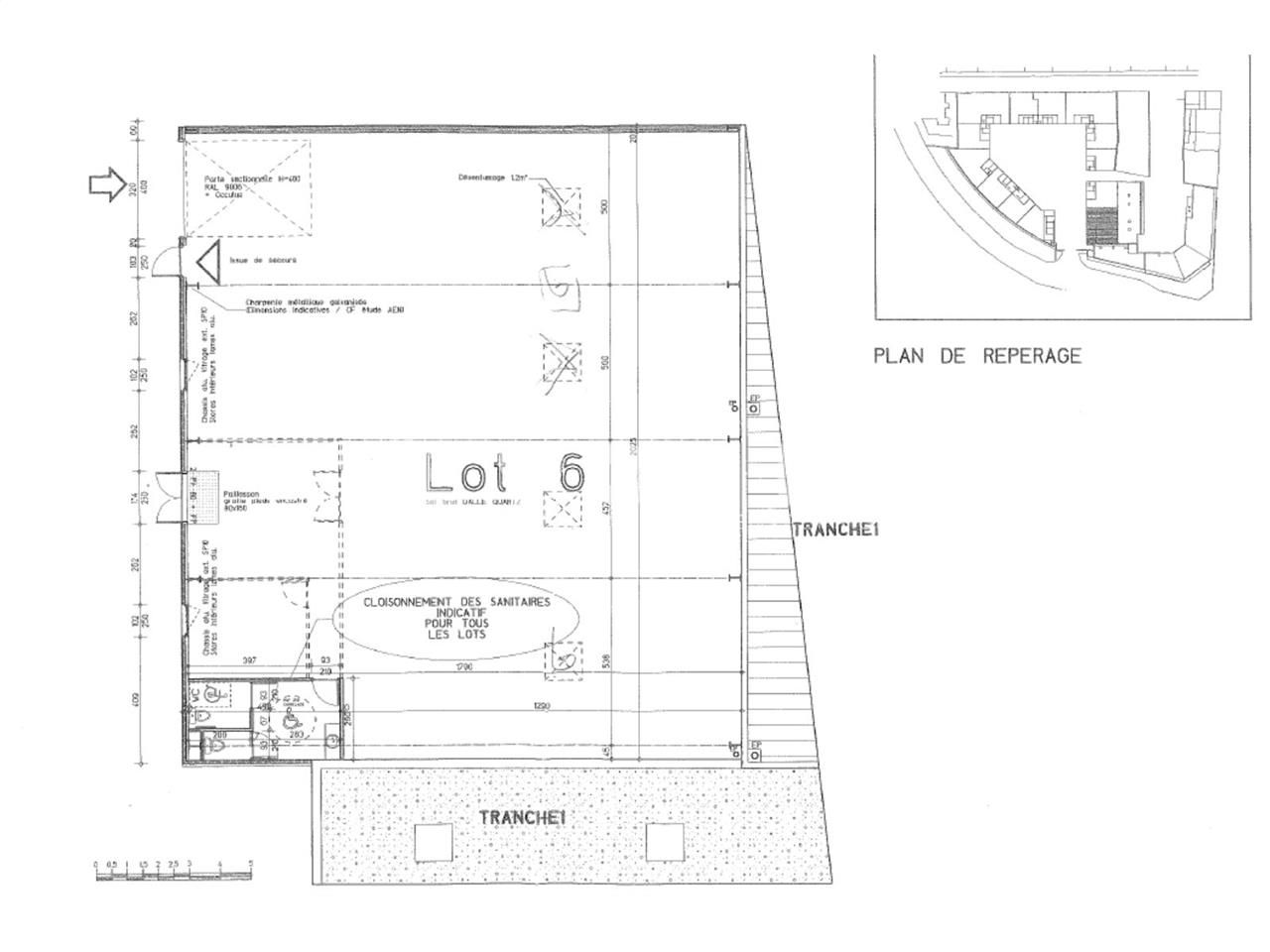
364 m²
HT HC
Location activité/entrepôt - 364 m²
Lyon 7 (69007)
Dernière mise à jour : Il y a 2 jours
EVOLIS vous propose à la location une cellule d'activité de 364 m² non divisibles au coeur de Lyon 7eme arrondissement.
Emplacement idéal, ce local dispose de 4 places de parking.
Entièrement curé par l'ancien locataire, ce local disponible immédiatement saura répondre à vos besoins professionnels. Il ne reste plus qu'à l'aménager.
Régime Fiscal : T.V.A.
Dépôt de garantie : 3 mois de loyer HT HC
Honoraires : 30% du loyer annuel HT HC à la charge du preneur
Prestations :
Accessibilité:
Bus Benoit Bernard (Ligne C12, Ligne 35)
Tram Route de Vienne (Ligne T2), Jet d'Eau - M. France (Ligne T4)
SNCF Lyon-Guillotière (France)
Les informations sur les risques auxquels ce bien est exposé sont disponibles sur le site Géorisques : www.georisques.gouv.fr
Emplacement idéal, ce local dispose de 4 places de parking.
Entièrement curé par l'ancien locataire, ce local disponible immédiatement saura répondre à vos besoins professionnels. Il ne reste plus qu'à l'aménager.
| Étage | Type | Surfaces | Dispo | Loyer | Charges | Type de bailRév. annuelle |
|---|---|---|---|---|---|---|
| RDC | Activités | 364 | Immédiate | 8000 /an HT | Bail commercial 3-6-9 ansILAT Indice des Loyers des Activités Tertiaires | |
| Parkings | Immédiate | Bail commercial 3-6-9 ansILAT Indice des Loyers des Activités Tertiaires |
Régime Fiscal : T.V.A.
Dépôt de garantie : 3 mois de loyer HT HC
Honoraires : 30% du loyer annuel HT HC à la charge du preneur
Prestations :
- Façade en bardage
- Charpente métallique galvanisée
- Skydomes
- Trappes de désenfumage
- Portail d'accès
- Accès véhicules légers
- Gardienne
- Site sécurisé 24h/24h
- Carrelage
- Dallage quartz dans la partie activité
- Porte sectionnelle de plain-pied : 1
- Dimensions porte : 4 (H) x4 (L) m
- Tarif bleu
- Surface RDC : 364 m²
Accessibilité:
Bus Benoit Bernard (Ligne C12, Ligne 35)
Tram Route de Vienne (Ligne T2), Jet d'Eau - M. France (Ligne T4)
SNCF Lyon-Guillotière (France)
Les informations sur les risques auxquels ce bien est exposé sont disponibles sur le site Géorisques : www.georisques.gouv.fr
Voir plus
Afficher les consommations énergétiques
Localisation et transport aux alentours
Favoris
Exporter
Appeler
Contacter
Signaler cette annonce
