MALSH Realty accompagne les entreprises dans leurs projets immobiliers, qu’il s’agisse de locaux d’activités, de bureaux, de commerces, d’entrepôts ou de terrains. L’agence intervient aussi bien au ...
En savoir plus

884 m²
HT HC
Location activité/entrepôt - 884 m²
Lyon 7 (69007)
Dernière mise à jour : Il y a 2 jours
Local d'Activités indépendant à LYON 7 - A LOUER - 884 m²
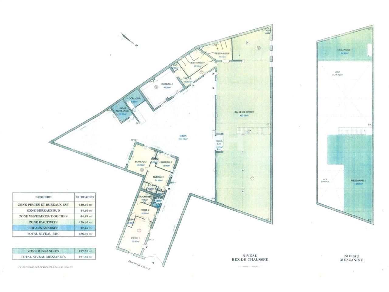
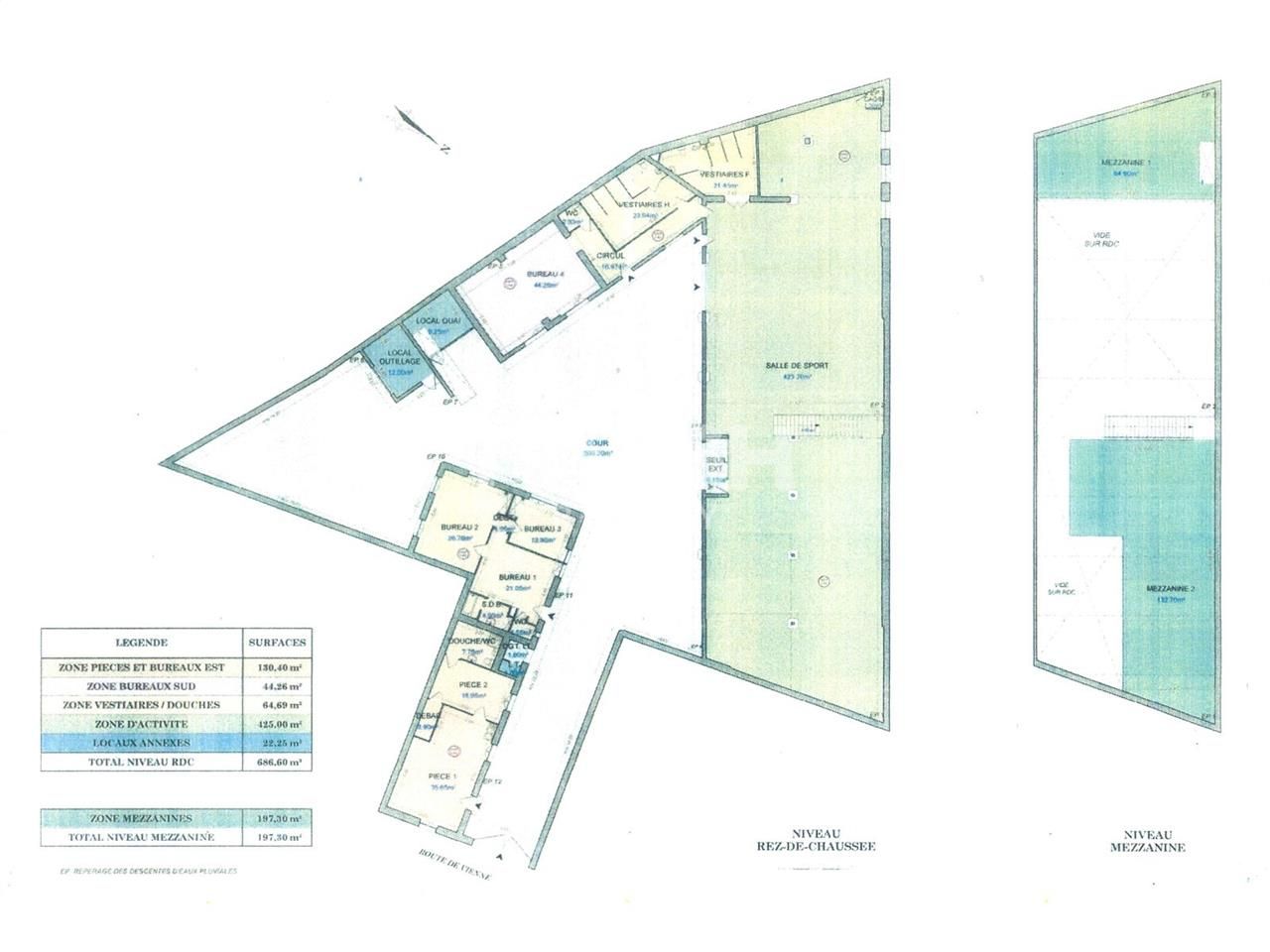
Au coeur du 7ème arrondissement de Lyon, sur un terrain indépendant de 1 300 m², nous vous proposons à la location, un bâtiment d'activités d'une surface totale d'environ 884 m² comprenant 447 m² d'activités, 175 m² de bureaux, 65 m² de locaux sociaux et une mezzanine de 197 m². Bien très rare, pouvant accueillir divers types d'activités. Site indépendant avec cour extérieure privative.
Location Local d'Activités indépendant - Lyon 7 (69007) - 884 m²
Régime Fiscal : T.V.A. (20%)
Dépôt de garantie : 3 mois de loyer HT/HC
Honoraires : 20 % HT du loyer annuel HT/HC, à la charge du Preneur, payables à la signature du bail
Information sur le Bail :
Les charges comprennent les frais d'entretien, la taxe foncière et l'assurance.
Prestations :
Accessibilité:
SNCF Gare de Jean Macé à 10 min à pied
Tram Tramway ligne T2 arrêt "Route de Vienne"
Bus Bus TCL lignes C7, C12 et 35
Métro Métro ligne B station "Jean Macé" à 10 min à pied
Les informations sur les risques auxquels ce bien est exposé sont disponibles sur le site Géorisques : www.georisques.gouv.fr
Au coeur du 7ème arrondissement de Lyon, sur un terrain indépendant de 1 300 m², nous vous proposons à la location, un bâtiment d'activités d'une surface totale d'environ 884 m² comprenant 447 m² d'activités, 175 m² de bureaux, 65 m² de locaux sociaux et une mezzanine de 197 m². Bien très rare, pouvant accueillir divers types d'activités. Site indépendant avec cour extérieure privative.
Location Local d'Activités indépendant - Lyon 7 (69007) - 884 m²
| Étage | Type | Surfaces | Dispo | Loyer | Charges | Type de bailRév. annuelle |
|---|---|---|---|---|---|---|
| Mezzanine | 197 | ILAT Indice des Loyers des Activités Tertiaires | ||||
| RDC | Activités | 447 | ILAT Indice des Loyers des Activités Tertiaires | |||
| RDC | Bureaux | 175 | ILAT Indice des Loyers des Activités Tertiaires | |||
| RDC | Locaux sociaux | 65 | ILAT Indice des Loyers des Activités Tertiaires | |||
| Total Cellule | Activités | 884 | Immédiate | 106,33 HT/HC/m²/an | 9660 HT/an | commercial 3-6-9 ansILAT Indice des Loyers des Activités Tertiaires |
Régime Fiscal : T.V.A. (20%)
Dépôt de garantie : 3 mois de loyer HT/HC
Honoraires : 20 % HT du loyer annuel HT/HC, à la charge du Preneur, payables à la signature du bail
Information sur le Bail :
Les charges comprennent les frais d'entretien, la taxe foncière et l'assurance.
Prestations :
- Accès / Extérieurs :
- Accès de plain-pied
- 2 portes sectionnelles
- Quai poids lourd pouvant être remis en service
- Cour extérieure privative
- Parkings extérieurs
- Activité / Entrepôt :
- Grande hauteur sous plafond : 7 m sous fermes
- Possibilité d'exploitation ou de stockage sur mezzanine
- Bureaux / Locaux sociaux :
- Bureaux équipés à rafraîchir
- Faux-plafonds avec dalles
- Différentes pièces modulables pouvant être utilisées en bureaux ou locaux sociaux
- Sanitaires / Vestiaires :
- Vestiaires et douches H/F tout équipés
- Locaux annexes :
- Cagibis, locaux techniques et espaces additionnels fonctionnels
- Immeuble indépendant
- Surface terrain : 1300
Accessibilité:
SNCF Gare de Jean Macé à 10 min à pied
Tram Tramway ligne T2 arrêt "Route de Vienne"
Bus Bus TCL lignes C7, C12 et 35
Métro Métro ligne B station "Jean Macé" à 10 min à pied
Les informations sur les risques auxquels ce bien est exposé sont disponibles sur le site Géorisques : www.georisques.gouv.fr
Voir plus
Afficher les consommations énergétiques
Localisation et transport aux alentours
Favoris
Exporter
Appeler
Contacter
Signaler cette annonce










