EVOLIS, votre partenaire en immobilier d’entreprise! Que vous soyez une entreprise, utilisateur de locaux professionnels, investisseur, ou propriétaire, EVOLIS met à votre service son expertise ...
En savoir plus

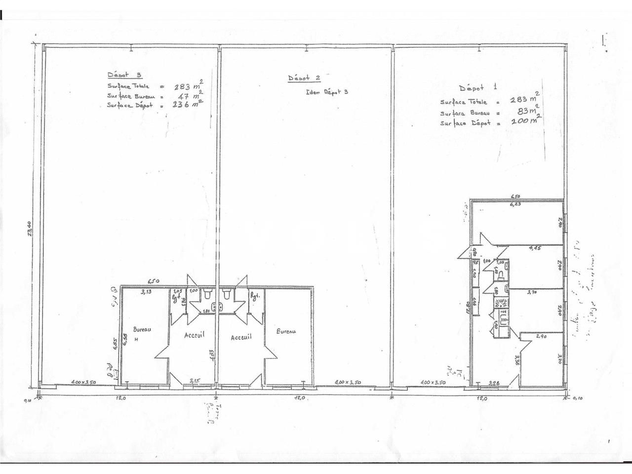
566 m² divisible dès 283 m²
HT HC
Location activité/entrepôt - 566 m²
Jonage (69330)
Dernière mise à jour : Il y a 3 mois
À louer - Local d'activité de 566 m² divisible à partir de 283 m² - Jonage
EVOLIS vous propose à la location deux lots d'activité d'environ 283 m² chacun, situés à Jonage, au coeur d'un environnement dynamique et facilement accessible.
Les lots peuvent être loués séparément ou réunis pour une surface totale de 566 m².Les ateliers sont équipés d'une couverture en bac acier isolé, assurant une bonne performance thermique. Le chauffage est assuré par une chaudière fioul. La résistance au sol est de 1 tonne par mètre carré, convenant parfaitement aux activités nécessitant un sol porteur. Chaque lot dispose d'une porte sectionnelle motorisée de 3,5 mètres de large sur 3 mètres de haut, facilitant l'accès aux espaces de production ou de stockage.Les bureaux en rez-de-chaussée sont composés d'espaces cloisonnés permettant une organisation efficace et adaptable. Le chauffage est assuré par convecteurs électriques.
Impôt Foncier : 2,75 €/m²/an
Régime Fiscal : T.V.A.
Dépôt de garantie : 3 mois de loyer HT HC
Honoraires : 20% HT du loyer annuel HT HC à la charge du preneur
Prestations :
Accessibilité:
Bus Louis Renault (Ligne ZI2)
Tram T3
Route D302
Autoroute A42
Les informations sur les risques auxquels ce bien est exposé sont disponibles sur le site Géorisques : www.georisques.gouv.fr
EVOLIS vous propose à la location deux lots d'activité d'environ 283 m² chacun, situés à Jonage, au coeur d'un environnement dynamique et facilement accessible.
Les lots peuvent être loués séparément ou réunis pour une surface totale de 566 m².Les ateliers sont équipés d'une couverture en bac acier isolé, assurant une bonne performance thermique. Le chauffage est assuré par une chaudière fioul. La résistance au sol est de 1 tonne par mètre carré, convenant parfaitement aux activités nécessitant un sol porteur. Chaque lot dispose d'une porte sectionnelle motorisée de 3,5 mètres de large sur 3 mètres de haut, facilitant l'accès aux espaces de production ou de stockage.Les bureaux en rez-de-chaussée sont composés d'espaces cloisonnés permettant une organisation efficace et adaptable. Le chauffage est assuré par convecteurs électriques.
| Étage | Type | Surfaces | Dispo | Loyer | Charges | Type de bailRév. annuelle |
|---|---|---|---|---|---|---|
| RDC | Activités | 240 | Bail commercial 3-6-9 ansILAT Indice des Loyers des Activités Tertiaires | |||
| RDC | Bureaux | 43 | Bail commercial 3-6-9 ansILAT Indice des Loyers des Activités Tertiaires | |||
| Total Cellule LOT 1 | Activités | 283 | Immédiate | 93,63 m²/an/ HT/HC | 6 m²/an HT | Bail commercial 3-6-9 ansILAT Indice des Loyers des Activités Tertiaires |
| RDC | Activités | 240 | Bail commercial 3-6-9 ansILAT Indice des Loyers des Activités Tertiaires | |||
| RDC | Bureaux | 43 | Bail commercial 3-6-9 ansILAT Indice des Loyers des Activités Tertiaires | |||
| Total Cellule LOT 2 | Activités | 283 | Immédiate | 93,63 m²/an/ HT/HC | 6 m²/an HT | Bail commercial 3-6-9 ansILAT Indice des Loyers des Activités Tertiaires |
Impôt Foncier : 2,75 €/m²/an
Régime Fiscal : T.V.A.
Dépôt de garantie : 3 mois de loyer HT HC
Honoraires : 20% HT du loyer annuel HT HC à la charge du preneur
Prestations :
- Accès : route
- Atelier avec couverture en bac acier isolé
- Chaudière fioul
- Résistance au sol : 1 tonne/m²
- Porte sectionnelle motorisée (dimensions : 3,5 x 3 m)
- Bureaux rdc cloisonnés
- Chauffage par convecteurs électriques
- ETAT DES LOTS : Etat d'usage
- Surface RDC : 566 m²
Accessibilité:
Bus Louis Renault (Ligne ZI2)
Tram T3
Route D302
Autoroute A42
Les informations sur les risques auxquels ce bien est exposé sont disponibles sur le site Géorisques : www.georisques.gouv.fr
Voir plus
Afficher les consommations énergétiques
Localisation et transport aux alentours
Favoris
Exporter
Appeler
Contacter
Signaler cette annonce
