L’agence CBRE Bordeaux conseille et accompagne les chefs d’entreprise dans leurs projets immobiliers quels que soient leur taille et leur secteur d’activité. Spécialistes de la transaction de burea ...
En savoir plus

1 019 m² divisible dès 103 m²
HT HC
Location activité/entrepôt - 1019 m²
Bassens (33530)
Dernière mise à jour : Il y a 1 mois
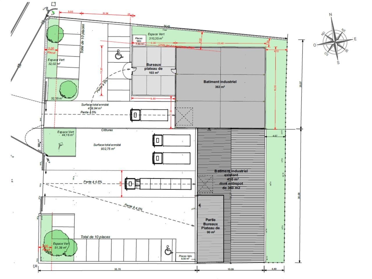
A LOUER, local d'activités / entrepôt réhabilité à neuf à Bassens, au coeur de la zone industrialo portuaire. Cet ensemble immobilier de 1 000m² environ est à louer d'un seul tenant ou à la division à partir de 450 m². Il bénéficie d'un terrain de 2 881 m2. Le site se compose d'une partie entrepôt de 800 m² environ et de 200 m² de bureaux avec 20 places de stationnement, sur un foncier de 2 800 m² environ, clos et sécurisé. Disponibilité 1e trimestre 2026. Opportunité rare avec quai, idéale pour activités logistiques, artisanales/ industrielles ou de stockage.
Impôt Foncier : 7000 €/an HT
Régime Fiscal : T.V.A.
Dépôt de garantie : 3 mois de loyer HT/HC
Paiement Loyer : trimestriel
Honoraires : 20% HT du loyer annuel HT HC à la charge du preneur.
Information sur le Bail :
Charges : 8 000 euros /an HT
Prestations :
Accessibilité:
Autoroute Accès A10 à 3 km
Route Rocade sortie n° 2 à 2,5 km
Route Accès N89 à 5,5 km
Aeroport Aéroport de Bordeaux Mérignac à 20 km
Les informations sur les risques auxquels ce bien est exposé sont disponibles sur le site Géorisques : www.georisques.gouv.fr
| Étage | Type | Surfaces | Dispo | Loyer | Charges | Type de bailRév. annuelle |
|---|---|---|---|---|---|---|
| RDC | Entrepôts | 450 | Février 2026 | 100 m²/an HT HC | 3-6-9 ansIndice des Loyers Commerciaux | |
| RDC | Entrepôts | 363 | Février 2026 | 100 m²/an HT HC | 3-6-9 ansIndice des Loyers Commerciaux | |
| RDC | Bureaux | 103 | Février 2026 | 100 m²/an HT HC | 3-6-9 ansIndice des Loyers Commerciaux | |
| 1 | Bureaux | 103 | Février 2026 | 100 m²/an HT HC | 3-6-9 ansIndice des Loyers Commerciaux |
Impôt Foncier : 7000 €/an HT
Régime Fiscal : T.V.A.
Dépôt de garantie : 3 mois de loyer HT/HC
Paiement Loyer : trimestriel
Honoraires : 20% HT du loyer annuel HT HC à la charge du preneur.
Information sur le Bail :
Charges : 8 000 euros /an HT
Prestations :
- 1 quai et 1 porte sectionnelle de plain-pied (possible de faire évoluer en 2 quais ou 2 sectionnelles).
- Hauteur sous poutre comprise entre 4,9 m et 6,5 m
- Bureaux en RDC et R+1 climatisés
- Dalle béton
- Cour camion en enrobé devant le bâtiment
- Parkings : 20 places
- Surface RDC : 916 m²
- Surface terrain : 2881
Accessibilité:
Autoroute Accès A10 à 3 km
Route Rocade sortie n° 2 à 2,5 km
Route Accès N89 à 5,5 km
Aeroport Aéroport de Bordeaux Mérignac à 20 km
Les informations sur les risques auxquels ce bien est exposé sont disponibles sur le site Géorisques : www.georisques.gouv.fr
Voir plus
Afficher les consommations énergétiques
Favoris
Exporter
Appeler
Contacter
Signaler cette annonce










