Leader mondial des services dédiés à l'immobilier d'entreprise, Cushman & Wakefield accompagne ses clients dans la transformation de leurs modes de travail, de consommation et de vie. Nos 43 000 co ...
En savoir plus

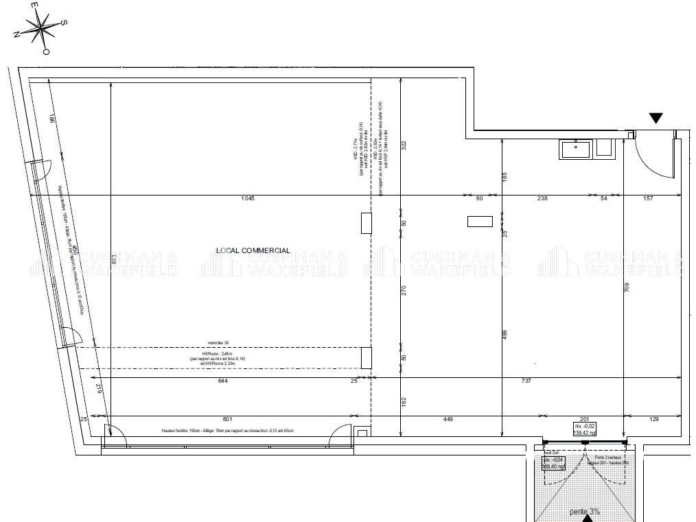
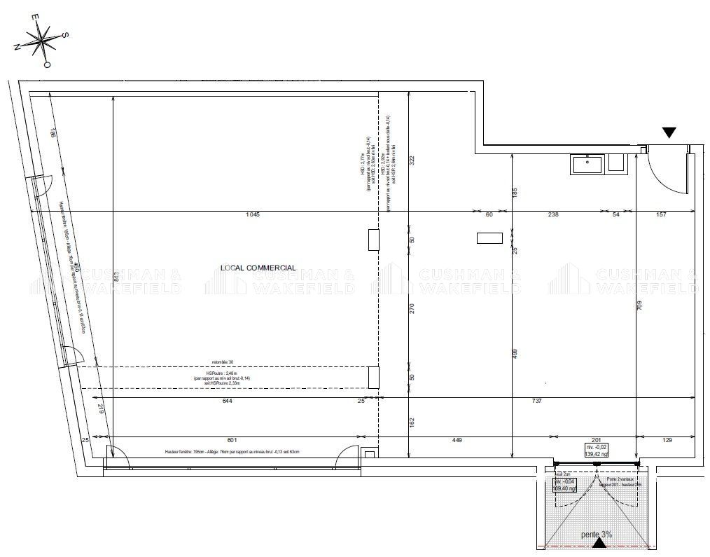
117 m²
Local commercial à vendre - 117 m²
Strasbourg (67000)
Dernière mise à jour : Il y a 3 jours
Local professionnel / commercial neuf en première utilisation localisé en rez-de-chaussée d'un immeuble d'habitation. Disponible à la vente, il est idéalement situé dans la ZAC DANUBE, entre le coeur historique de Strasbourg et le quartier résidentiel dynamique de Neudorf Locaux disponibles au sein de la résidence QUINTESSENCE, située entre le coeur historique de Strasbourg et le quartier résidentiel de Neudorf. La ZAC (Zone d'Aménagement Concerté) Danube à Strasbourg est un quartier moderne concu pour renforcer l'attractivité de la ville avec des logements, des bureaux et des commerces. Accessible facilement par les transports en commun, la ZAC Danube est desservie par plusieurs lignes de bus et de tram, facilitant ainsi les déplacements vers le centre-ville et d'autres quartiers. Les résidents profitent également de nombreux services (proximité des écoles, espaces et centres commerciaux) enrichissant la vie quotidienne dans le quartier. N'hésitez pas à nous contacter ! Cushman & Wakefield Strasbourg et plus particulièrement son département bureaux, est à votre entière disposition pour vous apporter plus de précisions concernant ces locaux vendre Local professionnel / commercial neuf en première utilisation disposant d'un accès direct depuis l'extérieur et par les communs de l'immeuble d'habitation. Livraison brut de béton - Fluides en attente en limite intérieure du lot. Nombreuses attentes pour arrivée / évacuation d'eau permettant d'implanter des points d'eau. Locaux parfaitement adaptés à la réception de public (PMR et ERP) et plus particulièrement en cabinets médicaux ou paramédicaux. Grandes baies vitrées Sanitaires en attente Parking(s) : 1 parking PMR en R-1 avec attente sécurisé pour la mise en place d'une alimentation pour véhicule électrique / hybride Local à vélos commun dans l'immeuble Bus : Ligne 30 arrêt Danube Tram : ligne C et E arrêt Winston Churchill Accès routier : A4 et A35 Pistes cyclables tant sur la route du Rhin qu'au bord du canal
Voir plus
Afficher les consommations énergétiques
Localisation et transport aux alentours
- Winston Churchill500m (8min à pied)CE
Favoris
Exporter
Appeler
Contacter
Signaler cette annonce










