Leader mondial des services dédiés à l'immobilier d'entreprise, Cushman & Wakefield accompagne ses clients dans la transformation de leurs modes de travail, de consommation et de vie. Nos 43 000 co ...
En savoir plus

125 m²
HT HC
Location local commercial - 125 m²
Strasbourg (67000)
Dernière mise à jour : Il y a 3 jours
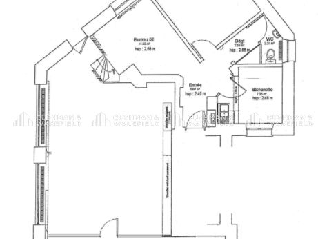
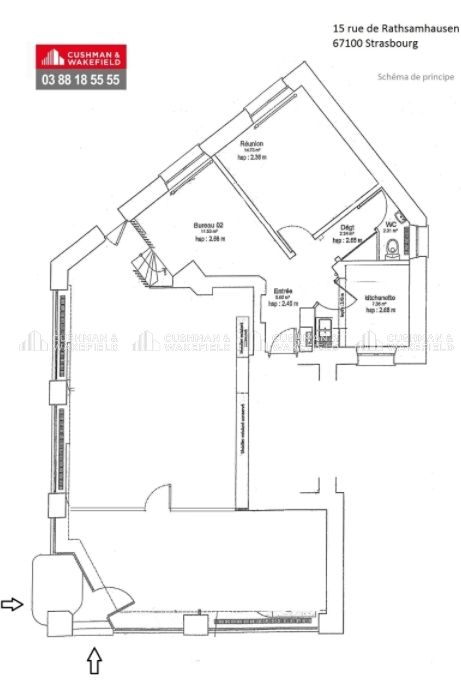
Local commercial en pied d'immeuble situé en angle de rue avec de larges vitrines au coeur de Neudorf, à proximité de la place du marché, accessibilité pour tous Partie commerciale - Accessible PMR (personne à mobilité réduite) . Murs peints . Sol thermoplastique, moquette dans la partie administrative . Faux plafond avec luminaires LED . 4 grandes vitrines - Grille électrique devant l'entrée directe . Chauffage collectif au gaz - climatisation . Double vitrage avec volet . Porte Blindée d'accès aux parties communes . VMC dans l'ensemble des surfaces Immeuble fibré et cblé Cloisonnement . RDC de plain pied : 2 espaces de vente d'une surface totale d'environ 70/75 m² . RDC Surélevé : 1 cuisine - 1 sanitaire - 1 bureau Tram : lignes E/C/D Bus : Ligne 14/24 ou 11/21 Accès routier : à proximité de la place de l'étoile
Voir plus
Afficher les consommations énergétiques
Localisation et transport aux alentours
- Landsberg217m (3min à pied)CDE
Favoris
Exporter
Appeler
Contacter
Signaler cette annonce










