BNP Paribas Immobilier à Nancy accompagne ses clients dans tous leurs projets immobiliers à Nancy et sa région. Présente dans la métropole depuis près de 40 ans, notre équipe possède une connaissan ...
En savoir plus

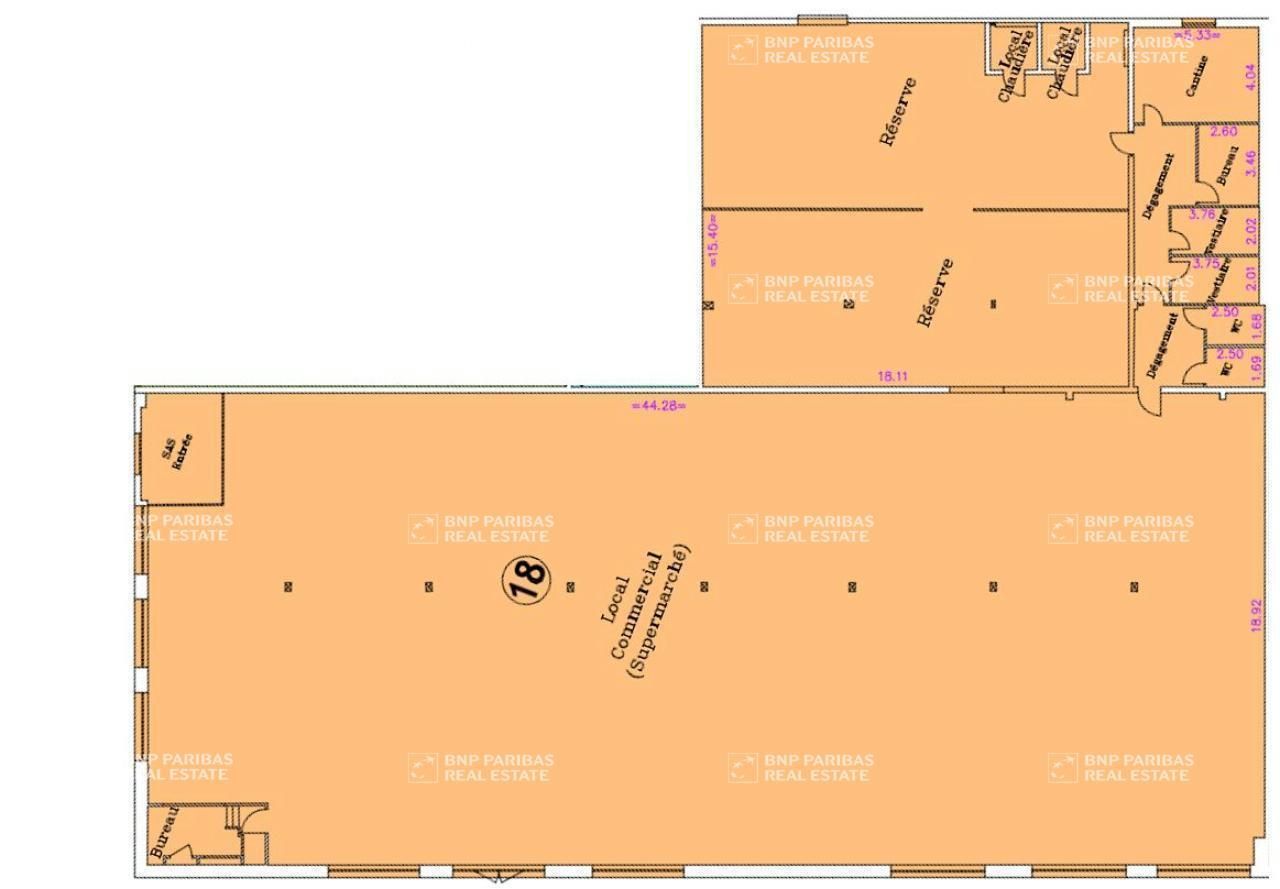
Location local commercial - 2026 m²
LOCATION - 2026 m² environ - COMMERCE - NANCY (54)
Nous vous proposons à la location
Une cellule commerciale de 1308 m² environ :
Espace de vente de 915 m² environ
Réserve de 400 m² environ
Parking commun avec les cellules voisines
Chauffage : Aérothermes
Raccordé au réseau urbain
Accès PMR
Aucune présence d'amiante constatée
Disponible immédiatement
Infos charges :
23 075,00 € annuelles comprenant : Eau froide, honoraires techniques administratif, assurances des murs, charges zone, TEOM et Taxe foncière (11 700,00 €)
Une cellule commerciale de 718 m² environ :
Espace ouvert de 613 m² environ
Mezzanine de 105 m² environ
Parking commun avec les cellules voisines
Climatisation
Raccordé au réseau urbain
Accès PMR- ERP
Disponible immédiatement
Infos charges
12 250,00 € annuelles comprenant : Eau froide, honoraires techniques administratif, assurances des murs, charges zone, TEOM et Taxe foncière (7 000 €)
Accessibilité
- Axes autoroutiers : A31, A33 & A330
- Gare SNCF à 10 min
- Gare Lorraine TGV à 30 min
- Bus :
- Trolley : arrêt Saint-Georges
- Ligne 13, 11, 15, T3
Conseiller en Immobilier d'Entreprise, BNP PARIBAS REAL ESTATE ADVISORY vous accompagne dans votre recherche de bureaux, locaux d'activité et entrepôts logistiques en Meurthe-et-Moselle, à la location et à la vente.
Disponibilité: ImmédiateHonoraires: 15% HT du loyer HT/HC. à la signature du bail
| Fiche technique du bien | |
|---|---|
| Gare | Oui |
| Etat de l'immeuble | Etat d'usage |
| Immeuble indépendant | Oui |
