MALSH Realty accompagne les entreprises dans leurs projets immobiliers, qu’il s’agisse de locaux d’activités, de bureaux, de commerces, d’entrepôts ou de terrains. L’agence intervient aussi bien au ...
En savoir plus

968 m²
HT HC
Location local commercial - 968 m²
Lyon 7 (69007)
Dernière mise à jour : Il y a 2 jours
A LOUER - Local commercial 970 m² - LYON 7
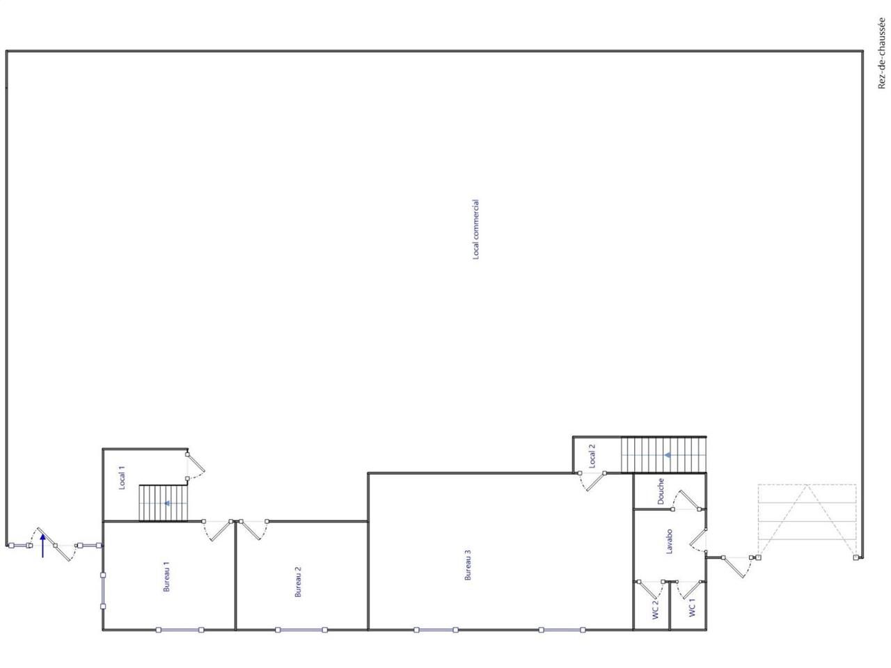
Nous vous proposons à la location un local d'une surface totale d'environ 970 m², situé au sein du Parc Mérieux Farge. Il bénéficie d'environ 670 m² en RDC, auxquels s'ajoutent plusieurs espaces bureaux, des sanitaires et un espace cuisine, offrant des conditions de travail fonctionnelles et confortables.
A LOUER - Local commercial 970 m² - LYON 7
Impôt Foncier : 6790 €/HT/an
Régime Fiscal : T.V.A. (20%)
Dépôt de garantie : 3 mois de loyer HT/HC
Honoraires : 20 % HT du loyer annuel HT/HC, à la charge du preneur, payables à la signature du bail
Prestations :
Accessibilité:
Autoroute Accès immédiat au Boulevard Périphérique Laurent Bonnevay, à l'A6 et à l'A7
Métro Métro ligne B station "Place Jean-Jaurès"
Bus Bus TCL lignes C7, 34, 60, 63 et 120
Les informations sur les risques auxquels ce bien est exposé sont disponibles sur le site Géorisques : www.georisques.gouv.fr
Nous vous proposons à la location un local d'une surface totale d'environ 970 m², situé au sein du Parc Mérieux Farge. Il bénéficie d'environ 670 m² en RDC, auxquels s'ajoutent plusieurs espaces bureaux, des sanitaires et un espace cuisine, offrant des conditions de travail fonctionnelles et confortables.
A LOUER - Local commercial 970 m² - LYON 7
| Étage | Type | Surfaces | Dispo | Loyer | Charges | Type de bailRév. annuelle |
|---|---|---|---|---|---|---|
| R+1 | Bureaux | 118 | ILC Indice des Loyers Commerciaux | |||
| R+1 | Mezzanine | 102 | ILC Indice des Loyers Commerciaux | |||
| RDC | Locaux Commerciaux | 666,66 | ILC Indice des Loyers Commerciaux | |||
| RDC | Bureaux | 81 | ILC Indice des Loyers Commerciaux | |||
| Total Cellule | Locaux Commerciaux | 967,66 | Après accord | 124,01 HT/HC/m²/an | 14872 HT/an | commercial 3-6-9 ansILC Indice des Loyers Commerciaux |
Impôt Foncier : 6790 €/HT/an
Régime Fiscal : T.V.A. (20%)
Dépôt de garantie : 3 mois de loyer HT/HC
Honoraires : 20 % HT du loyer annuel HT/HC, à la charge du preneur, payables à la signature du bail
Prestations :
- Chauffage radiant Gaz
- Climatisation réversible
- Cuisine -Vestiaires
- 5 Bureaux - 2 Salle de réunion
- 11 places de parking
- Hauteur sous poutres (RDC) : 6,25m
- Hauteur sous poutres (Mezzanine) : 3,385m
Accessibilité:
Autoroute Accès immédiat au Boulevard Périphérique Laurent Bonnevay, à l'A6 et à l'A7
Métro Métro ligne B station "Place Jean-Jaurès"
Bus Bus TCL lignes C7, 34, 60, 63 et 120
Les informations sur les risques auxquels ce bien est exposé sont disponibles sur le site Géorisques : www.georisques.gouv.fr
Voir plus
Afficher les consommations énergétiques
Localisation et transport aux alentours
Favoris
Exporter
Appeler
Contacter
Signaler cette annonce










