ImoseoPro est un cabinet de conseil en immobilier d'entreprise spécialiste de l'ensemble de l'agglomération bordelaise du bassin d'Arcachon ainsi que de la côte basque. Les collaborateurs d'ImoseoP ...
En savoir plus

169 m²
HT HC
Location activité/entrepôt - 169 m²
Mios (33380)
Dernière mise à jour : Il y a 2 jours
Entrepôt à louer Bassin d'Arcachon Entrepôt à louer MIOS / 169m2
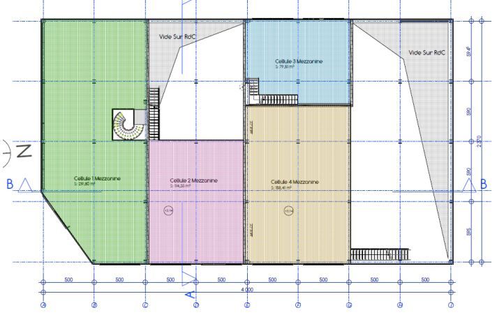
Situé dans le parc d'activités de Mios en bordure de l'A 63 et à proximité de l'A 660, entrepôt d'environ 89 m2 avec une rochelle d'environ 80 m2. HSP 6.5 M ; sol brut de béton, fluides en attentes (EAU, PTT, EDF) ; portes sectionnelles 3 x 3 M ; Portes vitrées aluminium en facade et menuiseries aluminium en mezzanines. Parking privatif d'environ 4 places.
Tableau des surfaces:
Aspects financiers :
Indexation annuelle :
Dépôt de garantie : N/C
Régime fiscal location :
Taxe foncière : 1000 €
Situé dans le parc d'activités de Mios en bordure de l'A 63 et à proximité de l'A 660, entrepôt d'environ 89 m2 avec une rochelle d'environ 80 m2. HSP 6.5 M ; sol brut de béton, fluides en attentes (EAU, PTT, EDF) ; portes sectionnelles 3 x 3 M ; Portes vitrées aluminium en facade et menuiseries aluminium en mezzanines. Parking privatif d'environ 4 places.
Tableau des surfaces:
| Niveau | Nom | Surface | Commentaires | Loyer | Prix |
| rdc | Entrepôt | 89 m² | |||
| etage | Mezzanine | 80 m² | |||
Aspects financiers :
Indexation annuelle :
Dépôt de garantie : N/C
Régime fiscal location :
Taxe foncière : 1000 €
Voir plus
Afficher les consommations énergétiques
Localisation et transport aux alentours
Favoris
Exporter
Appeler
Contacter
Signaler cette annonce










