Leader mondial des services dédiés à l'immobilier d'entreprise, Cushman & Wakefield accompagne ses clients dans la transformation de leurs modes de travail, de consommation et de vie. Nos 43 000 co ...
En savoir plus

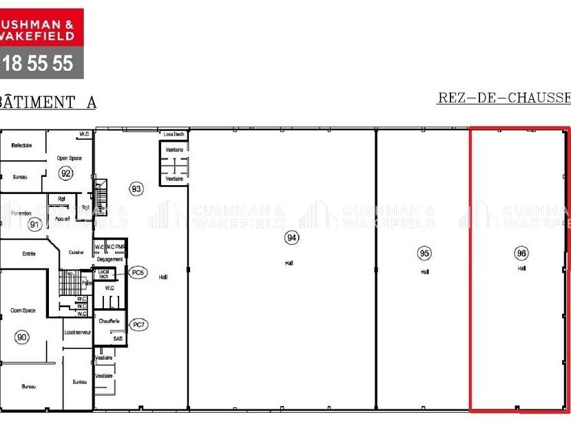
436 m²
Activité/Entrepôt à vendre - 436 m²
Bischheim (67800)
Dernière mise à jour : Il y a 2 jours
Cellule de stockage, disponible à l'acquisition, au sein d'un btiment d'activité multi-cellules. Site clos Répartie sur les bans communaux de Bischheim et de Hoenheim, à proximité du terminus de la ligne B du tram, la zone industrielle intercommunale regroupe un grand nombre de PME et de PMI. Créée en 1966, cette zone artisanale et industrielle s''est diversifiée au cours des années pour devenir une zone mixte, avec des restaurants et des enseignes commerciales. Le service Activité de Cushman & Wakefield Strasbourg vous propose un local de stockage, à louer ou à vendre, situé à Bischheim (67800), d'une surface totale de 436 m² non divisibles au sein d'un site industriel récent, reconverti en btiment d'activité multi cellules, sur site clos. Possibilité de création de bureaux STOCKAGE . Ossature et charpente béton . Murs béton et bardage . Toiture bac acier . Hauteur 5 m . Sol industriel . Accès de plain pied par 2 portes sectionnelles 4 x 5 m . Cour privative de 200 m² grillagée pour stockage exterieur Parkings extérieurs privatifs Zone accessible par l'autoroute A4, sortie Vendenheim/Reichstett + sortie Wacken/rue du Marais
Voir plus
Afficher les consommations énergétiques
Localisation et transport aux alentours
Favoris
Exporter
Appeler
Contacter
Signaler cette annonce










