Notre équipe est composée d''experts du marché immobilier d''entreprise, et renforce ainsi notre position de leader des transactions immobilières à Toulouse. Notre mission est de vous guider afin d ...
En savoir plus

Bureau à vendre - 1520 m²
L'ensemble immobilier profite d'un emplacement stratégique à proximité du métro ligne A Balma-Gramont, du Centre Commercial OCCITANIA et d'un accès via la rocade Est de Toulouse sortie n°15 "Balma-Gramont/Jolimont".
Les locaux sont disponibles à l'achat ou à la location.
Livraison : 24 mois
La desserte est excellente :
Métro ligne A "Balma-Gramont" à 700 m
Bus à 250 m
Desserte rocade Est N°15 : 1 km
Aéroport Toulouse Blagnac à 16 km
Les prestations techniques sont de qualité :
Climatisation : Réversible
Distribution climatisation : Ventilo convecteur en plafonnier
Sécurité : Contrôle d'accès
Aménagement des bureaux : Ouverts
Faux plafond : Dalles en fibre minérale
Plinthes techniq.périphériques
Eclairage Bureaux : Luminaires encastrés
Sol bureaux : Moquette
Sanitaires : Parties communes
Distribution chauffage : Réversible
Production climatisation : Autonome
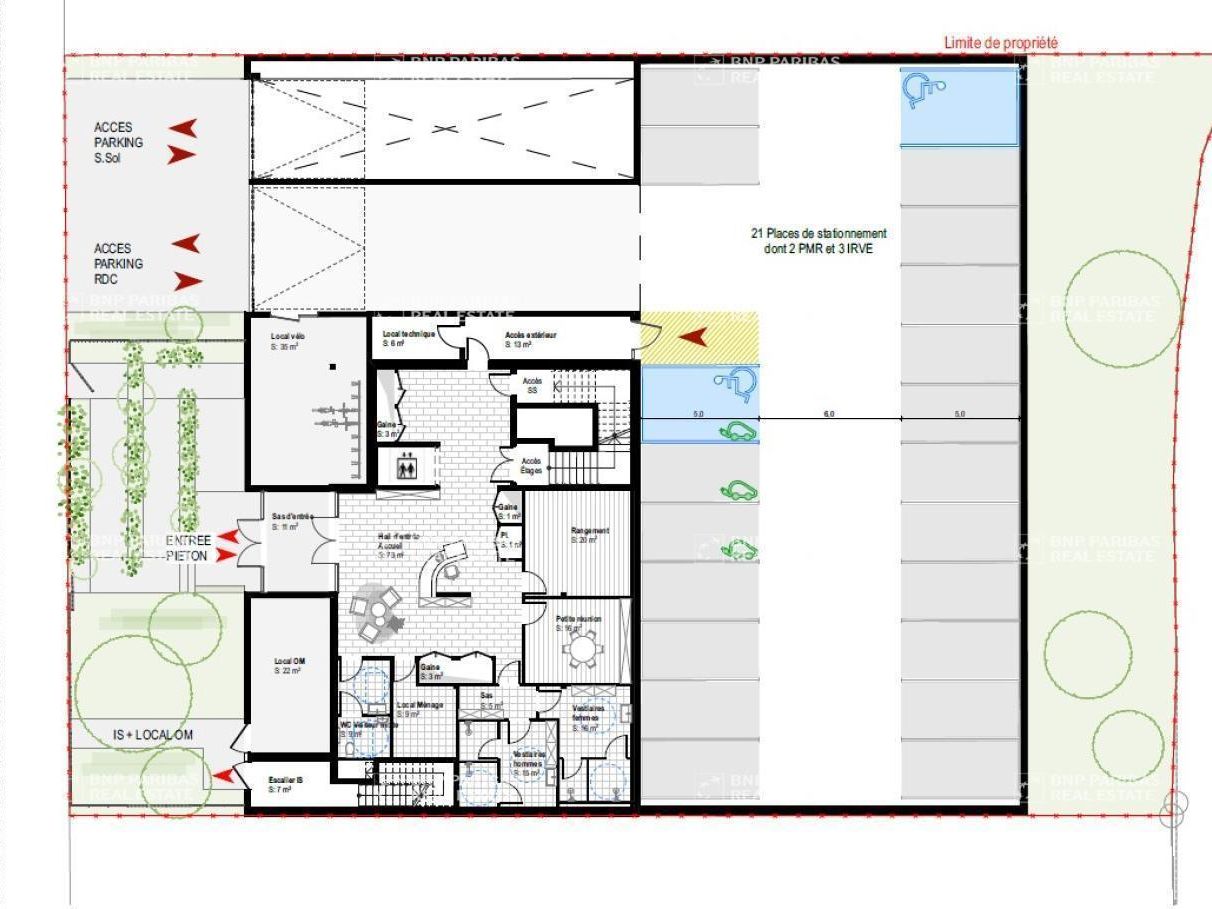
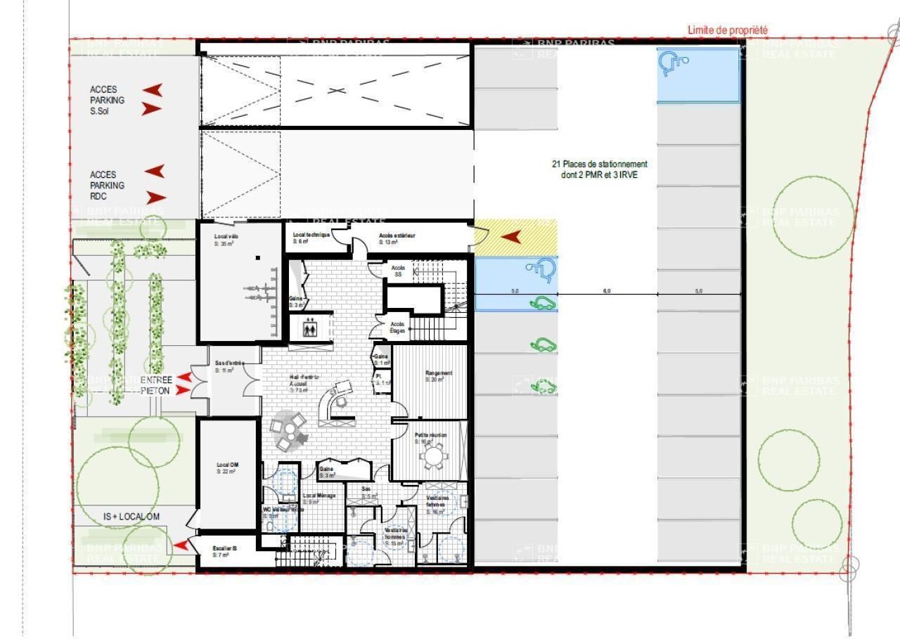
Parking voiture intérieur
Rooftop
Balma est située aux portes de la métropole toulousaine, à l'Est de l'agglomération à seulement 15 minutes en voiture du centre-ville de Toulouse et à seulement 10 min en métro du centre-ville de Toulouse.
Balma est en plein essor avec notamment le développement par OPPIDEA de la ZAC Balma-Gramont qui accueille l'Ecoquartier Vidailhan. Cette zone de 106 hectares est dédiée pour 2/3 à l'activité économique et pour 1/3 à l'habitat.
Elle offre 14 hectares de parcs, des équipements publics dont un groupe scolaire, une crèche, une maison de quartier et propose du transport à la demande (TAD).
Situé aux portes de Toulouse, le projet est bordé par l'autoroute A61. Le centre-ville est relié quant à lui par 4 autoroutes.
L'aéroport de Toulouse se trouve à Blagnac et est joignable en 16 minutes par la rocade Est (A620) en voiture.
La gare de Toulouse-Matabiau est accessible en 13 minutes.
La zone d'activités dispose d'un accès direct à la rocade sortie n°15 et relie le Capitole en 15 minutes.
AUX ENVIRONS :
Proximité immédiate avec plusieurs commerces et services, y compris restauration et complexes sportifs (publics et privés).
POLE D'ACTIVITE MAJEUR :
Site de nombreuses délégations régionales en banques, assurances, mutuelles, ...
Toutes nos offres sur : https://www.bnppre.fr/toulouse/
Disponibilité: 24 mois après accordHonoraires: 5% HT du prix HT/HD. à la signature de l'acte
| Fiche technique du bien | |
|---|---|
| Métro | 700 m |
| Bus | 250 m |
| Desserte routière | 1 km |
| Aéroport | 16 km |
| Climatisation | Réversible |
| Sécurité | Contrôle d'accès |
| Câblage informatique | Oui |
| Aménagement des bureaux | Espaces Ouverts |
| Faux plafond | Dal. fibres minéral. |
| Eclairage Bureaux | Luminaires encastrés |
| Sol bureaux | Moquette |
| Plinthes techniq.périphériques | Oui |
| Sanitaire(s) | Parties communes |










